Bildegalleri

Velkommen til Nordre Tollbodgate 5A presentert av Marie Traasdahl Hansen v/ Hjem Eiendomsmegling
Solgt
BUD MOTTATT
Lys og sentrumsnær 2-roms med smart planløsning!
Prisantydning3 000 000 kr
Nøkkelinfo
- Boligtype
- Leilighet
- Eieform
- Eier (Selveier)
- Soverom
- 1
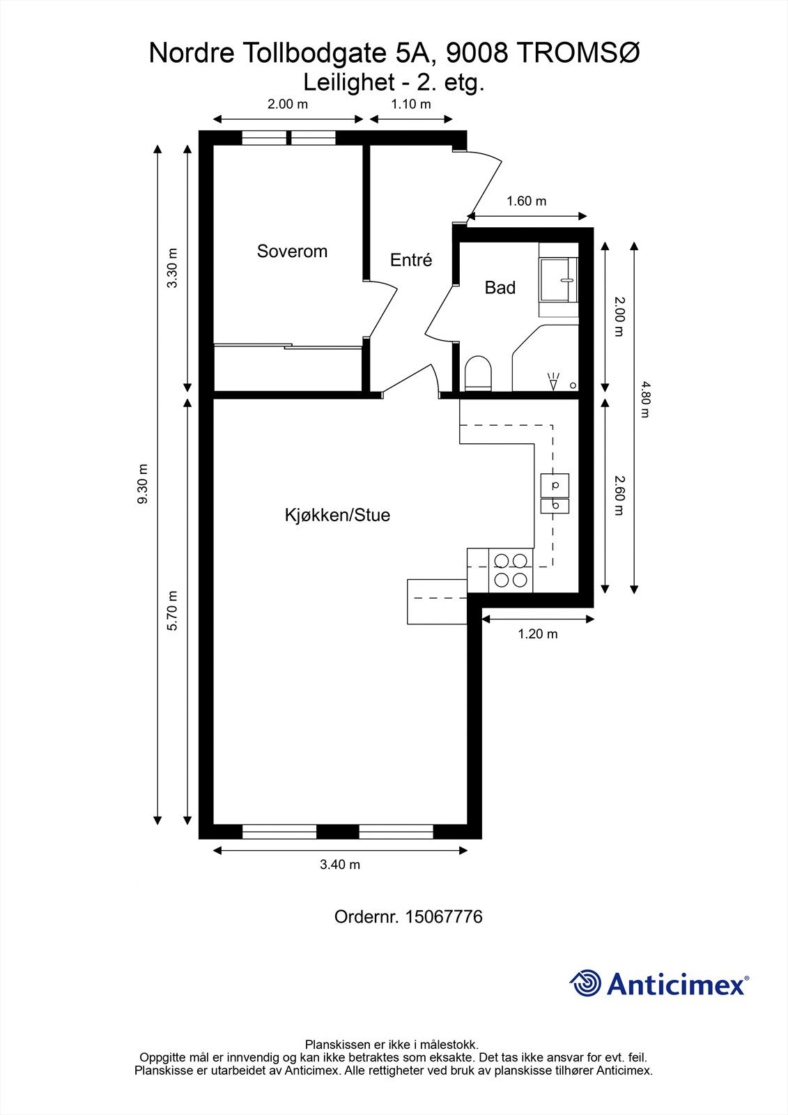
- Internt bruksareal
- 39 m² (BRA-i)
- Bruksareal
- 42 m²
- Eksternt bruksareal
- 3 m² (BRA-e)
- Etasje
- 2
- Byggeår
- 1872
- Energimerking
- C - Rød
- Rom
- 2
- Tomteareal
- 365 m² (eiet)
Fasiliteter
Bredbåndstilknytning
Offentlig vann/kloakk
Sentralt
Om boligen
Velkommen til Nordre Tollbodgate 5A - En lys og innbydende 2-roms i byggets 2. etasje, som inneholder entré, flislagt baderom, soverom av god størrelse, stue med store vindusflater som gir godt lysinnslipp, kjøkken med integrerte hvitevarer og moderne innredning. Praktisk sportsbod i fellesareal. Hele bygget er ombygget og modernisert i tidsrommet 2006-2011 og holder god standard.
Attraktiv beliggenhet med umiddelbar nærhet til alle sentrums fasiliteter. Med sin sentrale plassering, gir denne leiligheten deg urban komfort og nærhet til alt sentrum har å by på med sitt store utvalg av restauranter, shopping og kulturliv. Det er svært gode bussforbindelser i området. Her har du enkel adkomst til sentrum og UNN/UiT.
Attraktiv beliggenhet med umiddelbar nærhet til alle sentrums fasiliteter. Med sin sentrale plassering, gir denne leiligheten deg urban komfort og nærhet til alt sentrum har å by på med sitt store utvalg av restauranter, shopping og kulturliv. Det er svært gode bussforbindelser i området. Her har du enkel adkomst til sentrum og UNN/UiT.
NB: Knappen for å vise hele beskrivelsen har kun en visuell effekt.
NB: Knappen for å vise hele beskrivelsen har kun en visuell effekt.
Salgsoppgaven beskriver vesentlig og lovpålagt informasjon om eiendommen
Se komplett salgsoppgaveNærområdet
Hjem Eiendomsmegling
Annonseinformasjon
| FINN-kode | 402907495 |
|---|---|
| Sist endret | 27. apr. 2025 10:44 |
| Referanse | 1-0031/25 |
Annonsene kan være mangelfulle i forhold til lovpålagt opplysningsplikt. Før bindende avtale inngås oppfordres interessenter til å innhente komplett informasjon fra meglerforetaket, selger eller utleier.


























