Bildegalleri

Usedvanlig gode solforhold både sommer og vinter. 322 kvm eksklusiv hageleilighet. Se video!
Villa Tandberg - Nordberg
Nordberg - Eksklusiv villaleilighet - Kun 1 igjen - Stor privat hage - 2 garasjeplasser - Heis - Squash hall - Se video!
Prisantydning45 000 000 kr
Nøkkelinfo
- Boligtype
- Leilighet
- Eieform
- Eier (Selveier)
- Soverom
- 4
- Internt bruksareal
- 322 m² (BRA-i)
- Bruksareal
- 335 m²
- Eksternt bruksareal
- 13 m² (BRA-e)
- Balkong/Terrasse
- 24 m² (TBA)
- Etasje
- 1
- Byggeår
- 2024
- Energimerking
- B - Gul
- Tomteareal
- 2 780 m² (eiet)
Fasiliteter
Balkong/Terrasse
Barnevennlig
Bredbåndstilknytning
Garasje/P-plass
Hage
Heis
Kjæledyr tillatt
Ingen gjenboere
Kabel-TV
Offentlig vann/kloakk
Parkett
Peis/Ildsted
Rolig
Sentralt
Utsikt
Vaktmester-/vektertjeneste
Turterreng
Lademulighet
Balansert ventilasjon
Visning
Kontakt megler om du har spørsmål eller ønsker en prat. For denne eiendommen gjennomføres det kun visning etter avtale. Eiendomsmegler Ståle Ask Helland treffes på tlf 958 64 003 eller mail sah@s-j.no
VisningspåmeldingOm boligen
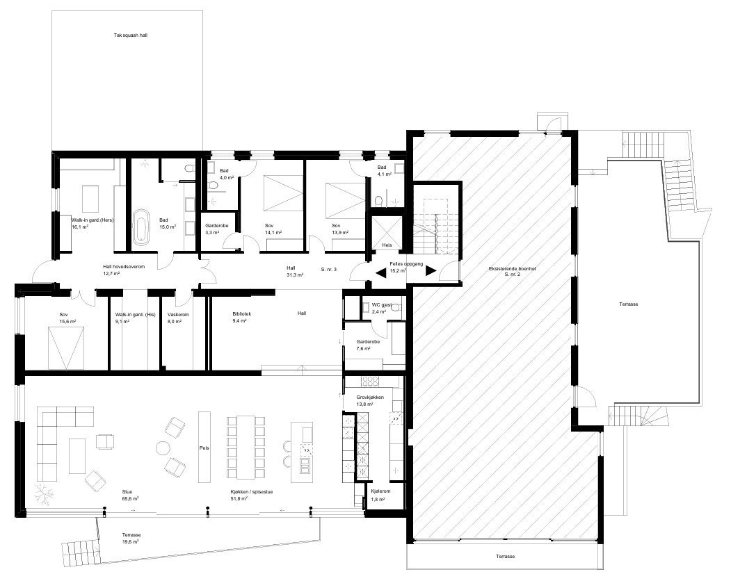
322 kvm villaleilighet med eksklusiv bruksrett til 963 kvm hage. Byutsikt og noe fjordutsikt. Høy kvalitet og standard med svært gjennomtenkt planløsning, bl.a. lekkert håndlaget kjøkken fra EVI i åpen løsning med spisestuen. Eget grovkjøkken med "alt" utstyr. Stor masteravdeling med soverom, lekkert bad/wc, "his and hers" garderobe, samt vaskerom. I tillegg to gjestesoverom/barnerom med tilhørende hvert sitt bad/wc. Med enkle grep kan leiligheten leveres med ett fjerde soverom.
Takhøye eikedører, gjennomgående stor takhøyde, floor to ceiling vinduer mot utsikten, og snekkerbygd garderobeinnredning. Gjennomgående peis mellom stue og spisestue. I underetasje er det felles treningsstudio, squashhall med internasjonale mål, to garasjeplasser og stort bodareal. Heis i bygget. SE VIDEO!
Takhøye eikedører, gjennomgående stor takhøyde, floor to ceiling vinduer mot utsikten, og snekkerbygd garderobeinnredning. Gjennomgående peis mellom stue og spisestue. I underetasje er det felles treningsstudio, squashhall med internasjonale mål, to garasjeplasser og stort bodareal. Heis i bygget. SE VIDEO!
NB: Knappen for å vise hele beskrivelsen har kun en visuell effekt.
NB: Knappen for å vise hele beskrivelsen har kun en visuell effekt.
Salgsoppgaven beskriver vesentlig og lovpålagt informasjon om eiendommen
Se komplett salgsoppgaveNærområdet
Sem & Johnsen
Boliger utenom det vanlige
Annonseinformasjon
| FINN-kode | 402905710 |
|---|---|
| Sist endret | 18. feb. 2026 21:52 |
| Referanse | 20-25-0566 |
Annonsene kan være mangelfulle i forhold til lovpålagt opplysningsplikt. Før bindende avtale inngås oppfordres interessenter til å innhente komplett informasjon fra meglerforetaket, selger eller utleier.











































