Bildegalleri

Velkommen til Losjeplassen 20 - Et av få townhouse i attraktive Svanegangen
Svanegangen/Bragernes
Lekkert og moderne townhouse over 2 plan | Eksklusiv finish og flotte takterrasser
Prisantydning6 990 000 kr
Nøkkelinfo
- Boligtype
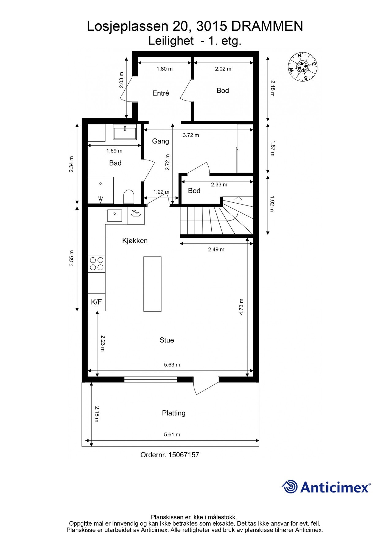
- Leilighet
- Eieform
- Eier (Selveier)
- Soverom
- 2
- Internt bruksareal
- 113 m² (BRA-i)
- Bruksareal
- 118 m²
- Eksternt bruksareal
- 5 m² (BRA-e)
- Balkong/Terrasse
- 12 m² (TBA)
- Etasje
- 2
- Byggeår
- 2022
- Energimerking
- A - Mørkegrønn
- Rom
- 3
- Tomteareal
- 5 798 m² (eiet)
Fasiliteter
Barnevennlig
Balkong/Terrasse
Garasje/P-plass
Kabel-TV
Heis
Offentlig vann/kloakk
Parkett
Turterreng
Sentralt
Bredbåndstilknytning
Moderne
Rolig
Balansert ventilasjon
Om boligen
Velkommen til Losjeplassen 20 - et moderne og stilrent townhouse fra 2022, over byggets første og andre etasje. Boligen har en lys stue med utgang til koselig markterrasse, et lekkert kjøkken med integrerte hvitevarer, to elegante bad og to romslige soverom. Flere boder sørger for god lagringsplass, og det medfølger leierett til én garasjeplass i fellesanlegg.
Med gjenværende nybygggaranti får du ekstra trygghet i kjøpet. Boligen er utstyrt med både vannbåren gulvvarme og balansert ventilasjon, noe som gir et behagelig og energieffektivt inneklima året rundt.
Losjeplassen 20 har en svært attraktiv plassering i populære Svanegangen på Bragernes, med alt byen har å by på rett utenfor døren. Her bor du i gangavstand til caféer, restauranter, kjøpesentre, butikker, kollektivtilbud (buss og tog), elvepromenaden og turmulighetene i Drammensmarka.
Med gjenværende nybygggaranti får du ekstra trygghet i kjøpet. Boligen er utstyrt med både vannbåren gulvvarme og balansert ventilasjon, noe som gir et behagelig og energieffektivt inneklima året rundt.
Losjeplassen 20 har en svært attraktiv plassering i populære Svanegangen på Bragernes, med alt byen har å by på rett utenfor døren. Her bor du i gangavstand til caféer, restauranter, kjøpesentre, butikker, kollektivtilbud (buss og tog), elvepromenaden og turmulighetene i Drammensmarka.
NB: Knappen for å vise hele beskrivelsen har kun en visuell effekt.
NB: Knappen for å vise hele beskrivelsen har kun en visuell effekt.
Salgsoppgaven beskriver vesentlig og lovpålagt informasjon om eiendommen
Se komplett salgsoppgaveNyttige lenker
Nærområdet
EIE eiendomsmegling Drammen
Annonseinformasjon
| FINN-kode | 402894331 |
|---|---|
| Sist endret | 29. des. 2025 10:10 |
| Referanse | 46250027 |
Annonsene kan være mangelfulle i forhold til lovpålagt opplysningsplikt. Før bindende avtale inngås oppfordres interessenter til å innhente komplett informasjon fra meglerforetaket, selger eller utleier.

































