Bildegalleri

Kristoffer Mjåtveit har gleden av å presentere Sandakerveien 10P!
Solgt
Øvre Grünerløkka / Torshov
Stilsikker og moderne 2-roms med frodig utsyn - VV og fyring inkl - Akerselva som nærmeste nabo -Perfekt førstegangskjøp
Prisantydning4 400 000 kr
Nøkkelinfo
- Boligtype
- Leilighet
- Eieform
- Andel
- Soverom
- 1
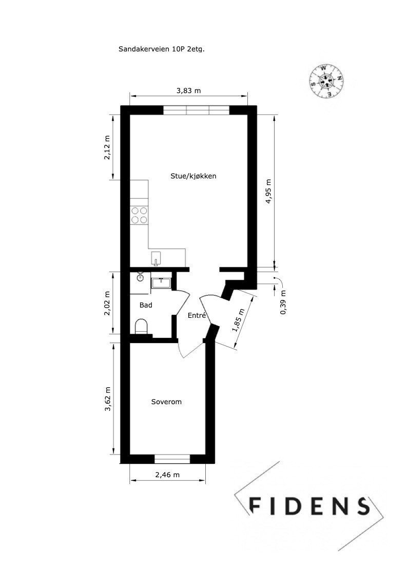
- Internt bruksareal
- 35 m² (BRA-i)
- Bruksareal
- 39 m²
- Eksternt bruksareal
- 4 m² (BRA-e)
- Etasje
- 2
- Byggeår
- 1936
- Energimerking
- F - Mørkegrønn
- Rom
- 2
- Tomteareal
- 4 653 m² (eiet)
Fasiliteter
Barnevennlig
Bredbåndstilknytning
Fellesvaskeri
Kjæledyr tillatt
Ingen gjenboere
Kabel-TV
Offentlig vann/kloakk
Parkett
Rolig
Sentralt
Utsikt
Turterreng
Om boligen
En lys, moderne og innbydende 2-roms med fantastisk utsyn mot Akerselva.
Leiligheten har en arealeffektiv og gjennomgående planløsning, hvor hver kvadratmeter er godt utnyttet. Her har du en praktisk gang med innebygd skap, åpen kjøkken- og stueløsning, innbydende soverom mot bakgård og flislagt bad med opplegg for vaskemaskin.
Leiligheten har en arealeffektiv og gjennomgående planløsning, hvor hver kvadratmeter er godt utnyttet. Her har du en praktisk gang med innebygd skap, åpen kjøkken- og stueløsning, innbydende soverom mot bakgård og flislagt bad med opplegg for vaskemaskin.
- Frodig, herlig og åpen utsikt mot parken og Akerselva
- Delikate overflater med en-stavs og behagelige fargevalg
- God takhøyde og store vindusflater
- Bad pusset opp i regi av borettslaget
- To boder
- Varmtvann, fyring og internett inkl.
- Idyllisk bakgård
- Ingen dok.avgift
- Populær beliggenhet mellom Grünerløkka og Torshov
- Kort vei til "alt" av fasiliteter, parker og offentlig transport
- Perfekt førstegangskjøp!
NB: Knappen for å vise hele beskrivelsen har kun en visuell effekt.
NB: Knappen for å vise hele beskrivelsen har kun en visuell effekt.
Salgsoppgaven beskriver vesentlig og lovpålagt informasjon om eiendommen
Se komplett salgsoppgaveNyttige lenker
Nærområdet
Nordvik St.Hanshaugen
Annonseinformasjon
| FINN-kode | 402741068 |
|---|---|
| Sist endret | 21. aug. 2025 09:03 |
| Referanse | 5-0065/24 |
Annonsene kan være mangelfulle i forhold til lovpålagt opplysningsplikt. Før bindende avtale inngås oppfordres interessenter til å innhente komplett informasjon fra meglerforetaket, selger eller utleier.


























