Bildegalleri

Velkommen til Vanvikveien 14! Her får du et innholdsrikt rekkehus med nydelig utsikt.
Vanvikan
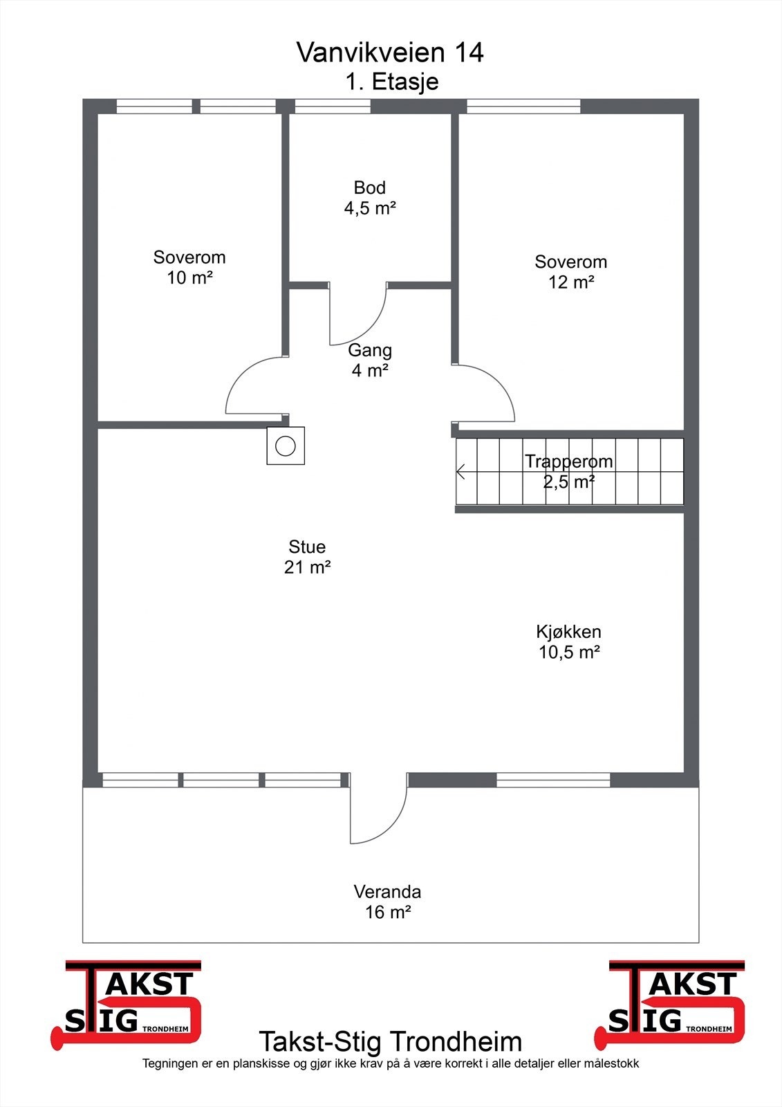
Flott, oppgradert rekkehus med sentral beliggenhet i Vanvikan | 5 sov | Kort vei til Trondheim | Veranda på 16 m²
Prisantydning2 500 000 kr
Nøkkelinfo
- Boligtype
- Rekkehus
- Eieform
- Eier (Selveier)
- Soverom
- 5
- Internt bruksareal
- 131 m² (BRA-i)
- Bruksareal
- 131 m²
- Balkong/Terrasse
- 19 m² (TBA)
- Byggeår
- 1965
- Energimerking
- F - Oransje
- Tomteareal
- 1 193 m² (eiet)
Fasiliteter
Balkong/Terrasse
Barnevennlig
Garasje/P-plass
Kjæledyr tillatt
Offentlig vann/kloakk
Peis/Ildsted
Rolig
Sentralt
Utsikt
Turterreng
Visning
Alle våre visninger har påmelding. Meld deg opp til ønsket visningstidspunkt via linken visningspåmelding , eller kontakt megler på telefon, SMS eller mail. Vi anbefaler at salgsoppgaven lastes ned digitalt, og oppfordrer alle til å lese komplett salgsoppgave før visning. Skulle det mot formodning ikke være påmeldte til angitt visningstidspunkt vil ikke visning bli gjennomført.
VisningspåmeldingOm boligen
Velkommen til Vanvikveien 14!
Flott rekkehus som ligger sentralt i Vanvikan, i et rolig og attraktivt boligområde. Fra eiendommen er det kort vei til både sentrum, og til fine turområder. Bussholdeplass, dagligvarebutikk, splitter ny videregående skole, flerbrukshall og hurtigbåt kun en kort spasertur unna boligen.
Kvaliteter verdt å merke seg:
Flott rekkehus som ligger sentralt i Vanvikan, i et rolig og attraktivt boligområde. Fra eiendommen er det kort vei til både sentrum, og til fine turområder. Bussholdeplass, dagligvarebutikk, splitter ny videregående skole, flerbrukshall og hurtigbåt kun en kort spasertur unna boligen.
Kvaliteter verdt å merke seg:
- Gode sol- og utsiktsforhold.
- 5 romslige soverom.
- Veranda på 16 m².
- Renovert.
Oppgraderinger:
2019/2020: - Ny veranda og vedlikehold av fasade.
- Nytt bad og kjøkken.
- Klargjort for nytt bad.
- Nytt el anlegg.
- Etablerte parkeringsplasser.
- Nye gulv, vannrør og flere nye vegger.
- Seksjonerte husene.
Velkommen på visning!
NB: Knappen for å vise hele beskrivelsen har kun en visuell effekt.
NB: Knappen for å vise hele beskrivelsen har kun en visuell effekt.
Salgsoppgaven beskriver vesentlig og lovpålagt informasjon om eiendommen
Se komplett salgsoppgaveNyttige lenker
Nærområdet
Heimdal Eiendomsmegling avd. Fosen
Annonseinformasjon
| FINN-kode | 402455211 |
|---|---|
| Sist endret | 08. sep. 2025 14:07 |
| Referanse | 17-25-0025 |
Annonsene kan være mangelfulle i forhold til lovpålagt opplysningsplikt. Før bindende avtale inngås oppfordres interessenter til å innhente komplett informasjon fra meglerforetaket, selger eller utleier.
































