Bildegalleri

Nikolai Astrupsveg 1373 v/Fjordane Eiendomsmegling
Konsesjonspliktig småbruk i flotte omgivelser ved Jølstravatnet | Jakt- & fiskerett | Støl |
Nøkkelinfo
- Boligtype
- Gårdsbruk/Småbruk
- Eieform
- Eier (Selveier)
- Soverom
- 4
- Internt bruksareal
- 225 m² (BRA-i)
- Bruksareal
- 225 m²
- Balkong/Terrasse
- 157 m² (TBA)
- Byggeår
- 1973
- Tomteareal
- 343 167 m² (eiet)
- Boligselgerforsikring
- Ja
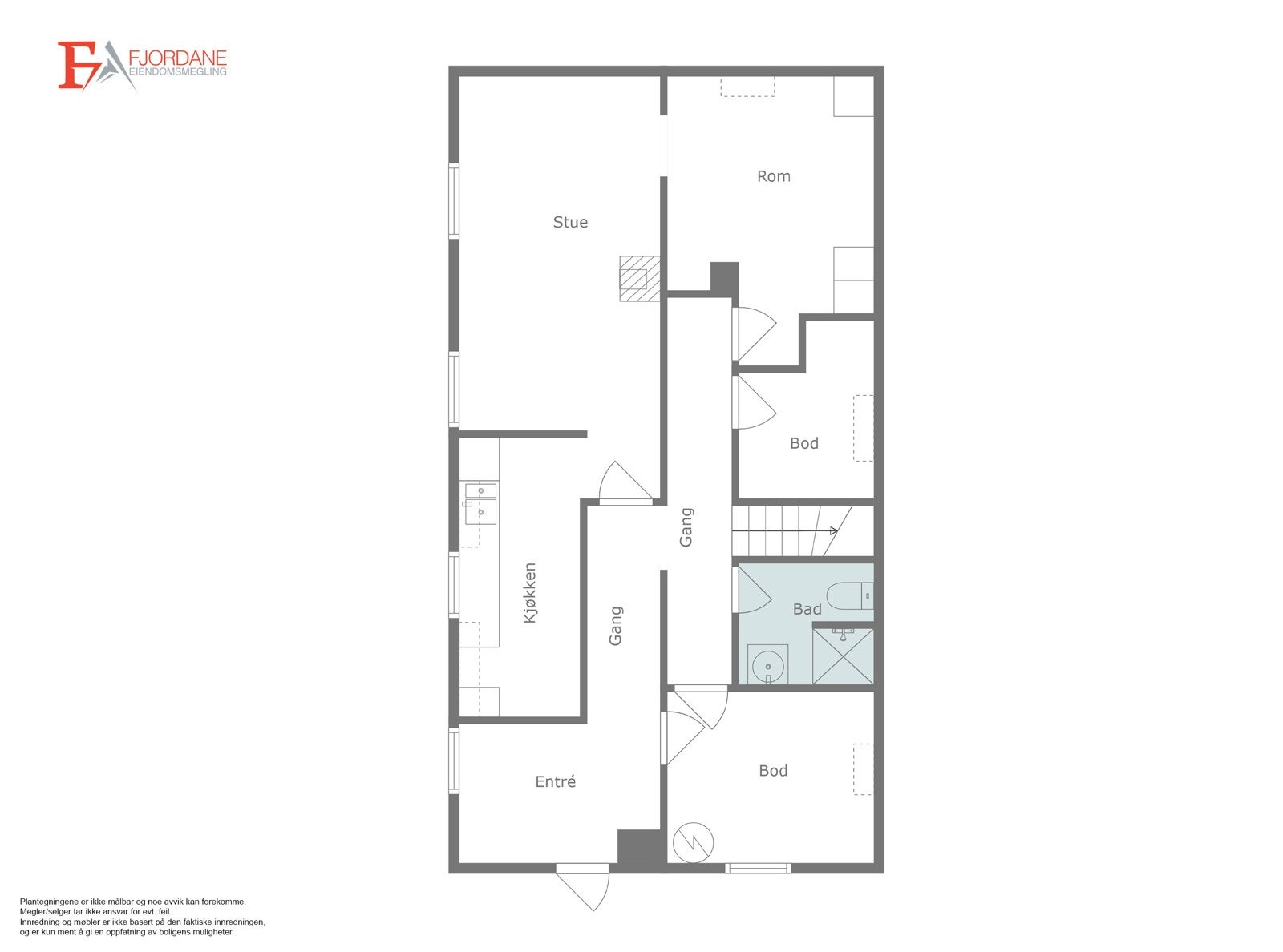
Om boligen
Velkommen til Nikolai Astrupveg 1373 - Småbruk i flotte omgivelser på sørsida av Jølstravatnet.
Eiendommen ligger flott til på Jølster og har strandlinje mot Jølstravatnet mot nord.
Noen hovedtrekk ved eiendommen:
- 41 daa. fulldyrka jord
- Innmarksbeite på 43daa.
- Fallrettsleige
- Del av felles jaktvald med rett til å drive hjortejakt
- Stølsrett på Skryklingestøylen (stølshus må bygges opp igjen)
- Fiskerett i Jølstravatnet
Tunet er utbygd med bolighus oppført i 1973, samt en driftsbygning fra 1970. Det er lengre tid siden det var egen gårdsdrift på bruket, og driftsbygningen har kun vært brukt til lagerplass de siste åra. Den dyrka marka og beiteareala på gården er de siste årene blitt leid ut.
Eiendommen er konsesjonspliktig, og ny eier må søke om konsesjon ved kjøp. Se salgsoppgaven for mer info.
Salgsoppgaven beskriver vesentlig og lovpålagt informasjon om eiendommen
Se komplett salgsoppgaveNyttige lenker
Nærområdet
Fjordane Eiendomsmegling AS
Prisstatistikk
Nikolai Astrupsveg 1373
på annonsen
prisantydning per kvadratmeter
Prisfordeling
Pris per m² ligger 333 kr over snittet for gårdsbruk/småbruk i Sunnfjord.
Grafen viser antall gårdsbruk/småbruk solgt i Sunnfjord siste året fordelt på pris per m² - totalt 8 gårdsbruk/småbruk
Antall boliger
Kvadratmeterpris tilsvarer prisantydning pluss fellesgjeld per kvadratmeter (p-rom eller BRA-i). Prisene i grafen er avrundet til nærmeste 1000 kr.
Annonsene kan være mangelfulle i forhold til lovpålagt opplysningsplikt. Før bindende avtale inngås oppfordres interessenter til å innhente komplett informasjon fra meglerforetaket, selger eller utleier.













































