Bildegalleri

Nordvik ved Christoffer Kvalshaugen har gleden av å ønske velkommen til Rambergveien 29! Foto: Fotograf Magik
Kaldnes
Kaldnes Brygge - Nyere og moderne selveierleilighet i byggets 2. etasje m/heis og balkong | Kort vei til alt!
Prisantydning3 350 000 kr
Nøkkelinfo
- Boligtype
- Leilighet
- Eieform
- Selveier
- Soverom
- 0
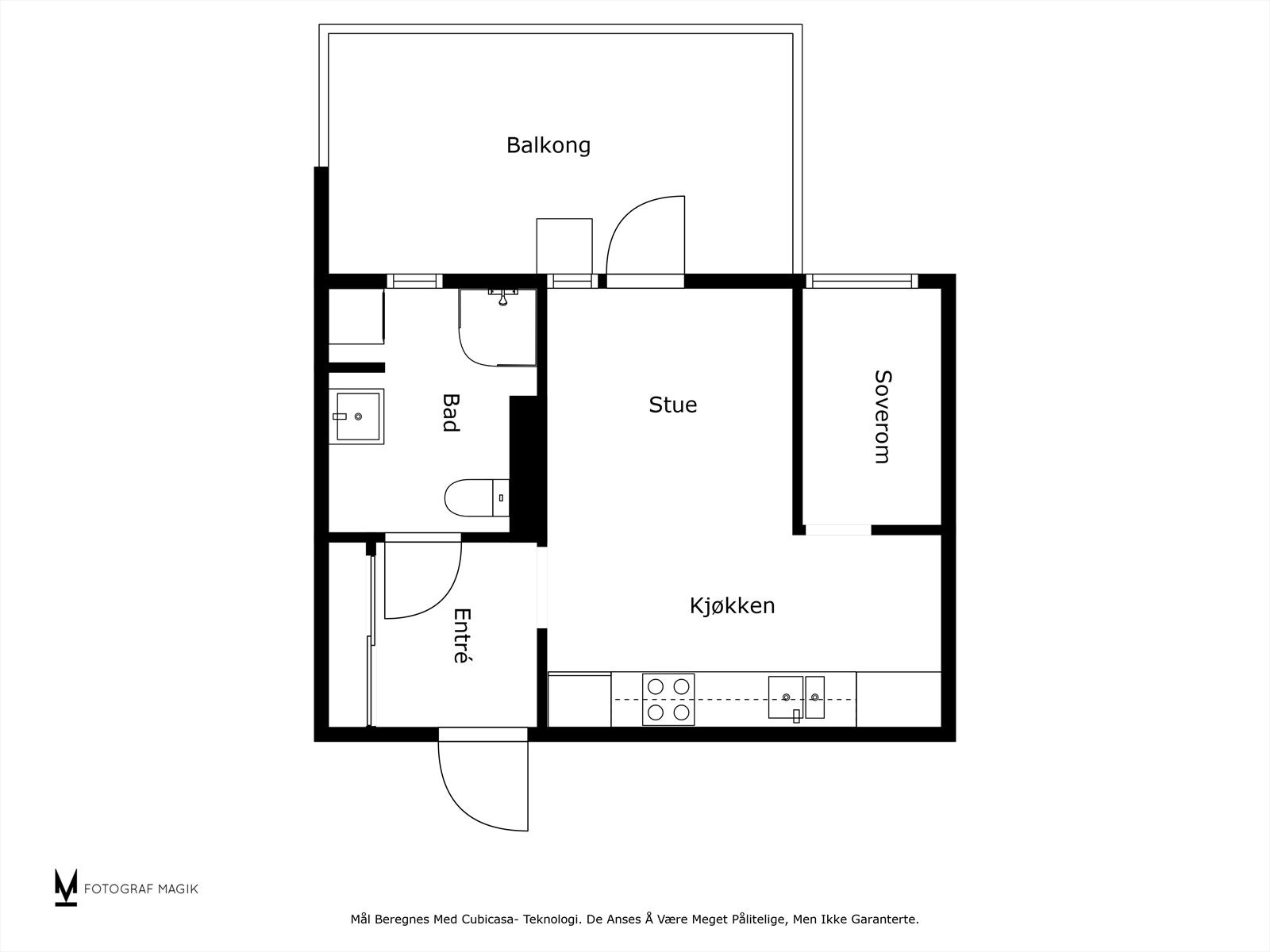
- Internt bruksareal
- 32 m² (BRA-i)
- Bruksareal
- 37 m²
- Eksternt bruksareal
- 5 m² (BRA-e)
- Balkong/Terrasse
- 9 m² (TBA)
- Etasje
- 2
- Byggeår
- 2014
- Energimerking
- Rom
- 1
- Tomteareal
- 1 289 m² (eiet)
Fasiliteter
Balkong/Terrasse
Barnevennlig
Bredbåndstilknytning
Heis
Kjæledyr tillatt
Kabel-TV
Offentlig vann/kloakk
Parkett
Sentralt
Utsikt
Vaktmester-/vektertjeneste
Bademulighet
Balansert ventilasjon
Visning
Alle våre visninger har påmelding. Er det ingen påmeldt en time før visning, vil ikke visning blir gjennomført. På denne måten sikrer vi at megler har god oversikt og tid til å imøtekomme alle interessenter. Meld deg på visning ved å trykke på lenken visningspåmelding.
VisningspåmeldingOm boligen
Nordvik har gleden av å presentere denne tiltalende leiligheten i byggets 2. etasje oppført i 2014. Leiligheten er innredet m/gang m/garderobe, stue m/åpen kjøkkenløsning, alkove og utgang til balkong. Boligen er malt i lyse farger og gir et godt inntrykk m/moderne overflater og innredning.
Eiendommen ligger i et rolig og etablert boligområde på Kaldnes Brygge m/kort gangavstand til bl.a. sentrum, byfjorden, bryggene, båthavn, offentlig kommunikasjon, skole, barnehager og gode rekreasjonsområder, bl.a. Teieskogen.
Kort fortalt:
- Balkong.
- Integrerte hvitevarer.
- Parkett i alle rom.
- Helflislagt bad.
- Vannbåren varme.
- Varmekabler i gulv på bad.
- Balansert ventilasjon.
- Vinduer med 3-lags isolerglass.
- Callingsystem og portåpner.
- Heisadkomst.
Eiendommen ligger i et rolig og etablert boligområde på Kaldnes Brygge m/kort gangavstand til bl.a. sentrum, byfjorden, bryggene, båthavn, offentlig kommunikasjon, skole, barnehager og gode rekreasjonsområder, bl.a. Teieskogen.
Kort fortalt:
- Balkong.
- Integrerte hvitevarer.
- Parkett i alle rom.
- Helflislagt bad.
- Vannbåren varme.
- Varmekabler i gulv på bad.
- Balansert ventilasjon.
- Vinduer med 3-lags isolerglass.
- Callingsystem og portåpner.
- Heisadkomst.
NB: Knappen for å vise hele beskrivelsen har kun en visuell effekt.
NB: Knappen for å vise hele beskrivelsen har kun en visuell effekt.
Salgsoppgaven beskriver vesentlig og lovpålagt informasjon om eiendommen
Se komplett salgsoppgaveNyttige lenker
Nærområdet
Nordvik Tønsberg
Annonseinformasjon
| FINN-kode | 402418694 |
|---|---|
| Sist endret | 12. mai 2026 14:49 |
| Referanse | 25-0051/25 |
Annonsene kan være mangelfulle i forhold til lovpålagt opplysningsplikt. Før bindende avtale inngås oppfordres interessenter til å innhente komplett informasjon fra meglerforetaket, selger eller utleier.
































