Bildegalleri

Velkommen til en lys og moderne 2-roms med solrik balkong og en attraktiv beliggenhet på Skøyen presentert av Marius Dyngeland Iversen.
Solgt
Skøyen
Stilren 2-roms selveier med tilbaketrukket beliggenhet - Solrik balkong og frodig utsyn- Heis
Prisantydning5 500 000 kr
Nøkkelinfo
- Boligtype
- Leilighet
- Eieform
- Eier (Selveier)
- Soverom
- 1
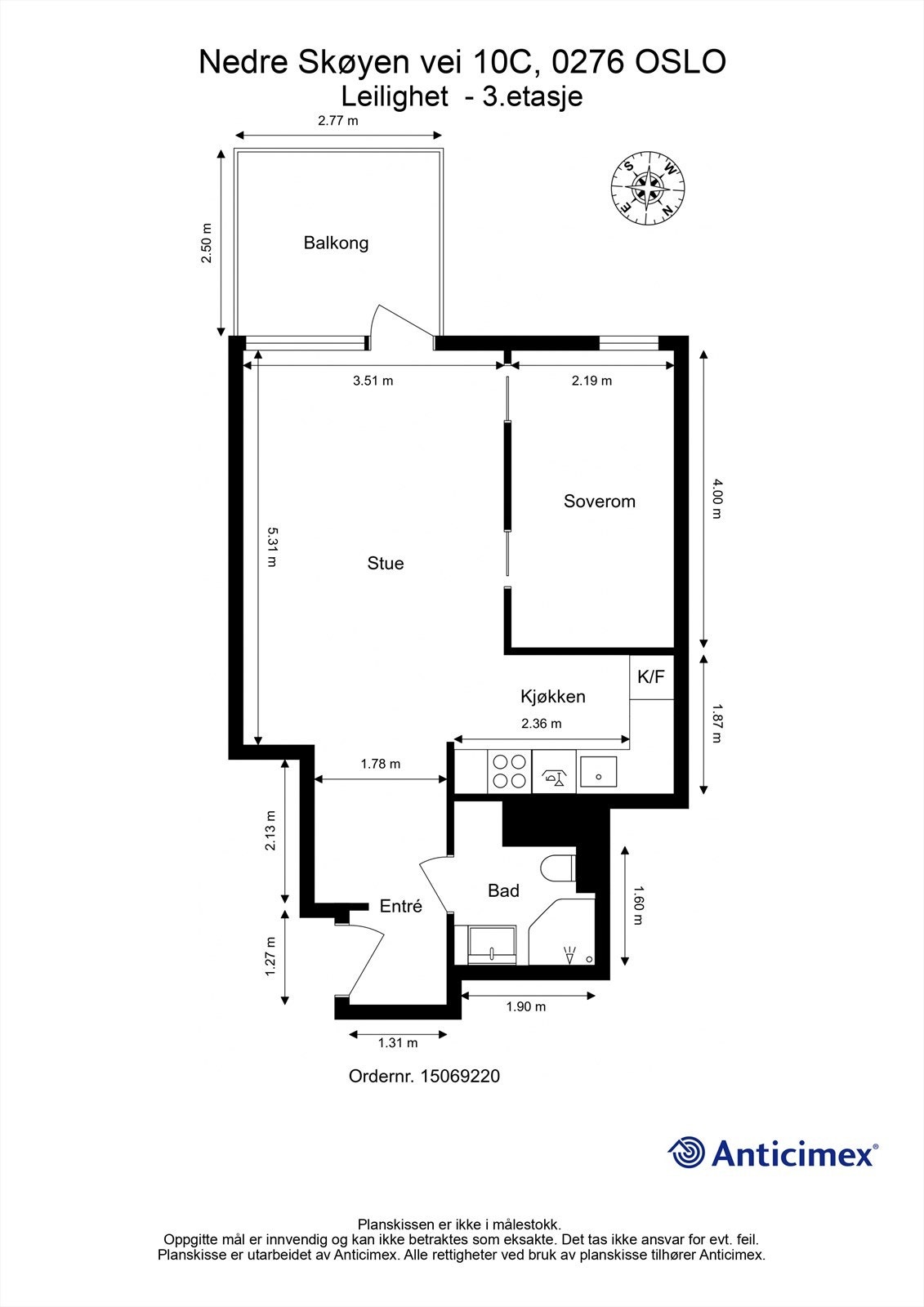
- Internt bruksareal
- 43 m² (BRA-i)
- Bruksareal
- 48 m²
- Eksternt bruksareal
- 5 m² (BRA-e)
- Balkong/Terrasse
- 7 m² (TBA)
- Etasje
- 3
- Byggeår
- 2008
- Energimerking
- C - Mørkegrønn
- Rom
- 2
- Tomteareal
- 13 949 m² (eiet)
Fasiliteter
Balkong/Terrasse
Barnevennlig
Bredbåndstilknytning
Garasje/P-plass
Heis
Kjæledyr tillatt
Ingen gjenboere
Kabel-TV
Offentlig vann/kloakk
Parkett
Sentralt
Utsikt
Vaktmester-/vektertjeneste
Turterreng
Balansert ventilasjon
Om boligen
Velkommen til en lys og moderne 2-roms med solrik balkong og en attraktiv beliggenhet på Skøyen. Leiligheten har en praktisk og arealeffektiv planløsning, og med god plassutnyttelse er det en velfungerende leilighet både for enslige og par. Romslig balkong som kan skilte med rikelig med sol fra ettermiddag til kveld, og et hyggelig utsyn mot sameiets flotte grøntområder og Hoffselva, i trafikkstille omgivelser. Boligen ligger i bygård fra 2008, og er i senere tid overflateoppusset i perioden 2022 og 2025.
Høydepunkter:
- Stor og solrik balkong med hyggelig utsyn
- Heis
- Balansert ventilasjon
- Tv og internett inkl.
- Felles varmtvann og oppvarming
- Garasjeleie
- Umiddelbar nærhet til servicetilbud, buss, trikk og
Høydepunkter:
- Stor og solrik balkong med hyggelig utsyn
- Heis
- Balansert ventilasjon
- Tv og internett inkl.
- Felles varmtvann og oppvarming
- Garasjeleie
- Umiddelbar nærhet til servicetilbud, buss, trikk og
NB: Knappen for å vise hele beskrivelsen har kun en visuell effekt.
NB: Knappen for å vise hele beskrivelsen har kun en visuell effekt.
Salgsoppgaven beskriver vesentlig og lovpålagt informasjon om eiendommen
Se komplett salgsoppgaveNyttige lenker
Nærområdet
Krogsveen Majorstuen og Oslo Vest
Verdien av en god megler.
Annonseinformasjon
| FINN-kode | 402370733 |
|---|---|
| Sist endret | 20. aug. 2025 13:30 |
| Referanse | KR40.2576 |
Annonsene kan være mangelfulle i forhold til lovpålagt opplysningsplikt. Før bindende avtale inngås oppfordres interessenter til å innhente komplett informasjon fra meglerforetaket, selger eller utleier.































