Bildegalleri

Kristoffer Mjåtveit har gleden av å presentere Sandefjordgata 5D!
Solgt
Sagene/Bjølsen
Lys, innbydende og gjennomgående 2-roms - God takhøyde og tregulv- Varmtvann og fyring inkl - Tilbaketrukket beliggenhet
Prisantydning4 990 000 kr
Nøkkelinfo
- Boligtype
- Leilighet
- Eieform
- Andel
- Soverom
- 1
- Internt bruksareal
- 56 m² (BRA-i)
- Bruksareal
- 59 m²
- Eksternt bruksareal
- 3 m² (BRA-e)
- Etasje
- 2
- Byggeår
- 1940
- Energimerking
- D - Lysegrønn
- Rom
- 2
- Tomteareal
- 6 122 m² (eiet)
Fasiliteter
Barnevennlig
Bredbåndstilknytning
Fellesvaskeri
Offentlig vann/kloakk
Rolig
Sentralt
Turterreng
Om boligen
En lys, meget innbydende og romslig 2-roms som må oppleves! Leiligheten har en skjermet og tilbaketrukket beliggenhet på sjarmerende Sagene med nærhet til flere flotte parker og grøntområder som Bjølsenparken, Voldsløkka og Akerselva.
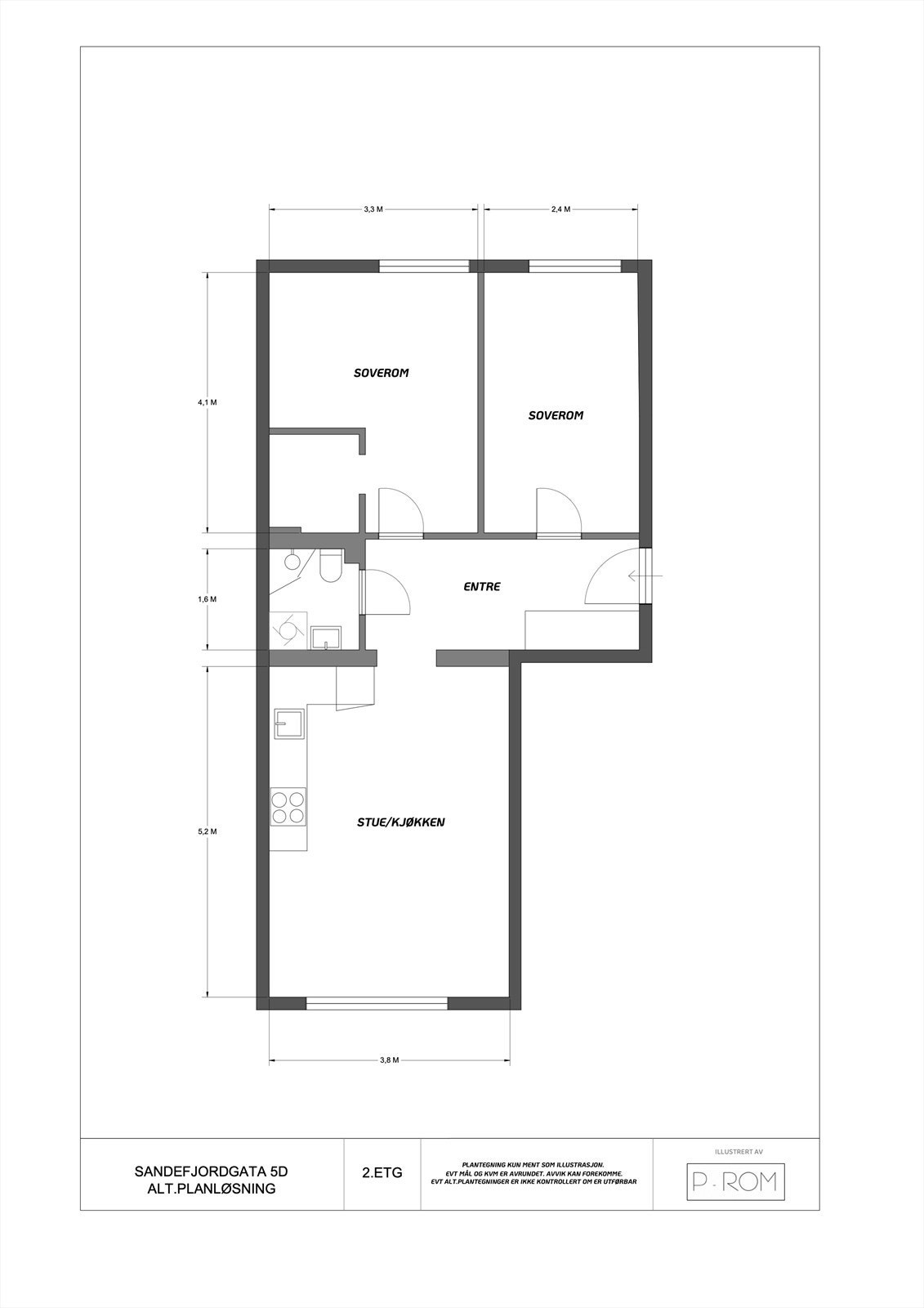
Leiligheten har en gjennomgående planløsning, og inneholder entré, separat kjøkken, lun stue, soverom med omkledningsrom og bad.
Leiligheten har en gjennomgående planløsning, og inneholder entré, separat kjøkken, lun stue, soverom med omkledningsrom og bad.
- Store vindusflater og svært god takhøyde på 2,64 m
- Pent furugulv og lune fargevalg
- Soverom med walk-in closet
- Vinduer fra 2021
- Kjellerbod
- Lave strømutgifter
- Varmtvann, fyring og internett inkl.
- Ingen dok.avgift
- Beboerparkering
- Veldrevet borettslag med god vedlikeholdshistorikk
- Idyllisk bakgård med sittegrupper og beplantning
- God tilknytning til offentlig kommunikasjon og butikker
NB: Knappen for å vise hele beskrivelsen har kun en visuell effekt.
NB: Knappen for å vise hele beskrivelsen har kun en visuell effekt.
Salgsoppgaven beskriver vesentlig og lovpålagt informasjon om eiendommen
Se komplett salgsoppgaveNyttige lenker
Nærområdet
Nordvik St.Hanshaugen
Annonseinformasjon
| FINN-kode | 402257297 |
|---|---|
| Sist endret | 13. aug. 2025 08:03 |
| Referanse | 5-0153/25 |
Annonsene kan være mangelfulle i forhold til lovpålagt opplysningsplikt. Før bindende avtale inngås oppfordres interessenter til å innhente komplett informasjon fra meglerforetaket, selger eller utleier.


































