Bildegalleri

EIE Jessheim/Råholt v/ Roksana Risberg har gleden av å presentere Pernilletoppen 2D! Bilde er tatt av Hege Leren V/ EFKT.
Stilren halvpart av tomannsbolig fra 2021! | Barnevennlig beliggenhet på Dal| God kollektiv transport |Gulvvarme i 1.etg
Prisantydning4 700 000 kr
Nøkkelinfo
- Boligtype
- Tomannsbolig
- Eieform
- Eier (Selveier)
- Soverom
- 3
- Internt bruksareal
- 119 m² (BRA-i)
- Bruksareal
- 125 m²
- Eksternt bruksareal
- 6 m² (BRA-e)
- Balkong/Terrasse
- 29 m² (TBA)
- Byggeår
- 2021
- Energimerking
- B - Rød
- Tomteareal
- 2 017 m² (eiet)
Fasiliteter
Barnevennlig
Balkong/Terrasse
Garasje/P-plass
Kabel-TV
Peis/Ildsted
Moderne
Rolig
Balansert ventilasjon
Visning
torsdag, 19. februar
17:30 – 18:30
Etter positive tilbakemeldinger fra interessenter og selgere fortsetter vi med visningspåmelding. Meld deg på visning ved å klikke på "meld deg på visning"-knappen eller ta kontakt med megler. Påmeldingsfrist 24 timer før oppsatt visning. Ta kontakt for avtale av privatvisning dersom oppsatt visning ikke passer.
Om boligen
EIE Råholt v/Roksana Risberg har gleden av å presentere Pernilletoppen 2D!
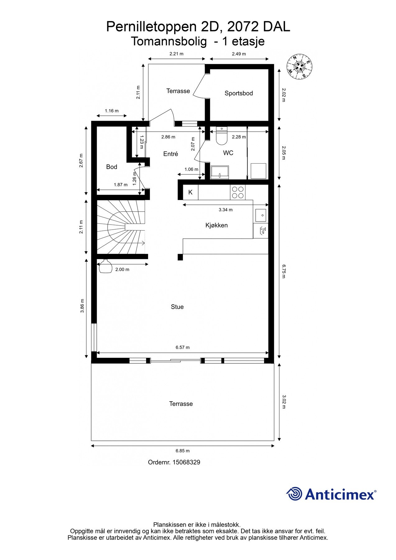
Pernilletoppen 2D er en moderne og stilren halvpart av tomannsbolig fra 2021, perfekt for deg som ønsker en praktisk og familievennlig bolig i rolige omgivelser! Boligen går over to etasjer og byr på lyse rom, åpen stue- og kjøkkenløsning, tre soverom, to stuer, delikat bad og ekstra toalett/vaskerom. Fra stuen er det utgang til solrik terrasse - ideell for morgenkaffe og lune sommerkvelder. Her får du god standard, tidsriktige materialvalg, parkett, gulvvarme og peisovn.
Boligen disponerer 3 biloppstillingsplasser, hvorav den ene har el-billader.
Beliggenheten på Dal er barnevennlig og sentral, med kun 300 meter til barneskole samt kort gangavstand til barnehage, togstasjon og butikker. Området byr på fine tur- og bademuligheter, og har enkel tilgang til Råholt, Jessheim og Oslo Lufthavn.
Mangler du egenkapital? Boligen kan kjøpes med Finit Deleie.
Pernilletoppen 2D er en moderne og stilren halvpart av tomannsbolig fra 2021, perfekt for deg som ønsker en praktisk og familievennlig bolig i rolige omgivelser! Boligen går over to etasjer og byr på lyse rom, åpen stue- og kjøkkenløsning, tre soverom, to stuer, delikat bad og ekstra toalett/vaskerom. Fra stuen er det utgang til solrik terrasse - ideell for morgenkaffe og lune sommerkvelder. Her får du god standard, tidsriktige materialvalg, parkett, gulvvarme og peisovn.
Boligen disponerer 3 biloppstillingsplasser, hvorav den ene har el-billader.
Beliggenheten på Dal er barnevennlig og sentral, med kun 300 meter til barneskole samt kort gangavstand til barnehage, togstasjon og butikker. Området byr på fine tur- og bademuligheter, og har enkel tilgang til Råholt, Jessheim og Oslo Lufthavn.
Mangler du egenkapital? Boligen kan kjøpes med Finit Deleie.
NB: Knappen for å vise hele beskrivelsen har kun en visuell effekt.
NB: Knappen for å vise hele beskrivelsen har kun en visuell effekt.
Salgsoppgaven beskriver vesentlig og lovpålagt informasjon om eiendommen
Se komplett salgsoppgaveNærområdet
EIE eiendomsmegling Jessheim
Annonseinformasjon
| FINN-kode | 402156787 |
|---|---|
| Sist endret | 10. feb. 2026 15:13 |
| Referanse | 20251066 |
Annonsene kan være mangelfulle i forhold til lovpålagt opplysningsplikt. Før bindende avtale inngås oppfordres interessenter til å innhente komplett informasjon fra meglerforetaket, selger eller utleier.








































