Bildegalleri

Solgt
VIGVOLLÅSEN/HÅNES
Meget pen og romslig 3-roms leilighet i 6. etasje med flott sjøutsikt - Stor solrik terrasse - Heis og p-plass i kjeller
Prisantydning3 490 000 kr
Nøkkelinfo
- Boligtype
- Leilighet
- Eieform
- Andel
- Soverom
- 2
- Internt bruksareal
- 86 m² (BRA-i)
- Bruksareal
- 100 m²
- Eksternt bruksareal
- 14 m² (BRA-e)
- Balkong/Terrasse
- 19 m² (TBA)
- Etasje
- 6
- Byggeår
- 1973
- Rom
- 3
- Tomteareal
- 26 706 m² (eiet)
Fasiliteter
Balkong/Terrasse
Barnevennlig
Bredbåndstilknytning
Garasje/P-plass
Heis
Offentlig vann/kloakk
Rolig
Sentralt
Utsikt
Vaktmester-/vektertjeneste
Turterreng
Lademulighet
Balansert ventilasjon
Om boligen
Leiligheten ligger flott til med nydelig utsikt mot Topdalsfjorden. Solrik terrasse med sol fra formiddag til sen kveld.
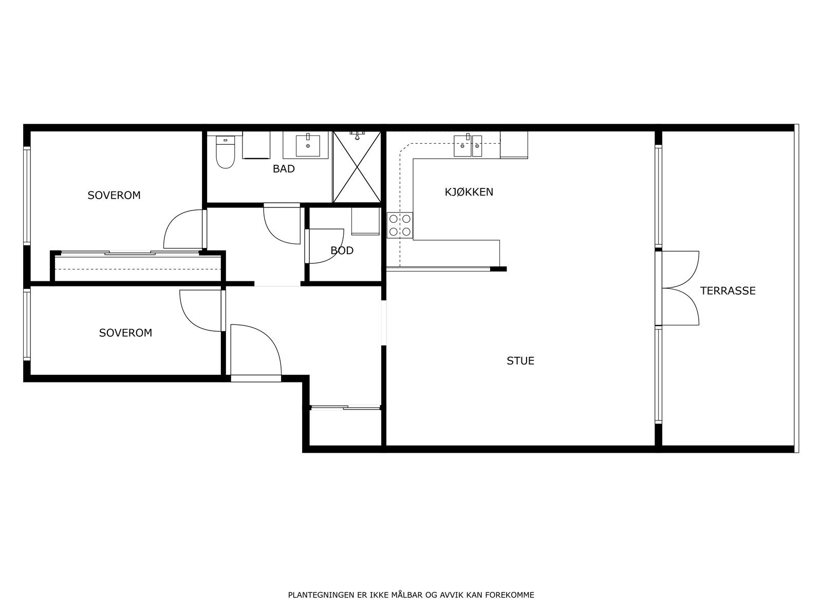
God planløsning sørger for at arealet blir utnyttet optimalt.
6. etg.:
Heis direkte opp til leilighetens etasje fra p-kjeller og inngangsparti
Felles yttergang som deles med kun en nabo.
Hall, romslig stue med god plass for spisestue og utgang til stor terrasse, kjøkken med hvitevarer, flott flislagt bad/wc og 2 soverom
Garasjeplass og 2 boder.
Flott renovert flislagt bad/wc.
Flott kjøkkeninnredning med integrerte hvitevarer.
Nyere flotte gulv i stue, kjøkken gang og på begge soverom
For 8-9 år siden ble det i regi at borettslaget gjort større arbeid på blokken. Det ytre skallet ble skiftet med ny utvendig isolasjon, nye vinduer, dører og ventilasjonsanlegg.
God planløsning sørger for at arealet blir utnyttet optimalt.
6. etg.:
Heis direkte opp til leilighetens etasje fra p-kjeller og inngangsparti
Felles yttergang som deles med kun en nabo.
Hall, romslig stue med god plass for spisestue og utgang til stor terrasse, kjøkken med hvitevarer, flott flislagt bad/wc og 2 soverom
Garasjeplass og 2 boder.
Flott renovert flislagt bad/wc.
Flott kjøkkeninnredning med integrerte hvitevarer.
Nyere flotte gulv i stue, kjøkken gang og på begge soverom
For 8-9 år siden ble det i regi at borettslaget gjort større arbeid på blokken. Det ytre skallet ble skiftet med ny utvendig isolasjon, nye vinduer, dører og ventilasjonsanlegg.
NB: Knappen for å vise hele beskrivelsen har kun en visuell effekt.
NB: Knappen for å vise hele beskrivelsen har kun en visuell effekt.
Salgsoppgaven beskriver vesentlig og lovpålagt informasjon om eiendommen
Se komplett salgsoppgaveNyttige lenker
Nærområdet
Eiendomsmegler Norge Kristiansand
Det viktigste stedet i Norge er der du bor
Annonseinformasjon
| FINN-kode | 402150741 |
|---|---|
| Sist endret | 28. apr. 2025 10:09 |
| Referanse | SORM11.2524 |
Annonsene kan være mangelfulle i forhold til lovpålagt opplysningsplikt. Før bindende avtale inngås oppfordres interessenter til å innhente komplett informasjon fra meglerforetaket, selger eller utleier.














































