Bildegalleri

EIE eiendomsmegling ved Geir Einar Moen har gleden av å presentere Rønningstrøa 42!
Melhus
Moderne enderekkehus fra 2023 | Nydelig utsikt og gode solforhold | 4 soverom & 2 bad | Integrert garasje | Takterrasse
Prisantydning6 650 000 kr
Nøkkelinfo
- Boligtype
- Rekkehus
- Eieform
- Eier (Selveier)
- Soverom
- 4
- Internt bruksareal
- 162 m² (BRA-i)
- Bruksareal
- 201 m²
- Eksternt bruksareal
- 39 m² (BRA-e)
- Balkong/Terrasse
- 63 m² (TBA)
- Byggeår
- 2023
- Energimerking
- B - Rød
- Rom
- 5
- Tomteareal
- 108 m² (eiet)
Fasiliteter
Barnevennlig
Balkong/Terrasse
Garasje/P-plass
Offentlig vann/kloakk
Turterreng
Utsikt
Moderne
Rolig
Om boligen
Velkommen til Rønningstrøa 42!
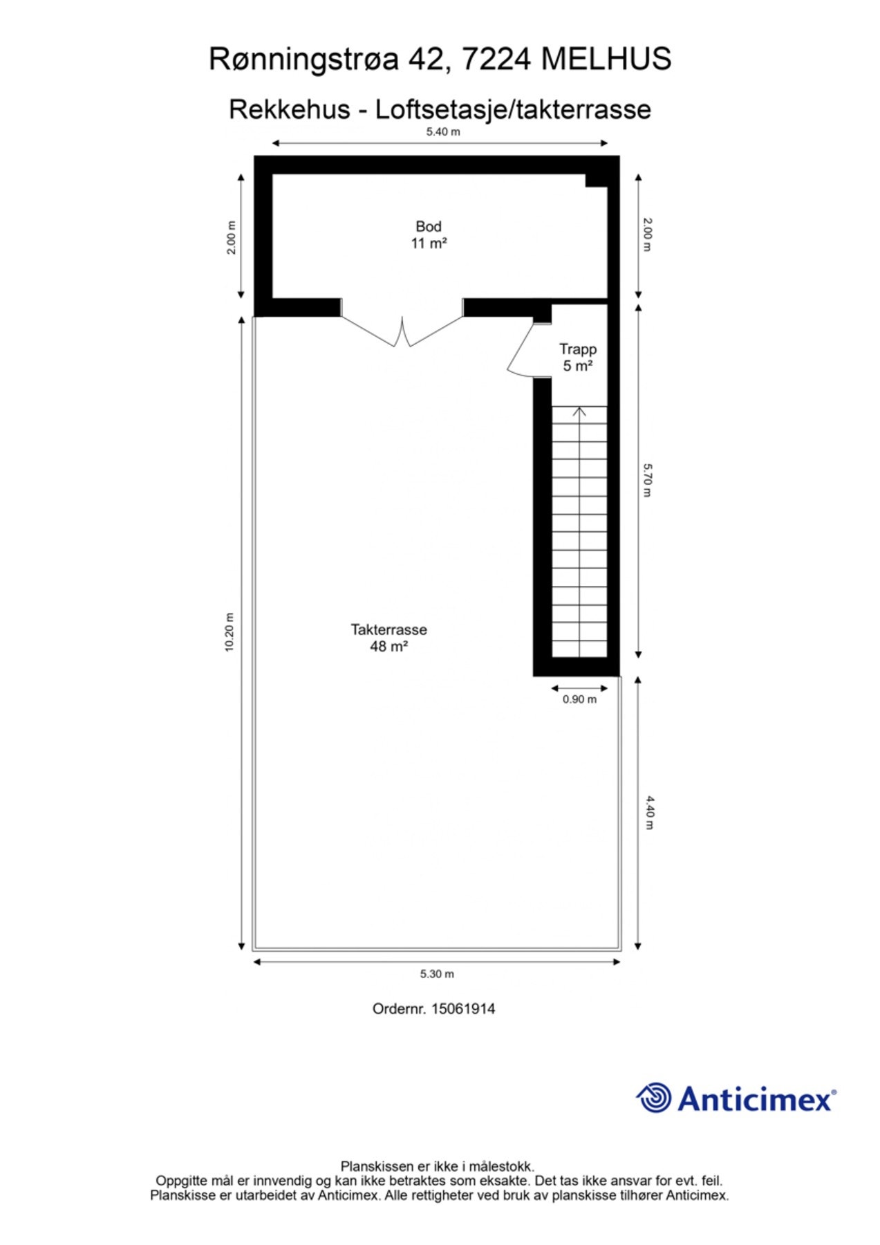
Et nytt og svært tiltalende enderekkehus over tre etasjer + takterrasse, oppført i 2023. Boligen har integrert garasje i første etasje og en fantastisk takterrasse på 48 kvm med nydelig, vidstrakt utsikt og svært gode solforhold. Med gjennomgående høy standard, fire soverom, en åpen stue-/kjøkkenløsning, to bad og et ekstra gjestetoalett, er dette en perfekt bolig for både familier og par.
Merk deg dette:
Attraktiv endebeliggenhet.
Stor takterrasse med panoramautsikt og fantastiske solforhold.
Integrert garasje.
Nydelig Aubo kjøkkeninnredning.
Fire romslige soverom.
To bad og et ekstra toalett.
Stor bod på takterrassen, som evt. kan benyttes som vinterhage.
Balansert ventilasjon og varmepumpe.
Gode kollektivtilbud.
Gangavstand til skole og barnehage.
Et nytt og svært tiltalende enderekkehus over tre etasjer + takterrasse, oppført i 2023. Boligen har integrert garasje i første etasje og en fantastisk takterrasse på 48 kvm med nydelig, vidstrakt utsikt og svært gode solforhold. Med gjennomgående høy standard, fire soverom, en åpen stue-/kjøkkenløsning, to bad og et ekstra gjestetoalett, er dette en perfekt bolig for både familier og par.
Merk deg dette:
Attraktiv endebeliggenhet.
Stor takterrasse med panoramautsikt og fantastiske solforhold.
Integrert garasje.
Nydelig Aubo kjøkkeninnredning.
Fire romslige soverom.
To bad og et ekstra toalett.
Stor bod på takterrassen, som evt. kan benyttes som vinterhage.
Balansert ventilasjon og varmepumpe.
Gode kollektivtilbud.
Gangavstand til skole og barnehage.
NB: Knappen for å vise hele beskrivelsen har kun en visuell effekt.
NB: Knappen for å vise hele beskrivelsen har kun en visuell effekt.
Salgsoppgaven beskriver vesentlig og lovpålagt informasjon om eiendommen
Se komplett salgsoppgaveNyttige lenker
Nærområdet
EIE eiendomsmegling Trondheim sentrum
Annonseinformasjon
| FINN-kode | 402107103 |
|---|---|
| Sist endret | 09. des. 2025 11:26 |
| Referanse | 33251032 |
Annonsene kan være mangelfulle i forhold til lovpålagt opplysningsplikt. Før bindende avtale inngås oppfordres interessenter til å innhente komplett informasjon fra meglerforetaket, selger eller utleier.



































