Bildegalleri

EiendomsMegler 1 v/Sondre Grønning har gleden av å presentere Lidarende 1!
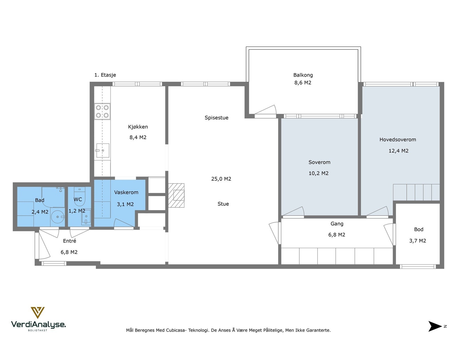
Lekker 3-roms på 85 BRA-i med attraktiv beliggenhet| Balkong og markterrasse med gode solforhold| Parkering | Vedfyring
Nøkkelinfo
- Boligtype
- Leilighet
- Eieform
- Andel
- Soverom
- 2
- Internt bruksareal
- 85 m² (BRA-i)
- Bruksareal
- 99 m²
- Eksternt bruksareal
- 14 m² (BRA-e)
- Balkong/Terrasse
- 9 m² (TBA)
- Etasje
- 1
- Byggeår
- 1972
- Energimerking
- E - Oransje
- Rom
- 3
- Tomteareal
- 47 477 m² (eiet)
Fasiliteter
Om boligen
En stor innbydende 3-roms. Stor delvis overbygd balkong på ca. 8,6 kvm med gode solforhold. Fra balkongen er et en trapp ned til store friarealer opparbeidet med plen og lekeplasser til alle beboernes frie bruk. Området er svært barnevennlig med internveier med meget begrenset ferdsel av bil. Gangavstand til alle daglige fasiliteter og god offentlig kommunikasjon
Av flere kvaliteter kan vi fremheve:
- To romslige soverom, samt kontor i tilknytning til soverom/gang
- Vedovnen er fra 2025
- Balkong med nedgang til markterrasse og felles grøntareal
- Gode bussforbindelser mot Trondheim sentrum og byens studiesteder
- Parkering på biloppstillingsplass.(Muligheter for leie av garasje)
- Flotte turmuligheter i umiddelbar nærhet både sommer og vinter
- Godt med lagringsplass i 2 private boder i kjeller
- Eget vaskerom og toalettrom
Velkommen til en hyggelig visning!
Salgsoppgaven beskriver vesentlig og lovpålagt informasjon om eiendommen
Se komplett salgsoppgaveNyttige lenker
Nærområdet
EiendomsMegler 1 Valentinlyst
Prisstatistikk
Lidarende 1
på annonsen
prisantydning per kvadratmeter
Prisfordeling
Pris per m² ligger 20 202 kr under snittet for leiligheter i Trondheim Øst.
Grafen viser antall leiligheter solgt i Trondheim Øst siste året fordelt på pris per m² - totalt 2 554 leiligheter
Antall boliger
Kvadratmeterpris tilsvarer prisantydning pluss fellesgjeld per kvadratmeter (p-rom eller BRA-i). Prisene i grafen er avrundet til nærmeste 1000 kr.
Annonseinformasjon
| FINN-kode | 401820738 |
|---|---|
| Sist endret | 25. aug. 2025 06:12 |
| Referanse | 34250085 |
Annonsene kan være mangelfulle i forhold til lovpålagt opplysningsplikt. Før bindende avtale inngås oppfordres interessenter til å innhente komplett informasjon fra meglerforetaket, selger eller utleier.


































