Bildegalleri

Fredrik Lund ved EIE Løren har gleden av å presentere Siloveien 14!
Solgt
Sinsen
Lys & tiltalende 2-R toppleilighet | God planløsning | Bad oppgradert i 2024 | V.v/fyring inkl. | Attraktivt og sentralt
Prisantydning4 690 000 kr
Nøkkelinfo
- Boligtype
- Leilighet
- Eieform
- Andel
- Soverom
- 1
- Internt bruksareal
- 50 m² (BRA-i)
- Bruksareal
- 57 m²
- Eksternt bruksareal
- 7 m² (BRA-e)
- Etasje
- 4
- Byggeår
- 1937
- Energimerking
- G - Mørkegrønn
- Tomteareal
- 4 114 m² (eiet)
Fasiliteter
Offentlig vann/kloakk
Ingen gjenboere
Utsikt
Vaktmester-/vektertjeneste
Fellesvaskeri
Sentralt
Bredbåndstilknytning
Moderne
Rolig
Om boligen
Fredrik Lund ved EIE Løren har gleden av å presentere Siloveien 14!
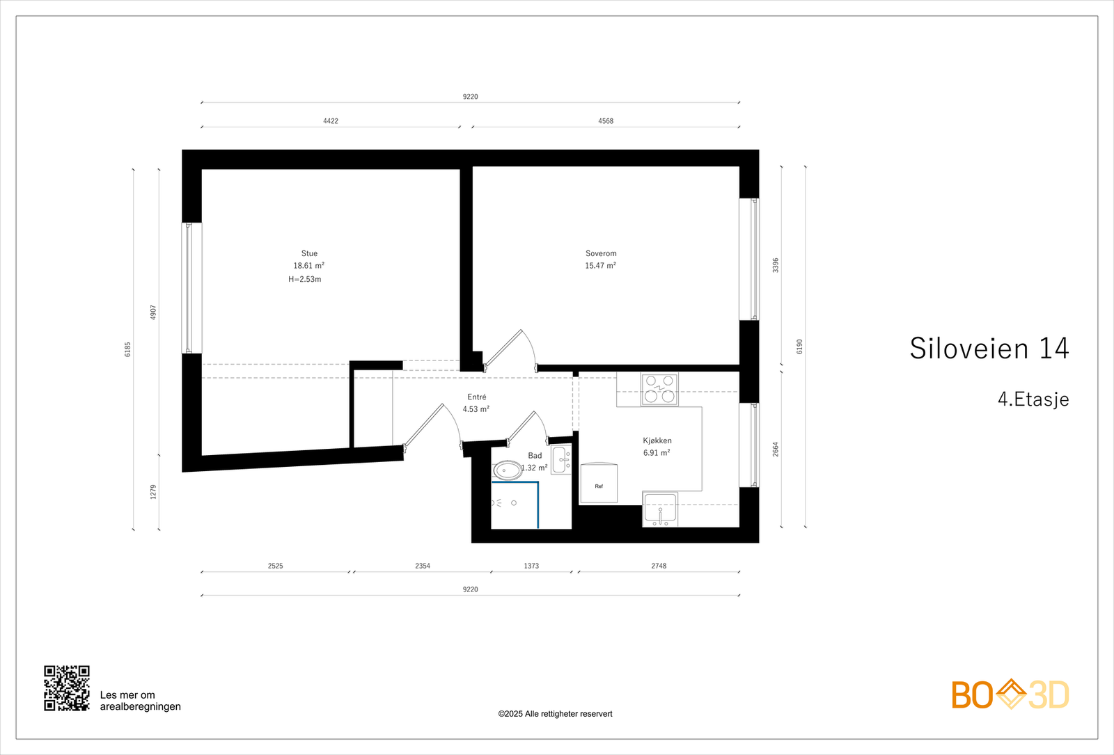
Dette er en pen og romslig 2-roms beliggende i byggets toppetasje (4. etasje). Her får du gleden av store vindusflater og en god, gjennomgående planløsning som gir en luftig og fin romfølelse. Boligen ligger høyt og fritt til uten innsyn.
Boligen består av en lys stue med plass til sofagruppe og spisebord, pent, separat kjøkken hvor alle hvitevarer medfølger, lekkert bad oppgradert i 2024, romslig soverom og en hyggelig entré.
Fyring, varmtvann og bredbånd nett er inkludert i felleskostnadene. Av ekstern lagring medfølger kjellerbod på 7 kvm.
Leiligheten ligger i et populært og meget sentralt område på Sinsen, i høyden like ved Carl Berner og Grünerløkka. Du har tilgang til bredt kollektivtilbud like utenfor døren - og gangavstand til det aller meste byen har å tilby!
Mangler du egenkapital? Boligen kan kjøpes med Finit Deleie.
Velkommen til en hyggelig visning!
Dette er en pen og romslig 2-roms beliggende i byggets toppetasje (4. etasje). Her får du gleden av store vindusflater og en god, gjennomgående planløsning som gir en luftig og fin romfølelse. Boligen ligger høyt og fritt til uten innsyn.
Boligen består av en lys stue med plass til sofagruppe og spisebord, pent, separat kjøkken hvor alle hvitevarer medfølger, lekkert bad oppgradert i 2024, romslig soverom og en hyggelig entré.
Fyring, varmtvann og bredbånd nett er inkludert i felleskostnadene. Av ekstern lagring medfølger kjellerbod på 7 kvm.
Leiligheten ligger i et populært og meget sentralt område på Sinsen, i høyden like ved Carl Berner og Grünerløkka. Du har tilgang til bredt kollektivtilbud like utenfor døren - og gangavstand til det aller meste byen har å tilby!
Mangler du egenkapital? Boligen kan kjøpes med Finit Deleie.
Velkommen til en hyggelig visning!
NB: Knappen for å vise hele beskrivelsen har kun en visuell effekt.
NB: Knappen for å vise hele beskrivelsen har kun en visuell effekt.
Salgsoppgaven beskriver vesentlig og lovpålagt informasjon om eiendommen
Se komplett salgsoppgaveNyttige lenker
Nærområdet
EIE eiendomsmegling Løren
Annonseinformasjon
| FINN-kode | 401803684 |
|---|---|
| Sist endret | 15. sep. 2025 12:29 |
| Referanse | 71240452 |
Annonsene kan være mangelfulle i forhold til lovpålagt opplysningsplikt. Før bindende avtale inngås oppfordres interessenter til å innhente komplett informasjon fra meglerforetaket, selger eller utleier.































