Bildegalleri

EIE Eiendomsmegling v/ Jr. Partner Håkon Hovland presenterer Postvegen 255!
Solgt
Særheim | Laland
Innbydende og oppgradert enebolig med solrik og stor hage | Landlige omgivelser på Særheim/Laland!
Prisantydning4 690 000 kr
Nøkkelinfo
- Boligtype
- Enebolig
- Eieform
- Eier (Selveier)
- Soverom
- 1
- Internt bruksareal
- 178 m² (BRA-i)
- Bruksareal
- 182 m²
- Eksternt bruksareal
- 4 m² (BRA-e)
- Balkong/Terrasse
- 37 m² (TBA)
- Byggeår
- 1964
- Energimerking
- F - Oransje
- Rom
- 3
- Tomteareal
- 622 m² (eiet)
Fasiliteter
Balkong/Terrasse
Peis/Ildsted
Barnevennlig
Rolig
Kabel-TV
Moderne
Garasje/P-plass
Turterreng
Offentlig vann/kloakk
Utsikt
Bredbåndstilknytning
Om boligen
EIE Eiendomsmegling v/ Jr. Partner Håkon Hovland presenterer Postvegen 255!
Dette er en innbydende og oppgradert enebolig med solrik og stor hage i landlige omgivelser på Særheim/Laland! Boligen ligger fint til mellom Bryne og Klepp Stasjon og det er om lag 2 km til togstasjon.
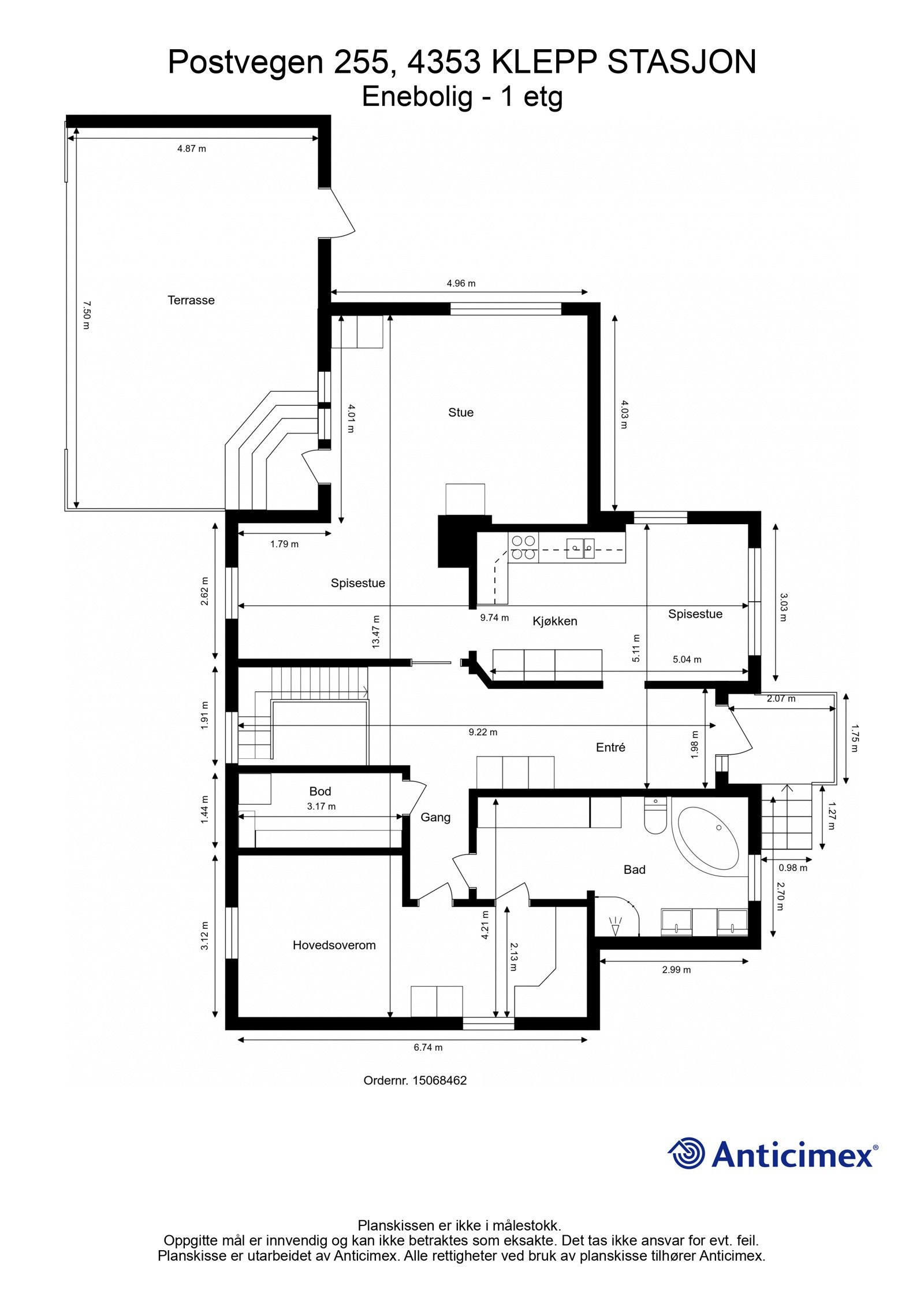
Innhold:
- 1.etg: gang, bad, bod, stue, kjøkken, soverom
- Kjeller: gang, bad/vaskerom, kjellerstue, 2 soverom
Kort fortalt:
- Romslig enebolig i landlige omgivelser
- Pent opparbeidet tomt og inngjerdet hage
- Mulighet for å dyrke egne grønnsaker, frukt og urter
- Tomten måler 622 kvm.
- Sørvendt og solrikt uteområde.
- Terrasse på 37 kvm
- Godt vedlikeholdt bolig med 68% TG1
- Stor og lys stue med gode møbleringsmuligheter
- Varmepumpe og peisovn
- Innholdsrik kjeller
- Store bad og eget vaskerom
- Kort vei til togstasjon
Velkommen til visning!
NB: Knappen for å vise hele beskrivelsen har kun en visuell effekt.
NB: Knappen for å vise hele beskrivelsen har kun en visuell effekt.
Salgsoppgaven beskriver vesentlig og lovpålagt informasjon om eiendommen
Se komplett salgsoppgaveNærområdet
EIE eiendomsmegling - Rogaland Eiendomsmegling AS
Annonseinformasjon
| FINN-kode | 401305630 |
|---|---|
| Sist endret | 17. apr. 2025 11:49 |
| Referanse | 54250081 |
Annonsene kan være mangelfulle i forhold til lovpålagt opplysningsplikt. Før bindende avtale inngås oppfordres interessenter til å innhente komplett informasjon fra meglerforetaket, selger eller utleier.













































