Bildegalleri

Velkommen til Gyldenløves gate 21A!
Solgt
Solvang
Lekker andelsleilighet i 1.etg! Romslig veranda mot syd med gode solforhold - god planløsning - sentrumsnært - parkering
Prisantydning2 350 000 kr
Nøkkelinfo
- Boligtype
- Leilighet
- Eieform
- Andel
- Soverom
- 1
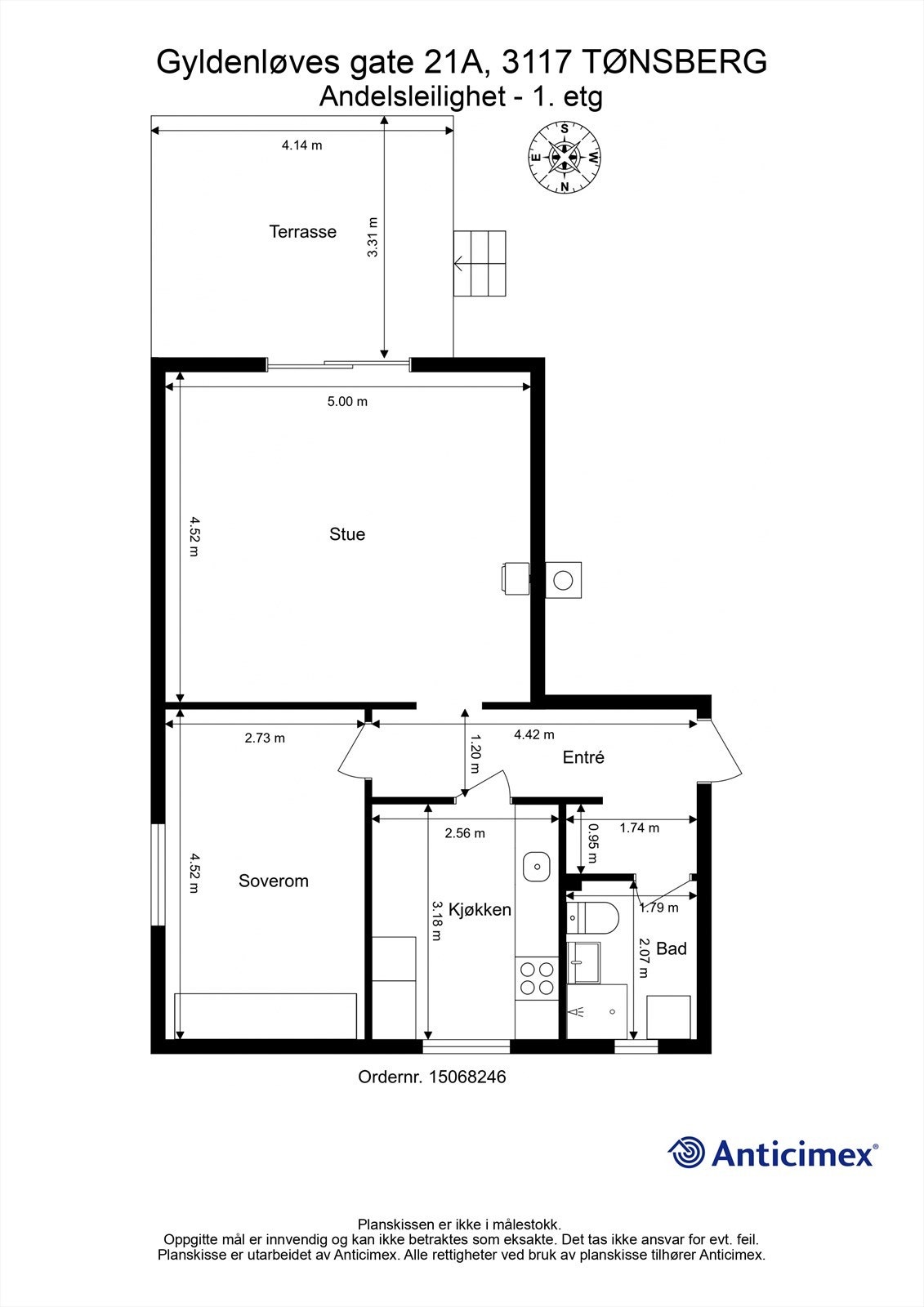
- Internt bruksareal
- 57 m² (BRA-i)
- Bruksareal
- 68 m²
- Eksternt bruksareal
- 11 m² (BRA-e)
- Balkong/Terrasse
- 14 m² (TBA)
- Etasje
- 1
- Byggeår
- 1954
- Energimerking
- G - Oransje
- Rom
- 2
- Tomteareal
- 2 547 m²
Fasiliteter
Balkong/Terrasse
Barnevennlig
Bredbåndstilknytning
Garasje/P-plass
Hage
Ingen gjenboere
Kabel-TV
Offentlig vann/kloakk
Peis/Ildsted
Rolig
Sentralt
Turterreng
Om boligen
Velkommen til Gyldenløves gate 21A!
Dette er en lettstelt og praktisk leilighet beliggende i et veletablert og populært nabolag på Solvang med alle sentrumsfasiliteter innenfor kort avstand. Leiligheten er praktisk innredet med 1 soverom, bad, separat kjøkken med plass til spisebord og romslig stue med direkte adkomst til solfylt balkong mot syd/vest.
Leiligheten har en lekker og tidsriktige fargepalett på vegger og nyere gjennomgående gulv som står i ett med stilen og gir et fint og moderne inntrykk.
Velkommen til visning og velkommen hjem!
Dette er en lettstelt og praktisk leilighet beliggende i et veletablert og populært nabolag på Solvang med alle sentrumsfasiliteter innenfor kort avstand. Leiligheten er praktisk innredet med 1 soverom, bad, separat kjøkken med plass til spisebord og romslig stue med direkte adkomst til solfylt balkong mot syd/vest.
Leiligheten har en lekker og tidsriktige fargepalett på vegger og nyere gjennomgående gulv som står i ett med stilen og gir et fint og moderne inntrykk.
Velkommen til visning og velkommen hjem!
NB: Knappen for å vise hele beskrivelsen har kun en visuell effekt.
NB: Knappen for å vise hele beskrivelsen har kun en visuell effekt.
Salgsoppgaven beskriver vesentlig og lovpålagt informasjon om eiendommen
Se komplett salgsoppgaveNyttige lenker
Nærområdet
Krogsveen Sandefjord
Verdien av en god megler.
Annonseinformasjon
| FINN-kode | 401250689 |
|---|---|
| Sist endret | 01. sep. 2025 05:19 |
| Referanse | KR22.2585 |
Annonsene kan være mangelfulle i forhold til lovpålagt opplysningsplikt. Før bindende avtale inngås oppfordres interessenter til å innhente komplett informasjon fra meglerforetaket, selger eller utleier.




































