Bildegalleri

Velkommen til Fagerheimagata 9A, presentert av Schala & Partners ved Henrik Jensen, tlf. 996 92 427.
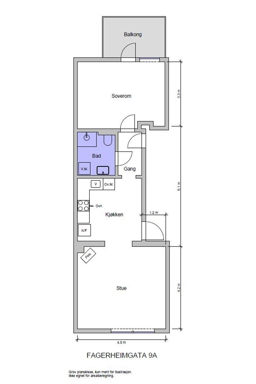
Lys og gjennomgående 2-roms med balkong | Soverom vendt mot bakgård | Bad fra 2018 | Vinduer fra 2019 | Peisovn
Nøkkelinfo
- Boligtype
- Leilighet
- Eieform
- Aksje
- Soverom
- 1
- Internt bruksareal
- 52 m² (BRA-i)
- Bruksareal
- 60 m²
- Eksternt bruksareal
- 8 m² (BRA-e)
- Balkong/Terrasse
- 6 m² (TBA)
- Etasje
- 1
- Byggeår
- 1930
- Energimerking
- G - Rød
- Rom
- 2
- Tomteareal
- 1 095 m² (eiet)
Fasiliteter
Om boligen
Velkommen til Fagerheimgata 9A! En attraktiv og gjennomgående 2-roms med moderne standard og gjennomgående planløsning. Flotte materialvalg, nyere kjøkken og bad, samt adkomst til en trivelig balkong vendt mot rolig bakgård.
Sentral og populær beliggenhet på Grünerløkka, med nærhet til alt av kulturelle begivenheter, restauranter, parker, utesteder og andre servicetilbud. Meget gode kollektivmuligheter like utenfor døren.
- Lys og gjenomgående 2-roms
- Nytt gulv 2025
- Soverom pusset opp i 2025
- Bad fra 2018
- Varmtvann inkl. i felleskostnadene
- Trivelig og skjermet balkong
- Vinduer/balkongdør fra 2019
- Vedovn i stue
- Attraktiv og sentrumnær beliggenhet
- Kjellerbod + loftsbod
Salgsoppgaven beskriver vesentlig og lovpålagt informasjon om eiendommen
Se komplett salgsoppgaveNyttige lenker
Nærområdet
Schala & Partners Bjørvika/Gamle Oslo
Prisstatistikk
Fagerheimgata 9A
på annonsen
prisantydning per kvadratmeter
Prisfordeling
Pris per m² ligger 12 465 kr under snittet for leiligheter i Grünerløkka - Sofienberg.
Grafen viser antall leiligheter solgt i Grünerløkka - Sofienberg siste året fordelt på pris per m² - totalt 2 448 leiligheter
Antall boliger
Kvadratmeterpris tilsvarer prisantydning pluss fellesgjeld per kvadratmeter (p-rom eller BRA-i). Prisene i grafen er avrundet til nærmeste 1000 kr.
Lignende boliger til salgs










Lys, pen 4-roms med store vinduer og god planløsning. Romslig stue og separat kjøkken. Populær beliggenhet!
Annonseinformasjon
| FINN-kode | 401040118 |
|---|---|
| Sist endret | 16. aug. 2025 10:49 |
| Referanse | 55240092 |
Annonsene kan være mangelfulle i forhold til lovpålagt opplysningsplikt. Før bindende avtale inngås oppfordres interessenter til å innhente komplett informasjon fra meglerforetaket, selger eller utleier.




























