Bildegalleri

Velkommen til Bidenkaps gate 1B, presentert av Charlotte Solli v/EIE eiendomsmegling
Solgt
St.Hanshaugen/Meyerløkka
Lys og fin 2-roms hjørneleil. m/balkong - Fjernvarme - Heis - Parkeringsmulighet i garasje - FINIT godkjent*
Prisantydning5 250 000 kr
Nøkkelinfo
- Boligtype
- Leilighet
- Eieform
- Eier (Selveier)
- Soverom
- 1
- Internt bruksareal
- 40 m² (BRA-i)
- Bruksareal
- 48 m²
- Eksternt bruksareal
- 8 m² (BRA-e)
- Balkong/Terrasse
- 6 m² (TBA)
- Etasje
- 2
- Byggeår
- 2007
- Energimerking
- D - Mørkegrønn
- Rom
- 2
- Tomteareal
- 522 m² (eiet)
Fasiliteter
Balkong/Terrasse
Garasje/P-plass
Heis
Offentlig vann/kloakk
Parkett
Vaktmester-/vektertjeneste
Sentralt
Bredbåndstilknytning
Moderne
Rolig
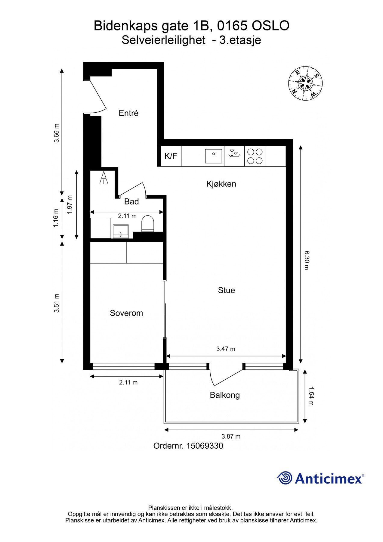
Om boligen
Velkommen til Bidenkaps gate 1B - Easy living i et trivelig og sentralt område med gangavstand til "alt"!
Hjørneleilighet i moderne bygg fra 2007 i bydel St.Hanshaugen. Området passer godt for deg som ønsker enkel tilgang til det aller meste av byens fasiliteter.
Bygget ligger i lukket gård, og er dermed godt skjermet for trafikk- og gatestøy. Leiligheten er beliggende i byggets 2.etg (heis).
Planløsningen oppleves romslig og svært praktisk, med blant annet åpen stue og kjøkken med vinduer fra 2 sider og utgang til solrik balkong. Romslig gang/entré med god plass til stort garderobeskap, pent bad med vaskemaskin som medfølger og ett soverom.
- Stor, solrik balkong
- Rikelig med lys fra 2 sider
- Godt skjermet fra trafikk- og støy
- Alle vegger og tak nymalt i mars 2025
- Oppvarming, varmtvann og internett inkl.
- Mulig leie av garasjeplass (2.000,-/mnd)
- Innflytningsklar og ledig omgående
Mangler du egenkapital? Boligen kan kjøpes med Finit Deleie.
Hjørneleilighet i moderne bygg fra 2007 i bydel St.Hanshaugen. Området passer godt for deg som ønsker enkel tilgang til det aller meste av byens fasiliteter.
Bygget ligger i lukket gård, og er dermed godt skjermet for trafikk- og gatestøy. Leiligheten er beliggende i byggets 2.etg (heis).
Planløsningen oppleves romslig og svært praktisk, med blant annet åpen stue og kjøkken med vinduer fra 2 sider og utgang til solrik balkong. Romslig gang/entré med god plass til stort garderobeskap, pent bad med vaskemaskin som medfølger og ett soverom.
- Stor, solrik balkong
- Rikelig med lys fra 2 sider
- Godt skjermet fra trafikk- og støy
- Alle vegger og tak nymalt i mars 2025
- Oppvarming, varmtvann og internett inkl.
- Mulig leie av garasjeplass (2.000,-/mnd)
- Innflytningsklar og ledig omgående
Mangler du egenkapital? Boligen kan kjøpes med Finit Deleie.
NB: Knappen for å vise hele beskrivelsen har kun en visuell effekt.
NB: Knappen for å vise hele beskrivelsen har kun en visuell effekt.
Salgsoppgaven beskriver vesentlig og lovpålagt informasjon om eiendommen
Se komplett salgsoppgaveNyttige lenker
Nærområdet
EIE eiendomsmegling Vinderen
Annonseinformasjon
| FINN-kode | 400963090 |
|---|---|
| Sist endret | 12. juli 2025 10:54 |
| Referanse | 31250053 |
Annonsene kan være mangelfulle i forhold til lovpålagt opplysningsplikt. Før bindende avtale inngås oppfordres interessenter til å innhente komplett informasjon fra meglerforetaket, selger eller utleier.





























