Bildegalleri

EIE eiendomsmegling v/Michael Knutsen har gleden av å presentere Åsveien 8
Velholdt enebolig på Evenskjer | 2 bad, 3 soverom | Nytt bad i 2016 | Dobbelgarasje | Solrikt og utsikt | Barnevennlig
Prisantydning2 850 000 kr
Nøkkelinfo
- Boligtype
- Enebolig
- Eieform
- Eier (Selveier)
- Soverom
- 3
- Internt bruksareal
- 184 m² (BRA-i)
- Bruksareal
- 217 m²
- Eksternt bruksareal
- 33 m² (BRA-e)
- Balkong/Terrasse
- 30 m² (TBA)
- Byggeår
- 1981
- Energimerking
- F - Oransje
- Rom
- 4
- Tomteareal
- 916 m² (eiet)
Fasiliteter
Barnevennlig
Balkong/Terrasse
Garasje/P-plass
Kabel-TV
Parkett
Peis/Ildsted
Turterreng
Utsikt
Bredbåndstilknytning
Rolig
Om boligen
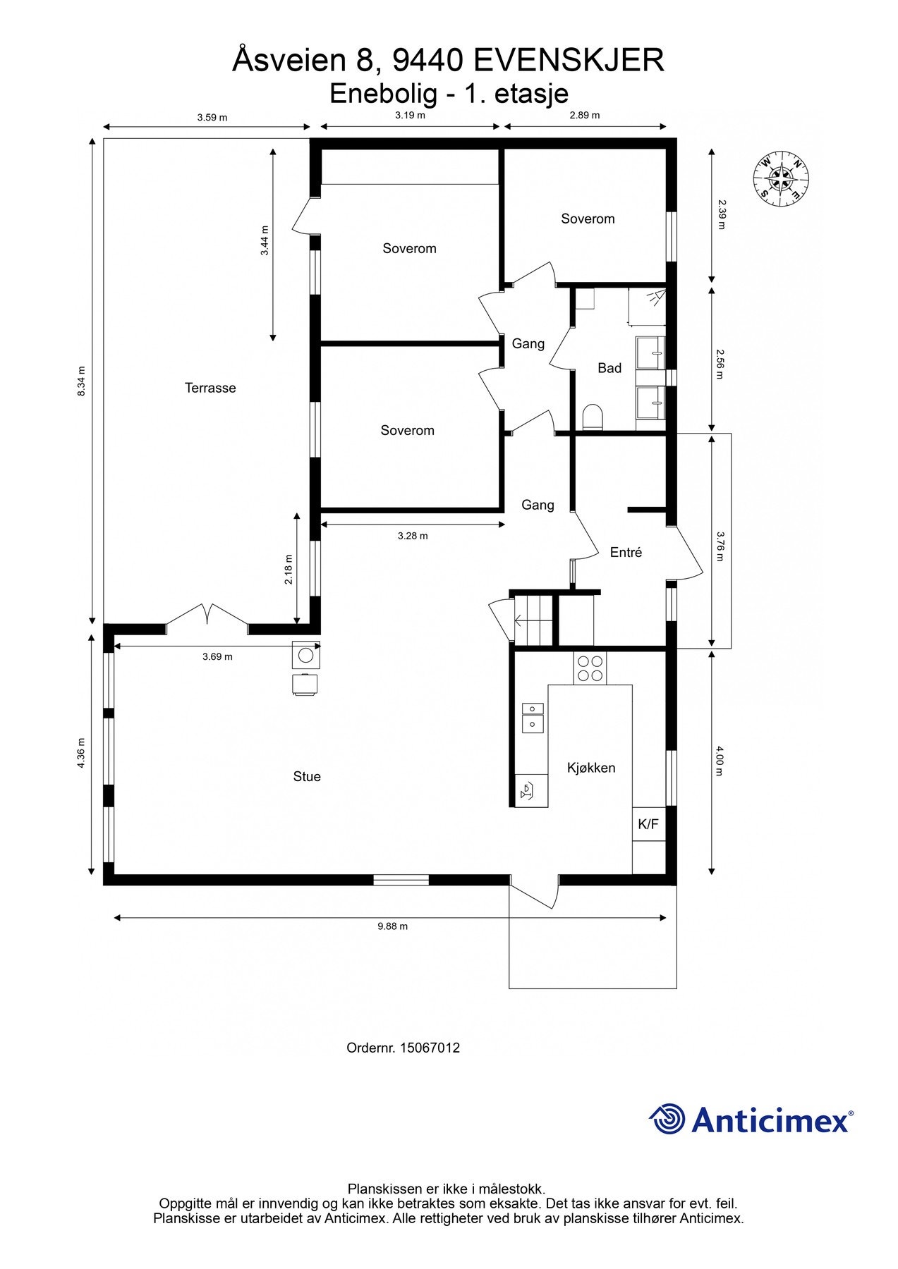
EIE eiendomsmegling v/Michael Knutsen har gleden av å presentere Åseveien 8, en innholdsrik og velholdt enebolig i et etablert boligfelt på Evenskjer. Boligen inneholder tre soverom og to bad, hvorav et er oppgradert i 2016. Et familievennlig hjem i rolige og barnevennlige omgivelser, med gangavstand til skole, barnehage, fotballbane og turområder.
- Innholdsrik og velholdt enebolig på Evenskjer
- 2 bad, 3 soverom
- Pent bad oppgradert i 2016
- Oppgradert tak, vinduer, ytterdører, varmtvannsbereder (2016) og deler av kjøkken
- Dobbelgarasje
- Solrik eiendom med fin utsikt
- Rolig og barnevennlig. Trygg og kort vei til skole og barnehage.
Underetasje: Gang, kjellerstue, bad, soverom og to boder
1. etasje: Entré, gang, stue, kjøkken, bad og tre soverom
Velkommen til en trivelig visning!
NB: Knappen for å vise hele beskrivelsen har kun en visuell effekt.
NB: Knappen for å vise hele beskrivelsen har kun en visuell effekt.
Salgsoppgaven beskriver vesentlig og lovpålagt informasjon om eiendommen
Se komplett salgsoppgaveNyttige lenker
Nærområdet
EIE eiendomsmegling Harstad
Annonsene kan være mangelfulle i forhold til lovpålagt opplysningsplikt. Før bindende avtale inngås oppfordres interessenter til å innhente komplett informasjon fra meglerforetaket, selger eller utleier.
















































