Bildegalleri

Velkommen til Gystadveien 3!
Aurskog
Pen, familievennlig enebolig med nytt tak i 2023. Pent opparbeidet hage, 3 soverom, 2 stuer og garasje!
Prisantydning3 790 000 kr
Nøkkelinfo
- Boligtype
- Enebolig
- Eieform
- Eier (Selveier)
- Soverom
- 3
- Internt bruksareal
- 149 m² (BRA-i)
- Bruksareal
- 149 m²
- Balkong/Terrasse
- 46 m² (TBA)
- Etasje
- 2
- Byggeår
- 1988
- Energimerking
- E - Oransje
- Rom
- 5
- Tomteareal
- 420 m² (eiet)
Fasiliteter
Balkong/Terrasse
Barnevennlig
Garasje/P-plass
Hage
Kjæledyr tillatt
Offentlig vann/kloakk
Peis/Ildsted
Rolig
Sentralt
Lademulighet
Balansert ventilasjon
Visning
søndag, 22. februar
14:00 – 15:00
Kontakt megler for avtale om visning.
For å delta på visning, ber vi om at du melder deg på. Da sikrer vi at du får nødvendig informasjon og at det er satt av tilstrekkelig med tid. Kontakt megler dersom annet tidspunkt ønskes. Husk å lese salgsoppgaven før visningen, så du stiller forberedt. NB. Visning utgår dersom det ikke er noen påmeldte gjeldene dag før kl 11.
Ønsker du kun å bli holdt orientert, kan du fra eiendommens hjemmeside få varsel om solgtpris, eller kontakte megler.
VisningspåmeldingOm boligen
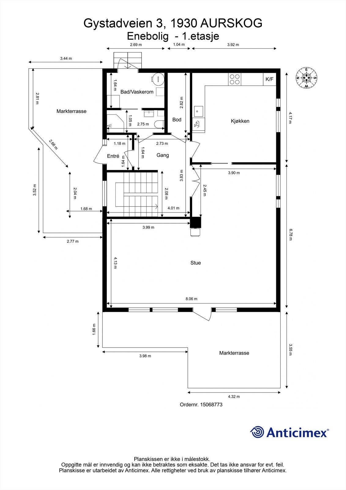
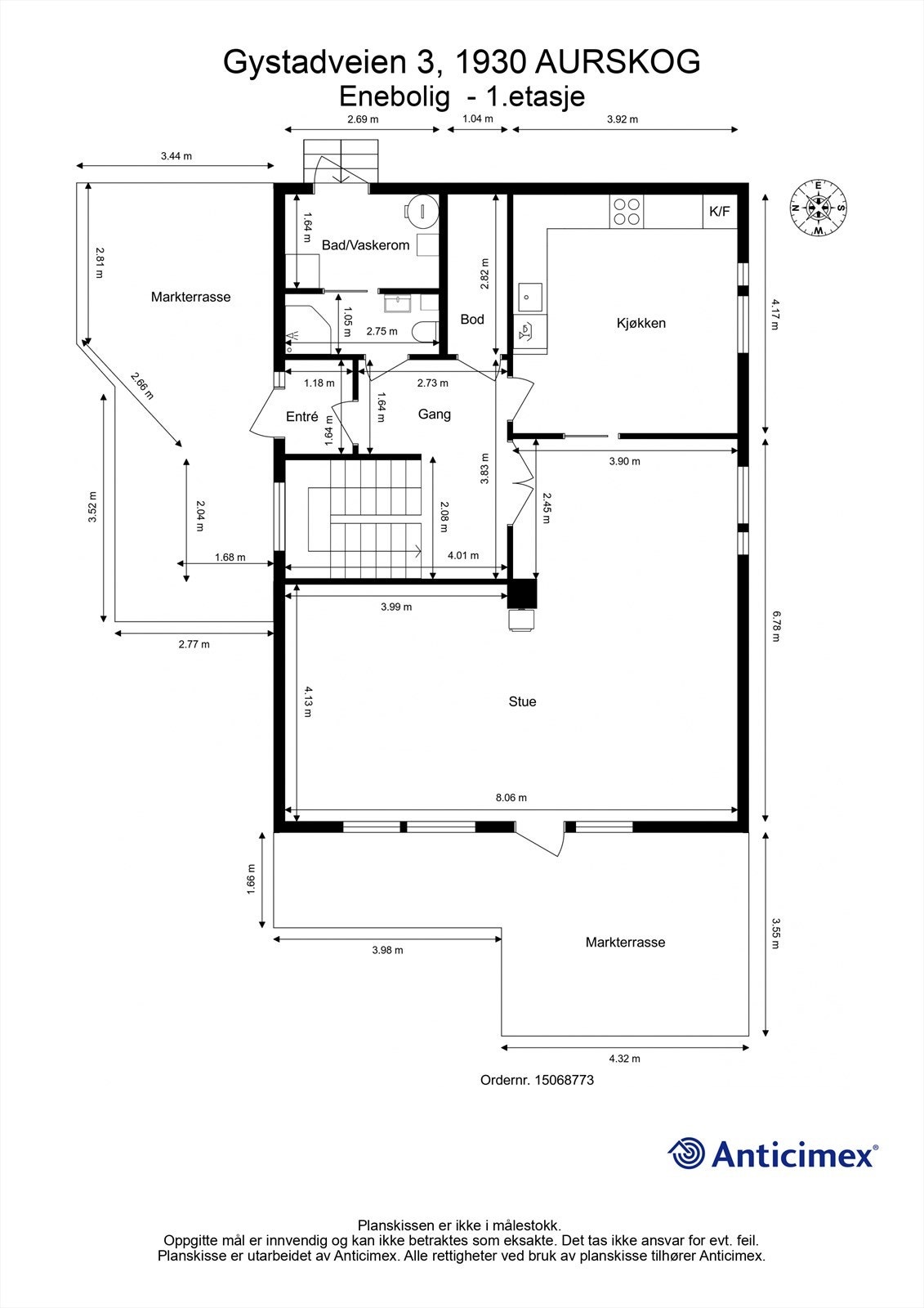
Velkommen til Gystadveien 3, en flott enebolig over to plan med svært barnevennlig beliggenhet og landlig sjarm. Eiendommen har en pent opparbeidet hage som ble oppgradert i 2019, to solrike terrasser, balkong og garasje. Videre har eneboligen varme i gulv i 1.etg (utenom bod), peis i stue samt balansert ventilasjon (fra 2023/2024). Familievennlig planløsning med alle tre soverom i 2.etg, stue og baderom i begge etasjer og øvrige gode lagringsmuligheter med bl.a. innebod, kneloft og garasje.
- Badet i første etasje er tilknyttet vaskerom med egen utgang
- Nylig overflateoppusset deler av 2.etg
- To flotte terrasser med gode solforhold
- Balkong utenfor loftstuen
- Parkering i garasje og på gårdsplass (elbillader ved inngangspartiet)
- Kort gangavstand til barnehage
- Svært gode solforhold
- Badet i første etasje er tilknyttet vaskerom med egen utgang
- Nylig overflateoppusset deler av 2.etg
- To flotte terrasser med gode solforhold
- Balkong utenfor loftstuen
- Parkering i garasje og på gårdsplass (elbillader ved inngangspartiet)
- Kort gangavstand til barnehage
- Svært gode solforhold
NB: Knappen for å vise hele beskrivelsen har kun en visuell effekt.
NB: Knappen for å vise hele beskrivelsen har kun en visuell effekt.
Salgsoppgaven beskriver vesentlig og lovpålagt informasjon om eiendommen
Se komplett salgsoppgaveNyttige lenker
Nærområdet
Krogsveen Lillestrøm
Verdien av en god megler.
Annonseinformasjon
| FINN-kode | 400771083 |
|---|---|
| Sist endret | 14. feb. 2026 06:55 |
| Referanse | KR60.2581 |
Annonsene kan være mangelfulle i forhold til lovpålagt opplysningsplikt. Før bindende avtale inngås oppfordres interessenter til å innhente komplett informasjon fra meglerforetaket, selger eller utleier.











































