Bildegalleri

Velkommen til Tempelveien 90
Sætre
Lys og fin enebolig innerst i rolig blindvei - Flotte solrike uteområder og fjordutsikt fra terrasse
Prisantydning4 990 000 kr
Nøkkelinfo
- Boligtype
- Enebolig
- Eieform
- Eier (Selveier)
- Soverom
- 4
- Internt bruksareal
- 191 m² (BRA-i)
- Bruksareal
- 208 m²
- Eksternt bruksareal
- 17 m² (BRA-e)
- Balkong/Terrasse
- 109 m² (TBA)
- Byggeår
- 1974
- Energimerking
- F - Gul
- Tomteareal
- 462 m² (eiet)
Fasiliteter
Balkong/Terrasse
Barnevennlig
Garasje/P-plass
Hage
Offentlig vann/kloakk
Parkett
Peis/Ildsted
Rolig
Utsikt
Turterreng
Visning
søndag, 08. februar
13:30 – 14:30
For å delta på visning, ber vi om at du melder deg på. Da sikrer vi at du får nødvendig informasjon og at det er satt av tilstrekkelig med tid. Kontakt megler dersom annet tidspunkt ønskes. Husk å lese salgsoppgaven før visningen, så du stiller forberedt. NB. Visning utgår dersom det ikke er noen påmeldte.
Ønsker du kun å bli holdt orientert, kan du fra eiendommens hjemmeside få varsel om solgtpris, eller kontakte megler.
VisningspåmeldingOm boligen
Velkommen til Tempelveien 90!
Lys og innholdsrik enebolig beliggende innerst i rolig blindvei. Pent opparbeidet uteareal, med flere terrasser og flott utsikt over Oslofjorden. Eiendommen grenser mot friområde og det er lite innsyn inn mot boligen. 1.etg har en åpen og luftig planløsning med store vindusflater. Kort vei til Sætre sentrum og bussoverganger i retning Oslo og Drammen.
- Store delvis overbygget terrasser over med meget gode solforhold og fjordutsikt
- Barnevennlig og usjenert beliggenhet
- Kort vei til Sætre sentrum med serveringsteder og diverse butikker
- 1.etg nymalt med nye lister, gulv og fliser
- 2 flislagte bad og eget vaskerom
- 2 stuer og peiser
- Garasje - el-lader
Inneh:
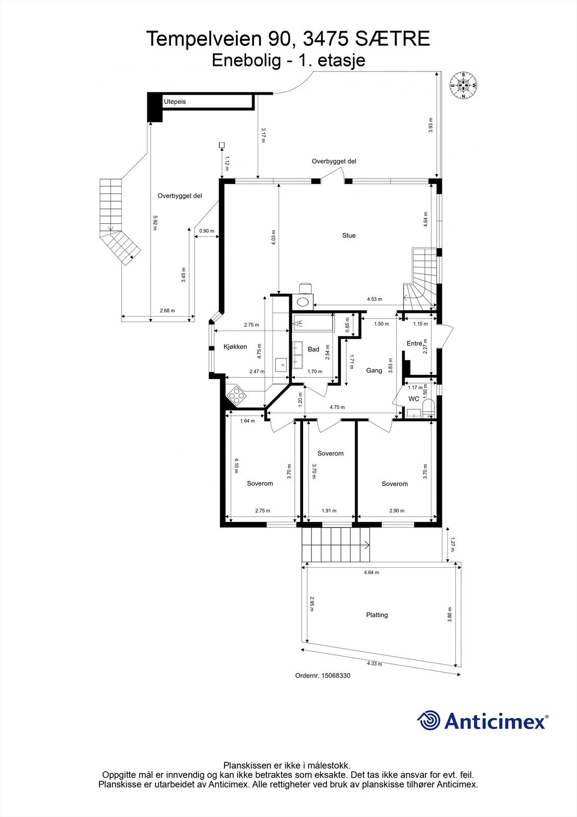
1.etg: Entre, gang, wc, bad, 3 sov, stue og kjøkken
U.etg: Stue, vaskerom, 2 boder, sov og bad
Lys og innholdsrik enebolig beliggende innerst i rolig blindvei. Pent opparbeidet uteareal, med flere terrasser og flott utsikt over Oslofjorden. Eiendommen grenser mot friområde og det er lite innsyn inn mot boligen. 1.etg har en åpen og luftig planløsning med store vindusflater. Kort vei til Sætre sentrum og bussoverganger i retning Oslo og Drammen.
- Store delvis overbygget terrasser over med meget gode solforhold og fjordutsikt
- Barnevennlig og usjenert beliggenhet
- Kort vei til Sætre sentrum med serveringsteder og diverse butikker
- 1.etg nymalt med nye lister, gulv og fliser
- 2 flislagte bad og eget vaskerom
- 2 stuer og peiser
- Garasje - el-lader
Inneh:
1.etg: Entre, gang, wc, bad, 3 sov, stue og kjøkken
U.etg: Stue, vaskerom, 2 boder, sov og bad
NB: Knappen for å vise hele beskrivelsen har kun en visuell effekt.
NB: Knappen for å vise hele beskrivelsen har kun en visuell effekt.
Salgsoppgaven beskriver vesentlig og lovpålagt informasjon om eiendommen
Se komplett salgsoppgaveNyttige lenker
Nærområdet
Krogsveen Røyken
Verdien av en god megler.
Annonseinformasjon
| FINN-kode | 400720435 |
|---|---|
| Sist endret | 04. feb. 2026 18:26 |
| Referanse | KR16.2512 |
Annonsene kan være mangelfulle i forhold til lovpålagt opplysningsplikt. Før bindende avtale inngås oppfordres interessenter til å innhente komplett informasjon fra meglerforetaket, selger eller utleier.





















































