Bildegalleri

Steinarskogen 28 - Presentert av DNB Eiendom v/Martin Engeberg
Veavågen
Innred ditt nye hjem! Nyoppført funkis hvor du kan tilpasse innvendig | Carport | Lave omk v/kjøp
Prisantydning3 790 000 kr
Nøkkelinfo
- Boligtype
- Enebolig
- Eieform
- Eier (Selveier)
- Soverom
- 4
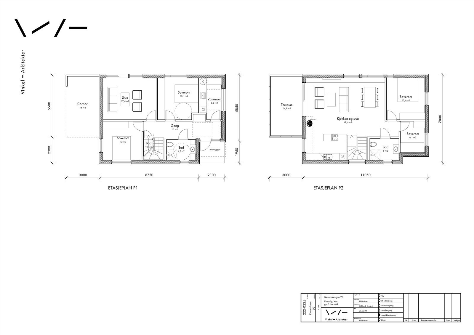
- Internt bruksareal
- 149 m² (BRA-i)
- Bruksareal
- 149 m²
- Balkong/Terrasse
- 20 m² (TBA)
- Etasje
- 2
- Byggeår
- 2025
- Rom
- 6
- Tomteareal
- 371 m² (eiet)
Fasiliteter
Garasje/P-plass
Kjæledyr tillatt
Offentlig vann/kloakk
Rolig
Sentralt
Visning
Velkommen til visning! Meld deg på ved å trykke "visningspåmelding" i våre boligannonser. Ta gjerne kontakt med megler i forkant av visningen om du har spørsmål.
VisningspåmeldingOm boligen
Nyoppført og rålekker funkis sentralt på Vea. Boligens konstruksjon er oppført, men innvendig er det åpent for nye eiere å skape sitt eget drømmehjem.
Boligen er ferdig utvending. Innvendig må kjøper påregne det meste av arbeid selv. Kontakt megler for mer info!
Boligen ligger lunt og fint til i Steinarskogen på Vea i et etablert boligområde med noe spredt nyere bebyggelse. Her bor du med kort vei til alt du trenger i hverdagen, inkludert barnehage, barne- og ungdomskole, butikk og turområde. Boligområdet var opprinnelig et lite skjermet skogområde beliggende på høyden ut mot storhavet, skjærgården og Salvøy. Dette gjør Steinarskogen til et ideelt nabolag for både familier og enkeltpersoner som ønsker å bo i fine omgivelser med alle nødvendige fasiliteter i nærheten.
Boligen er ferdig utvending. Innvendig må kjøper påregne det meste av arbeid selv. Kontakt megler for mer info!
Boligen ligger lunt og fint til i Steinarskogen på Vea i et etablert boligområde med noe spredt nyere bebyggelse. Her bor du med kort vei til alt du trenger i hverdagen, inkludert barnehage, barne- og ungdomskole, butikk og turområde. Boligområdet var opprinnelig et lite skjermet skogområde beliggende på høyden ut mot storhavet, skjærgården og Salvøy. Dette gjør Steinarskogen til et ideelt nabolag for både familier og enkeltpersoner som ønsker å bo i fine omgivelser med alle nødvendige fasiliteter i nærheten.
NB: Knappen for å vise hele beskrivelsen har kun en visuell effekt.
NB: Knappen for å vise hele beskrivelsen har kun en visuell effekt.
Salgsoppgaven beskriver vesentlig og lovpålagt informasjon om eiendommen
Se komplett salgsoppgaveNyttige lenker
Nærområdet
DNB Eiendom AS
Fra hjem til hjem
Annonseinformasjon
| FINN-kode | 400639092 |
|---|---|
| Sist endret | 21. nov. 2025 09:44 |
| Referanse | 707250126 |
Annonsene kan være mangelfulle i forhold til lovpålagt opplysningsplikt. Før bindende avtale inngås oppfordres interessenter til å innhente komplett informasjon fra meglerforetaket, selger eller utleier.















