Bildegalleri

Velkommen til Toftes gate 2!
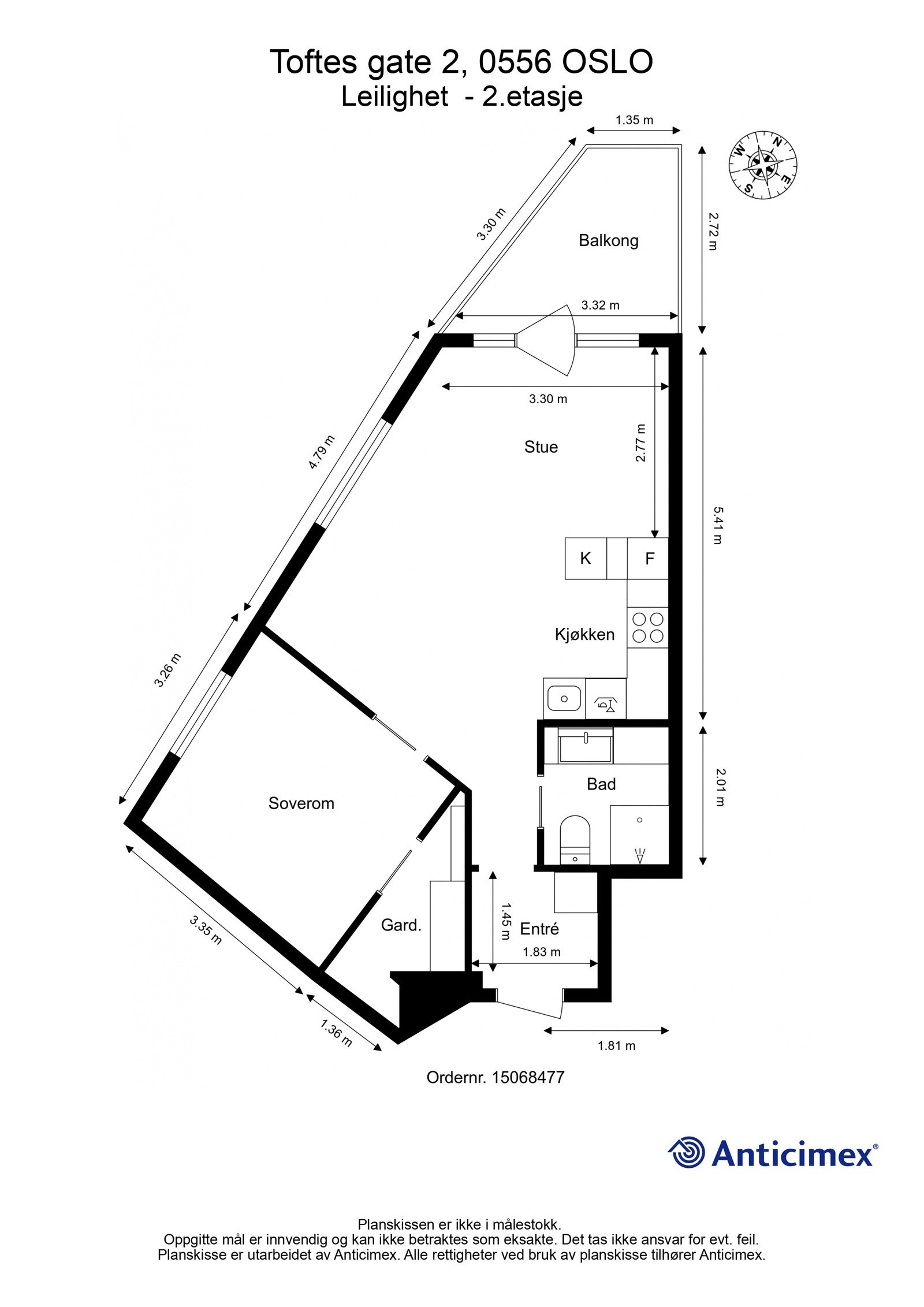
Moderne 2-R hjørneleilighet m/god planløsning og balkong I Garasjeplass m/lader I Heis I Lave felleskost I Store vinduer
Nøkkelinfo
- Boligtype
- Leilighet
- Eieform
- Eier (Selveier)
- Soverom
- 1
- Internt bruksareal
- 52 m² (BRA-i)
- Bruksareal
- 57 m²
- Eksternt bruksareal
- 5 m² (BRA-e)
- Balkong/Terrasse
- 6 m² (TBA)
- Etasje
- 2
- Byggeår
- 2005
- Energimerking
- D - Mørkegrønn
- Rom
- 2
- Tomteareal
- 750 m² (eiet)
Fasiliteter
Om boligen
Velkommen til Toftes gate 2! En fin og moderne 2-roms hjørneleilighet med en nordvestvendt balkong på 6 kvm og garasjeplass med el-billader. Praktisk og god planløsning med store vindusflater som sørger for gode lysinnslipp, soverom med omkledningsrom, pent kjøkken og bad. Som beboer i sameiet har du tilgang på en herlig takterrasse med gode solforhold samt god utsikt.
Her bor man sentralt til med alt av parker, kafeer, restauranter, matbutikk, treningssenter og kollektivmuligheter like rundt hjørnet.
Verdt å merke seg:
- Lave felleskostnader
- Balkong på 6 kvm
- Garasjeplass med lader
- Fyring og V.V inkl.
- Veldrevet sameie
- Felles takterrasse med gode solforhold og utsikt
- Omkledningsrom
- Kjellerbod på 5 kvm
- Utleie estimert kr. 20.000 per mnd
Velkommen til hyggelig visning!
Salgsoppgaven beskriver vesentlig og lovpålagt informasjon om eiendommen
Se komplett salgsoppgaveNyttige lenker
Nærområdet
Schala & Partners Grünerløkka
Prisstatistikk
Toftes gate 2
på annonsen
prisantydning per kvadratmeter
Prisfordeling
Pris per m² ligger 7 500 kr over snittet for leiligheter i Grünerløkka - Sofienberg.
Grafen viser antall leiligheter solgt i Grünerløkka - Sofienberg siste året fordelt på pris per m² - totalt 2 425 leiligheter
Antall boliger
Kvadratmeterpris tilsvarer prisantydning pluss fellesgjeld per kvadratmeter (p-rom eller BRA-i). Prisene i grafen er avrundet til nærmeste 1000 kr.
Annonseinformasjon
| FINN-kode | 400395716 |
|---|---|
| Sist endret | 21. juli 2025 05:19 |
| Referanse | 16240187 |
Annonsene kan være mangelfulle i forhold til lovpålagt opplysningsplikt. Før bindende avtale inngås oppfordres interessenter til å innhente komplett informasjon fra meglerforetaket, selger eller utleier.




























