Bildegalleri

Velkommen til Sandakerveien 10M - Presentert av Blanca Gravador ved Aktiv.
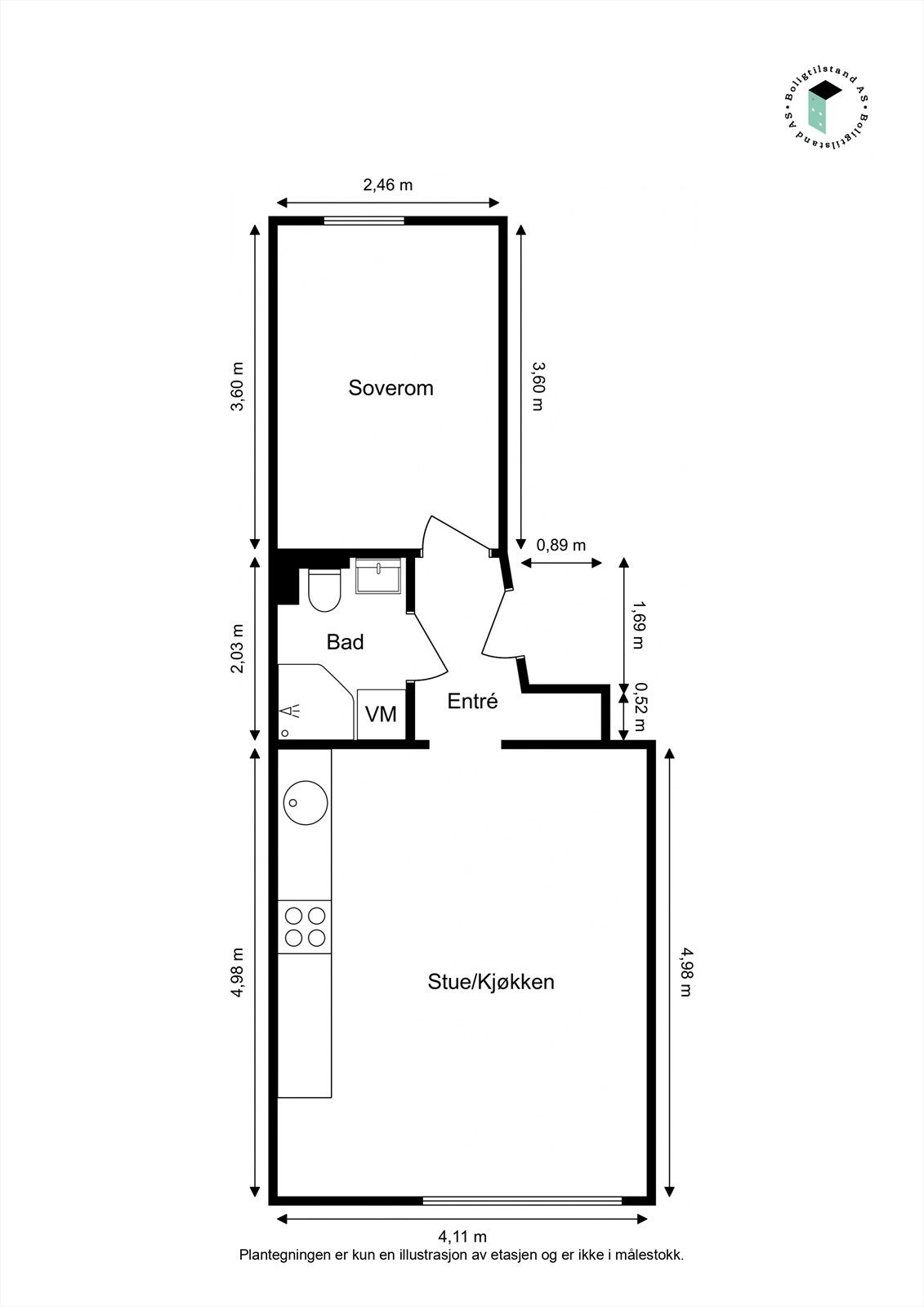
Pen og gjennomgående 2-roms. Innflyttingsklar. Fyring/v.vann ink. IN-ordning. Fantastisk beliggenhet rett ved Akerselva!
Nøkkelinfo
- Boligtype
- Leilighet
- Eieform
- Andel
- Soverom
- 1
- Internt bruksareal
- 36 m² (BRA-i)
- Bruksareal
- 40 m²
- Eksternt bruksareal
- 4 m² (BRA-e)
- Byggeår
- 1936
- Energimerking
- F - Mørkegrønn
- Rom
- 2
- Tomteareal
- 4 653 m² (eiet)
Fasiliteter
Om boligen
Månedlige felleskostnader kan reduseres til kr. 4 642,- ved del nedbetaling av boligens fellesgjeld
Kvaliteter:
- Høy 1. etasje skjermet for innsyn
- Gjennomgående planløsning
- Stue/kjøkken i åpen og sosial løsning
- Soverom vendt mot bilfritt område
- Bad med opplegg for vaskemaskin
- Ekstern bod og skap i kjeller
- Loftsbod med 4 kvm gulvareal
- Bilfritt gårdsrom
- Fyring, v.vann, internett ink.
- Fellesvaskeri og hobbyrom til leie
- Veldrevet borettslag
Boligen er en skjult perle ved Akerselva med flere av byens fineste parker som nærmeste nabo og god tilgang til kollektivtrafikk. Gangavstand til restauranter, kaféer og yrende byliv. Her vil du bo godt og tilbaketrukket i et nabolag med masse sjarm og sjel.
Salgsoppgaven beskriver vesentlig og lovpålagt informasjon om eiendommen
Se komplett salgsoppgaveNærområdet
Aktiv Gamle Oslo/Bjørvika
Prisstatistikk
Sandakerveien 10M
på annonsen
prisantydning per kvadratmeter
Prisfordeling
Pris per m² ligger 12 138 kr over snittet for leiligheter i Grünerløkka - Sofienberg.
Grafen viser antall leiligheter solgt i Grünerløkka - Sofienberg siste året fordelt på pris per m² - totalt 2 414 leiligheter
Antall boliger
Kvadratmeterpris tilsvarer prisantydning pluss fellesgjeld per kvadratmeter (p-rom eller BRA-i). Prisene i grafen er avrundet til nærmeste 1000 kr.
Annonseinformasjon
| FINN-kode | 400329701 |
|---|---|
| Sist endret | 25. juni 2025 20:10 |
| Referanse | 1002250116 |
Annonsene kan være mangelfulle i forhold til lovpålagt opplysningsplikt. Før bindende avtale inngås oppfordres interessenter til å innhente komplett informasjon fra meglerforetaket, selger eller utleier.







































