Bildegalleri

Sjekk denne flotte boligen!
Utsiktseiendom på Vesterøya - Tiltalende arkitekttegnet enebolig/generasjonsbolig på 249 kvm. Supre solforhold.
Pris på lån: fra 33 796 kr/mnd
Eff.rente 5,00 %. 5 845 000 o/25 år. Kostnad: 4 293 800 kr. Totalt 10 138 800 kr.
LånekalkulatorNøkkelinfo
- Boligtype
- Enebolig
- Eieform
- Eier (Selveier)
- Soverom
- 3
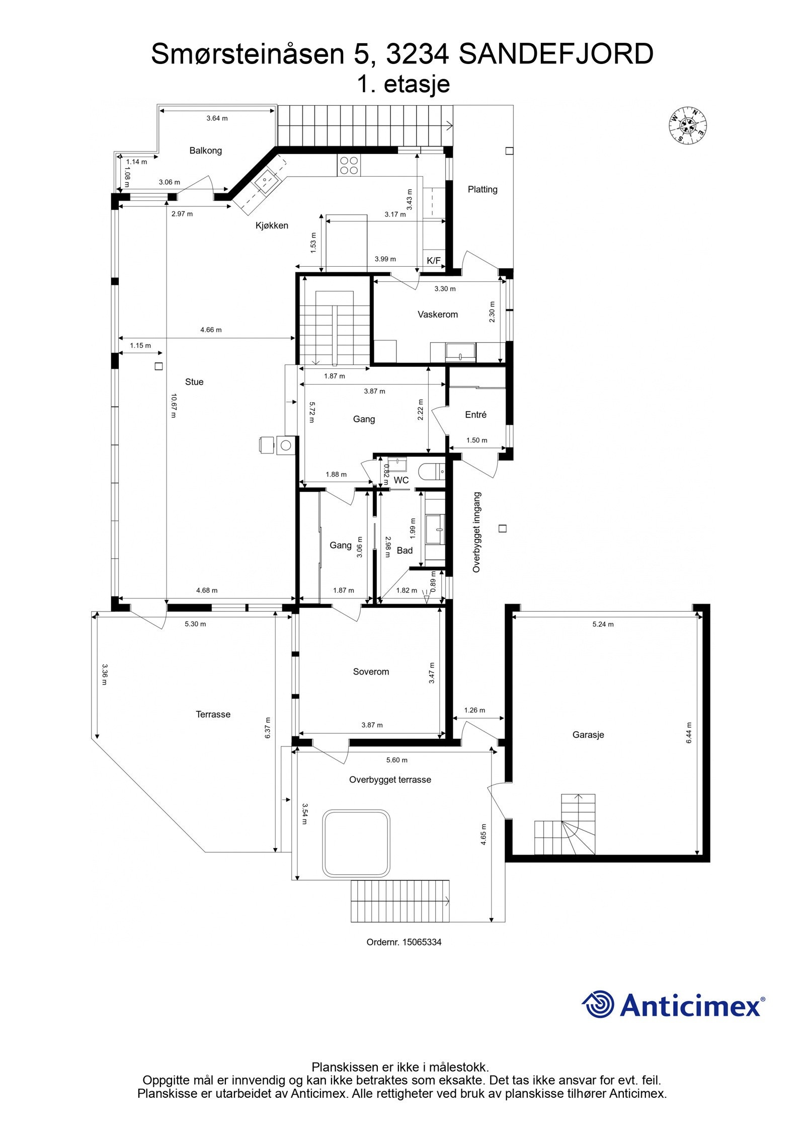
- Internt bruksareal
- 249 m² (BRA-i)
- Bruksareal
- 298 m²
- Eksternt bruksareal
- 49 m² (BRA-e)
- Balkong/Terrasse
- 96 m² (TBA)
- Byggeår
- 1985
- Energimerking
- E - Gul
- Tomteareal
- 1 016 m² (eiet)
Om boligen
Trine Sanne og EIE Eiendomsmegling ønsker velkommen til denne flotte eneboligen på Vesterøya! Fantastisk beliggenhet på toppen av Smørsteinåsen med supre solforhold og sjøutsikt.
Ønsker du visning, kontakt megler på tlf. 901 16442.
Her kan man virkelig nyte sommeren og fantastiske badeplasser. Sjøbakken ligger rett nedenfor eiendommen, og ikke minst Korsvika, Tangen, Langeby, Vøra, Asnes og Grubesand i kort avstand. Eller utforsk mange av svabergene og strendene videre utover kyststien på Vesterøya. Landlige gårdsbutikker i nærområdet. Flotte turområder hele året med kyststi, perfekt for joggeturer eller lufting av hunden etc. 500 m til bussholdeplass. Herfra går bussrute med jevnlige avganger. Det er ikke boplikt i Sandefjord så en enebolig her kan meget vel benyttes som en fritidsbolig!
Salgsoppgaven beskriver vesentlig og lovpålagt informasjon om eiendommen
Se komplett salgsoppgaveNærområdet
EIE eiendomsmegling Sandefjord
Annonseinformasjon
| FINN-kode | 400117572 |
|---|---|
| Sist endret | 03. des. 2025 09:08 |
| Referanse | 87240208 |
Annonsene kan være mangelfulle i forhold til lovpålagt opplysningsplikt. Før bindende avtale inngås oppfordres interessenter til å innhente komplett informasjon fra meglerforetaket, selger eller utleier.































































