Bildegalleri

EIE eiendomsmegling v/Daniel Lanto har gleden av å presentere Riddervolds Gate 29!
Unik halvpart av vertikaldelt tomannsbolig | God planløsning | Skjermet hage | Ettertraktet område med nærhet til alt!
Nøkkelinfo
- Boligtype
- Tomannsbolig
- Eieform
- Eier (Selveier)
- Soverom
- 3
- Internt bruksareal
- 195 m² (BRA-i)
- Bruksareal
- 203 m²
- Eksternt bruksareal
- 8 m² (BRA-e)
- Balkong/Terrasse
- 30 m² (TBA)
- Byggeår
- 1919
- Energimerking
- G - Oransje
- Rom
- 4
- Tomteareal
- 362 m² (eiet)
Fasiliteter
Om boligen
EIE eiendomsmegling v/Daniel Lanto har gleden av å presentere Riddervolds Gate 29 - En sjarmerende halvpart av en vertikaldelt tomannsbolig med en svært ettertraktet beliggenhet.
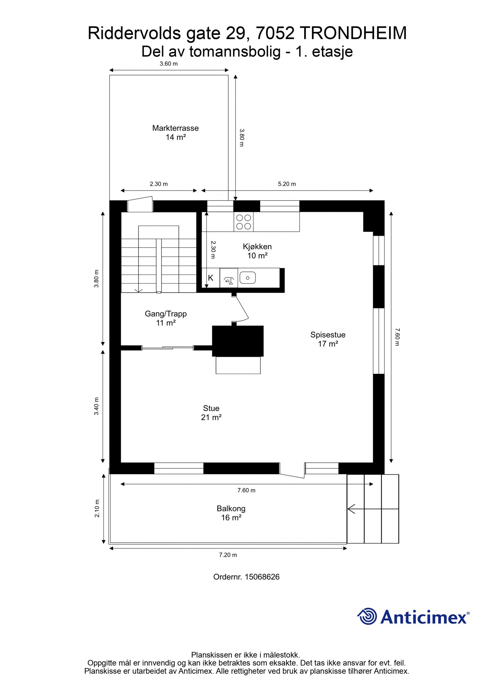
Boligen strekker seg over to etasjer, i tillegg til loft og underetasje, og har en gjennomtenkt planløsning. Klassisk sjarm møter moderne funksjonalitet i lyse og luftige rom.
I første etasje finner du et sosialt oppholdsrom med stue, kjøkken og spisestue i åpen løsning. Soverommene er smart plassert i andre etasje. Utendørs venter en skjermet hage som gjør sommerdagene ekstra spesielle. Boligen byr også på bad, vaskerom og god lagringsplass m.m. for en praktisk hverdag.
Høydepunkter:
- Gjennomgående god planløsning
- Parkeringsplass
- Balkong & terrasse
- Nærhet til barnehager, skoler & fritidstilbud
Velkommen!
Salgsoppgaven beskriver vesentlig og lovpålagt informasjon om eiendommen
Se komplett salgsoppgaveNærområdet
EIE eiendomsmegling Trondheim sentrum
Annonseinformasjon
| FINN-kode | 400109395 |
|---|---|
| Sist endret | 07. sep. 2025 12:39 |
| Referanse | 133250084 |
Annonsene kan være mangelfulle i forhold til lovpålagt opplysningsplikt. Før bindende avtale inngås oppfordres interessenter til å innhente komplett informasjon fra meglerforetaket, selger eller utleier.












































