Bildegalleri

EIE eiendomsmegling ved Daniel Lanto har gleden av å presentere Kongens gate 51D!
Lys og luftig 2-roms med sentral beliggenhet | Oppgradert kjøkken | Lave felleskostnader | Nærhet til studiesteder!
Nøkkelinfo
- Boligtype
- Leilighet
- Eieform
- Andel
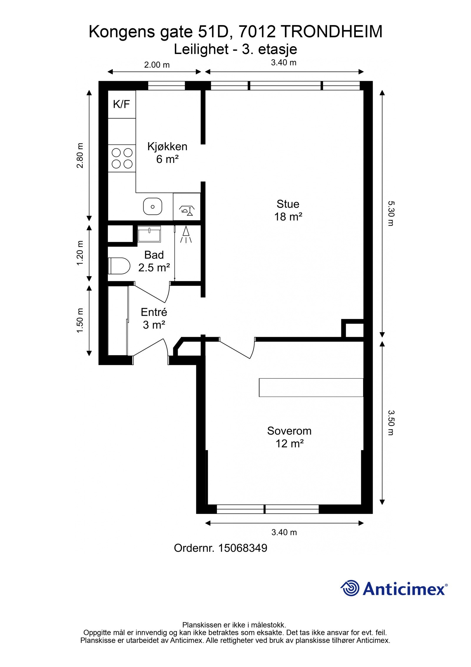
- Soverom
- 1
- Internt bruksareal
- 43 m² (BRA-i)
- Bruksareal
- 51 m²
- Eksternt bruksareal
- 8 m² (BRA-e)
- Etasje
- 3
- Byggeår
- 1963
- Energimerking
- E - Rød
- Rom
- 2
- Tomt
- Eiet
Fasiliteter
Om boligen
EIE Eiendomsmegling ved Daniel Lanto har gleden av å presentere Kongens Gate 51D - En lys og moderne 2-roms leilighet, med stilfulle oppgraderinger og en fantastisk sentral beliggenhet.
Leiligheten har en smart og gjennomtenkt planløsning som gjør den svært romslig og funksjonell. Store vindusflater gir mye naturlig lys og skaper en luftig atmosfære. Med en beliggenhet midt i byen har du umiddelbar tilgang til butikker, restauranter, kulturtilbud og rekreasjonsområder, alt rett utenfor dørstokken.
Høydepunkter:
- IKEA-kjøkken fra 2021 med integrerte hvitevarer
- Delvis oppgradert bad (2005)
- God takhøyde
- Svært sentral beliggenhet i Trondheim sentrum
- Nær rekreasjonsområder, butikker og kollektivtransport
- Lave felleskostnader
Velkommen til visning!
Salgsoppgaven beskriver vesentlig og lovpålagt informasjon om eiendommen
Se komplett salgsoppgaveNærområdet
EIE eiendomsmegling Trondheim sentrum
Annonseinformasjon
| FINN-kode | 399949559 |
|---|---|
| Sist endret | 13. mai 2025 00:16 |
| Referanse | 133250074 |
Annonsene kan være mangelfulle i forhold til lovpålagt opplysningsplikt. Før bindende avtale inngås oppfordres interessenter til å innhente komplett informasjon fra meglerforetaket, selger eller utleier.





















