Bildegalleri

Nordvik v/Christoffer Kvalshaugen har gleden av å ønske velkommen til Hårkollveien 49A!
Solgt
NYHET!
Lekkert enderekkehus med garasje, elbillader og stor, solrik terrasse. Nye overflater og bad fra 2024. Stille og rolig!
Prisantydning3 450 000 kr
Nøkkelinfo
- Boligtype
- Tomannsbolig
- Eieform
- Andel
- Soverom
- 3
- Internt bruksareal
- 107 m² (BRA-i)
- Bruksareal
- 129 m²
- Eksternt bruksareal
- 22 m² (BRA-e)
- Balkong/Terrasse
- 66 m² (TBA)
- Etasje
- 2
- Byggeår
- 1976
- Energimerking
- D - Gul
- Rom
- 4
- Tomteareal
- 11 104 m² (eiet)
Fasiliteter
Balkong/Terrasse
Barnevennlig
Bredbåndstilknytning
Garasje/P-plass
Hage
Kabel-TV
Offentlig vann/kloakk
Parkett
Peis/Ildsted
Rolig
Turterreng
Lademulighet
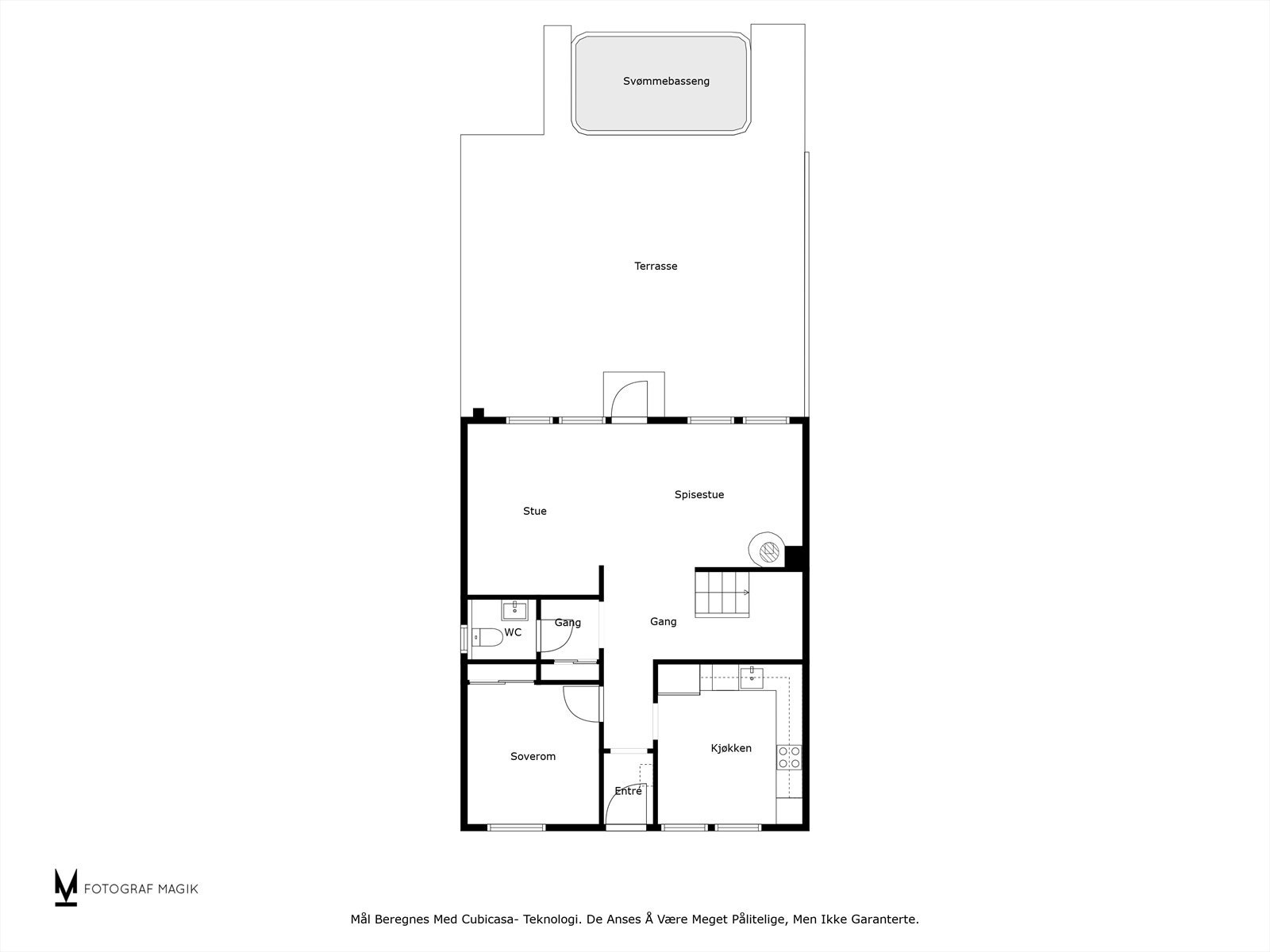
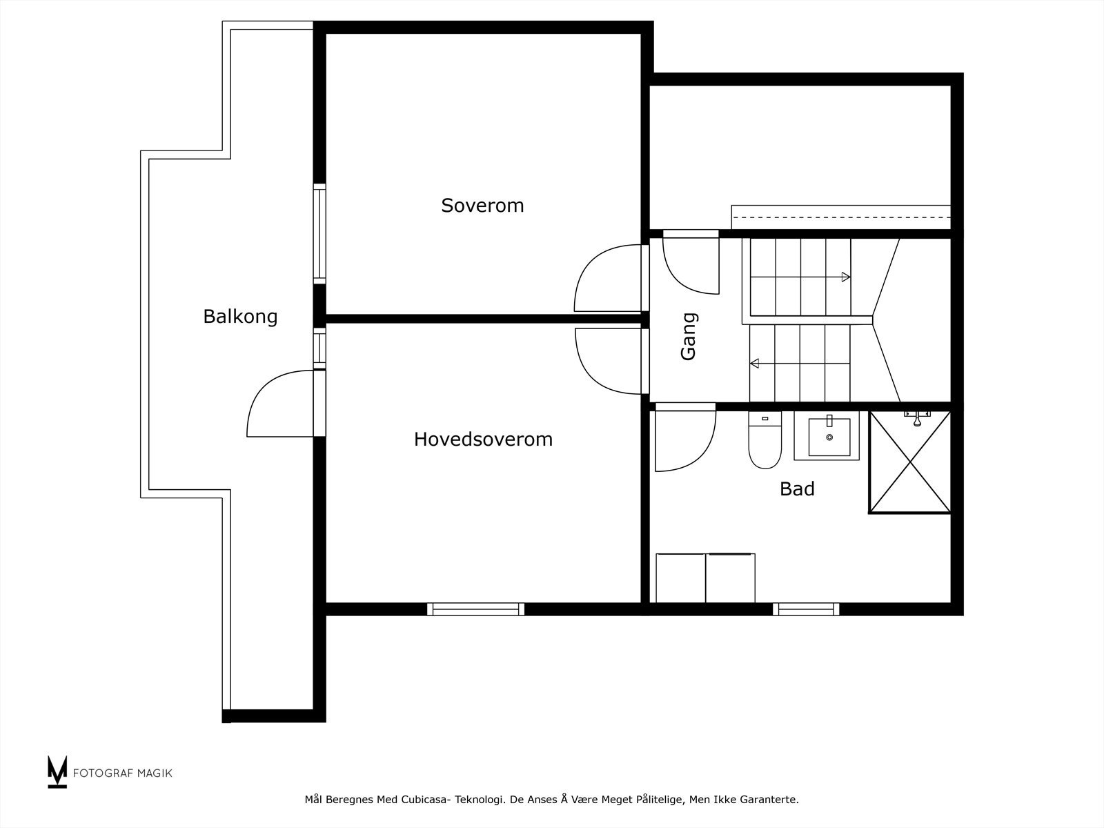
Om boligen
Hårkollveien 49 A er et stilrent andelsrekkehus over to etasjer, betydelig pusset opp i perioden 2019 - 2024. Her bor man i et stille og rolig område, med kort vei til dagligvare, barnehager, Oserød skole og flotte turmuligheter. Boligen er plassert på enden av rekken, noe som gir et ekstra stort uteareal med hage og solrik terrasse på ca. 57 kvm. Alt er tilrettelagt for enkle hverdager, og boligen disponerer en rekkegarasje med elbillader fra 2024.
Stuen er lys og innbydende med både peisovn og varmepumpe, mens et tidløst kjøkken har egen spiseplass, mye oppbevaring og de fleste hvitevarer integrert. Dagene får en god start på et helfliset bad fra 2024, med gulvvarme og regnfallsdusj. Det er gjestetoalett og tre delikate soverom, hvor to er innredet med skyvedørsgarderobe. Velkommen!
Stuen er lys og innbydende med både peisovn og varmepumpe, mens et tidløst kjøkken har egen spiseplass, mye oppbevaring og de fleste hvitevarer integrert. Dagene får en god start på et helfliset bad fra 2024, med gulvvarme og regnfallsdusj. Det er gjestetoalett og tre delikate soverom, hvor to er innredet med skyvedørsgarderobe. Velkommen!
NB: Knappen for å vise hele beskrivelsen har kun en visuell effekt.
NB: Knappen for å vise hele beskrivelsen har kun en visuell effekt.
Salgsoppgaven beskriver vesentlig og lovpålagt informasjon om eiendommen
Se komplett salgsoppgaveNyttige lenker
Nærområdet
Nordvik Tønsberg
Annonseinformasjon
| FINN-kode | 399938425 |
|---|---|
| Sist endret | 01. sep. 2025 11:16 |
| Referanse | 25-0032/25 |
Annonsene kan være mangelfulle i forhold til lovpålagt opplysningsplikt. Før bindende avtale inngås oppfordres interessenter til å innhente komplett informasjon fra meglerforetaket, selger eller utleier.
























































