Bildegalleri

Lys og solrikt
Jeløya/halvpart av vertikaldelt tomannsbolig/3soverom/lys & solrikt/3parkeringsplasser/ sentralt/badstue/skjermet hage!
Nøkkelinfo
- Boligtype
- Tomannsbolig
- Eieform
- Eier (Selveier)
- Soverom
- 3
- Internt bruksareal
- 152 m² (BRA-i)
- Bruksareal
- 318 m²
- Eksternt bruksareal
- 166 m² (BRA-e)
- Byggeår
- 1971
- Tomteareal
- 287 m² (eiet)
Fasiliteter
Om boligen
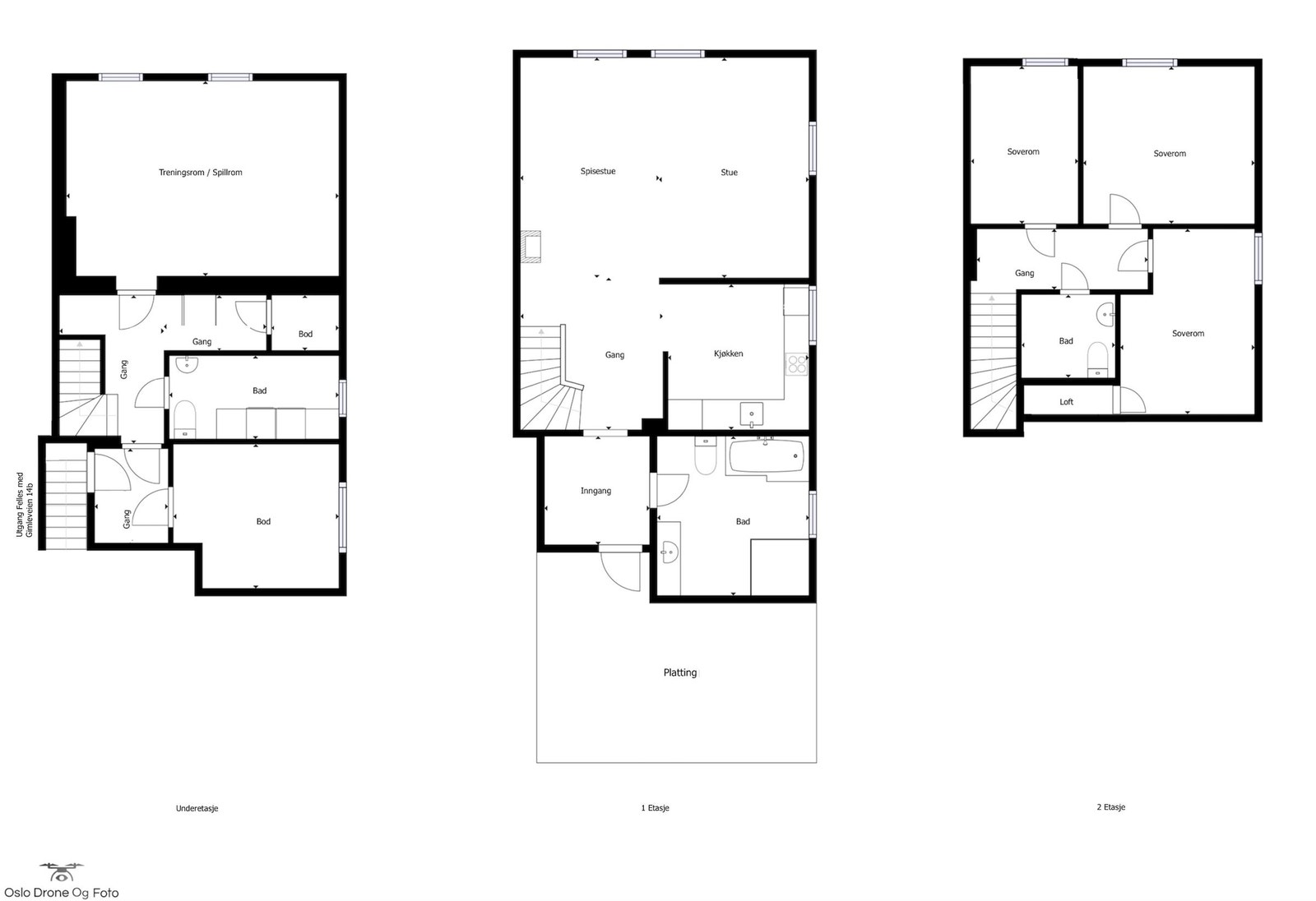
Bygningen ble oppført i 1971 og har blitt grundig oppgradert de siste årene. Med tre etasjer gir eiendommen et glimt av sjø fra vinduene i andre etasje som vender mot veien.
1. etasje: Romslig entre, baderom(infrarød badstue, badekar, varmekabler), kjøkken fra 2017 og hyggelig stue med peis. God plass til både en sofagruppe & et spisebord.
2. etasje: 3 soverom som er innredet med løse skap, et toalett med servant og et loft med god lagringsplass.
Underetasje: treningsrom /hobbyrom, vaskerom og toalett med servant, 2 bod.
Uteområde:
Den koselige hagen, med en gressplen og en rekke frukttrær inkludert 3 epletrær,
et kirsebærtre og et plommetre, tilfører en ekstra sjarm til eiendommen. Steinleggingen rundt terrassen og innkjørselen gir et stilig og velholdt utseende samtidig som det er praktisk og enkelt å vedlikeholde. Den solfylte terrassen på 22 m2 inviterer til lange, avslappende dager utendørs. Den inngjerdede hagen er ideell for familier med barn og eller hunder, da den gir en trygg og sikker utendørs lekeplass. Dette bidrar til en avslappet atmosfære og gir eierne muligheten til å nyte hagen uten bekymringer.
Parkeringsplass:
Plass til 3 biler ved innkjørselen, med en ladestasjon for elbiler, montert i veggen.
Tilstandsrapport:
Rapporten viser en normal og funksjonell standard, med tilstandsgrader 1, 2 og 3 som indikeres.
Det må påregnes oppgradering & moderniseringstiltak for å opprettholde dagens krav og standarder.
Noen av de nyere oppgraderingene inkluderer:
- Ny kledning og vinduer mot veien i 2015
- Byttet tak i 2016
- Et nytt kjøkken fra 2017
- Drenering og isolering av murvegg i 2019
samt en ny terrasse på 22 m2 samme år
- Steinlegging ble gjennomført i 2020 og en
elbillader ble montert i 2022.
Se vedlagte dokumenter for mer informasjon om vedlikehold og oppgraderinger fra perioden 2012-2024, tidligere salgsoppgaven og tilstandsrapporten.
Beliggenhet
Drømmer du om å bo i et sentralt, attraktivt og barnevennlig område? Da er denne boligen midt i blinken for deg! Her har du gangavstand til alt du trenger i hverdagen, inkludert butikker, skoler og offentlig transport.
I tillegg til det praktiske tilbudet i nærområdet, finner du også en rekke badeplasser, strender, nydelige turområder, kulturlandskap og muligheter for båtliv rett i nærheten.
Den ideelle beliggenheten gjør det enkelt å pendle til Oslo, med bare 1.1 km til Moss togstasjon(ca.12 minutter gange). Det tar kun 32 minutter med tog, noe som gjør det til et perfekt sted for pendlere.
Om du liker å tilbringe tid ved sjøen, kan du ta en kort spasertur på ca. 600 meter til Fiske og Sjøbadet, en herlig badeplass med en barnevennlig sandstrand. Og når du trenger litt shopping, ligger Amfi Moss kjøpesenter bare 1.4 km unna.
Familier med barn og ungdommer vil sette pris på de flere utvalgte kommunale og private barnehagene, skolene og videregående skolene som ligger innen 250 meter til 1.4 km avstand.
Og for de som ønsker litt ekstra spenning, er det bare en 53 minutters kjøretur til Nordby kjøpesenter i Sverige.
Denne boligen har virkelig alt man kan ønske seg for en praktisk og aktiv livsstil!
Annet
Det er ingen forkjøpsrett på boligen.
Jeg har tegnet boligselgerforsikring.
Boligen selges gjennom propr eiendom AS( en trygg, profesjonell og ryddig prosess). Les mer om propr her: https://propr.no/l/slik-er-det-a-kjope-bolig-gjennom-propr
Visning
Digital visning : Klikk på lenken under
https://my.matterport.com/show/?m=Mhgi87wvny6
Om du ikke har mulighet til å komme på visning, holder jeg gjerne privat visning. Ta kontakt, så finner vi en tid.
Budvarsel
Hvis du ønsker å motta budvarsel, kan du trykke på "Meld interesse". Du vil deretter få oppdateringer når det kommer inn nye bud pr. SMS.
Omkostninger
14 700 kr (HELP boligkjøperforsikring (valgfritt))
105 500 kr (Dokumentavgift)
545 kr (Tinglysing av pantedokument)
545 kr (Tinglysing av skjøte)
---
121 290 kr (Omkostninger totalt)
---
4 341 290 kr (Totalpris inkl. omkostninger)
NB: Regnestykket forutsetter at det kun tinglyses én låneobligasjon og at eiendommen selges til prisantydning.
Det tas forbehold om endringer i offentlige og private gebyrer.
Selger er selv ansvarlig for følgende gebyr:
545 kr (Panterett med urådighet)
Salgsoppgaven beskriver vesentlig og lovpålagt informasjon om eiendommen
Se komplett salgsoppgaveNyttige lenker
Nærområdet
Annonsene kan være mangelfulle i forhold til lovpålagt opplysningsplikt. Før bindende avtale inngås oppfordres interessenter til å innhente komplett informasjon fra meglerforetaket, selger eller utleier.





































