Bildegalleri

Trosterudveien 12B presenteres av Sanna Damhaug og Odd Kalsnes
Inaktiv
RIS
Praktfull patrisiervilla m/ storslagen utsikt - Garasje til 6 biler - Basseng - Stor tomt - Sjelden anledning!
Prisantydning70 000 000 kr
Nøkkelinfo
- Boligtype
- Enebolig
- Eieform
- Selveier
- Soverom
- 13
- Internt bruksareal
- 989 m² (BRA-i)
- Bruksareal
- 1 002 m²
- Eksternt bruksareal
- 13 m² (BRA-e)
- Balkong/Terrasse
- 349 m² (TBA)
- Byggeår
- 1913
- Energimerking
- G - Mørkegrønn
- Rom
- 21
- Tomteareal
- 1 832 m² (eiet)
Fasiliteter
Barnevennlig
Balkong/Terrasse
Garasje/P-plass
Kabel-TV
Alarm
Offentlig vann/kloakk
Ingen gjenboere
Parkett
Peis/Ildsted
Turterreng
Utsikt
Aircondition
Sentralt
Bredbåndstilknytning
Moderne
Rolig
Lademulighet
Balansert ventilasjon
Om boligen
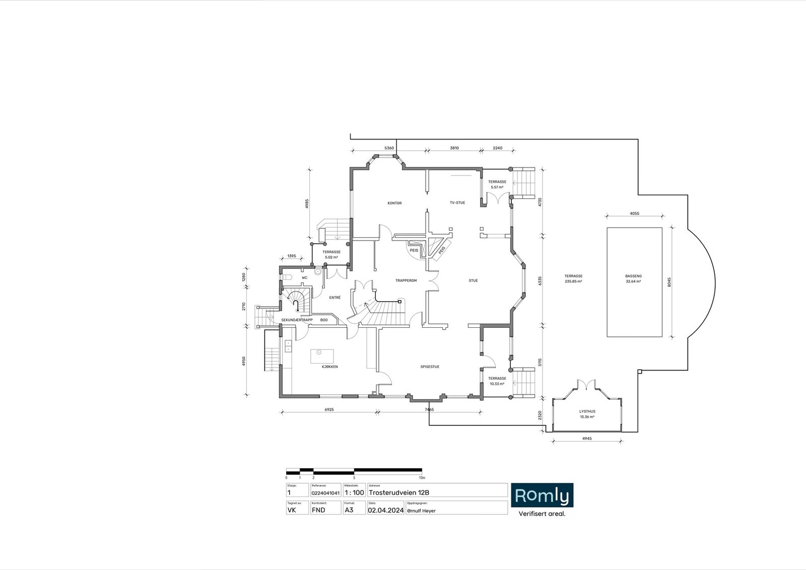
Praktfull patrisiervilla med storslagen utsikt beliggende i et av Oslos aller mest ettertraktede villaområder på Ris. Stor, flat opparbeidet tomt, helt usjenert, med bla. stort terrasseområde, basseng og lysthus, samt meget gode solforhold.
Villaen har storslåtte oppholdsrom med praktfulle detaljer, meget gode lysforhold, og imponerende utsikt. Eiendommen er betydelig oppgradert av nåværende eier og fremstår som godt vedlikeholdt.
Boligen ble opprinnelig oppført i 1913, men har gjennomgått betydelige oppgraderinger og utvidelser over tid, blant annet i 1997, 1998, 2000, 2001, 2016 og 2018.
Hoveddelen er romslig med store, luftige oppholdsrom, store vindusflater og en planløsning som skaper en harmonisk flyt mellom de ulike etasjene. Eiendommen har også flere utleiedeler, noe som gir en unik mulighet for utleieinntekter eller annet bruk.
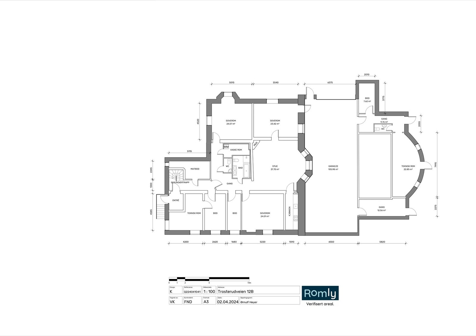
Kjeller inneholder 3 separate hybler med felles stue, kjøkken og 2 bad, mens loftet har to leiligheter, hvorav én med hele fire soverom.
Villaen har storslåtte oppholdsrom med praktfulle detaljer, meget gode lysforhold, og imponerende utsikt. Eiendommen er betydelig oppgradert av nåværende eier og fremstår som godt vedlikeholdt.
Boligen ble opprinnelig oppført i 1913, men har gjennomgått betydelige oppgraderinger og utvidelser over tid, blant annet i 1997, 1998, 2000, 2001, 2016 og 2018.
Hoveddelen er romslig med store, luftige oppholdsrom, store vindusflater og en planløsning som skaper en harmonisk flyt mellom de ulike etasjene. Eiendommen har også flere utleiedeler, noe som gir en unik mulighet for utleieinntekter eller annet bruk.
Kjeller inneholder 3 separate hybler med felles stue, kjøkken og 2 bad, mens loftet har to leiligheter, hvorav én med hele fire soverom.
NB: Knappen for å vise hele beskrivelsen har kun en visuell effekt.
NB: Knappen for å vise hele beskrivelsen har kun en visuell effekt.
Salgsoppgaven beskriver vesentlig og lovpålagt informasjon om eiendommen
Se komplett salgsoppgaveNyttige lenker
Nærområdet

Houeland &Partners
Verdien av lokalkunnskap
Annonseinformasjon
| FINN-kode | 399776391 |
|---|---|
| Sist endret | 21. mai 2025 06:45 |
| Referanse | 199250017 |
Annonsene kan være mangelfulle i forhold til lovpålagt opplysningsplikt. Før bindende avtale inngås oppfordres interessenter til å innhente komplett informasjon fra meglerforetaket, selger eller utleier.




























































