Bildegalleri

EiendomsMegler1 v/Christer Aabø har gleden av å presentere denne flotte leiligheten i Magnus gate 2 B!
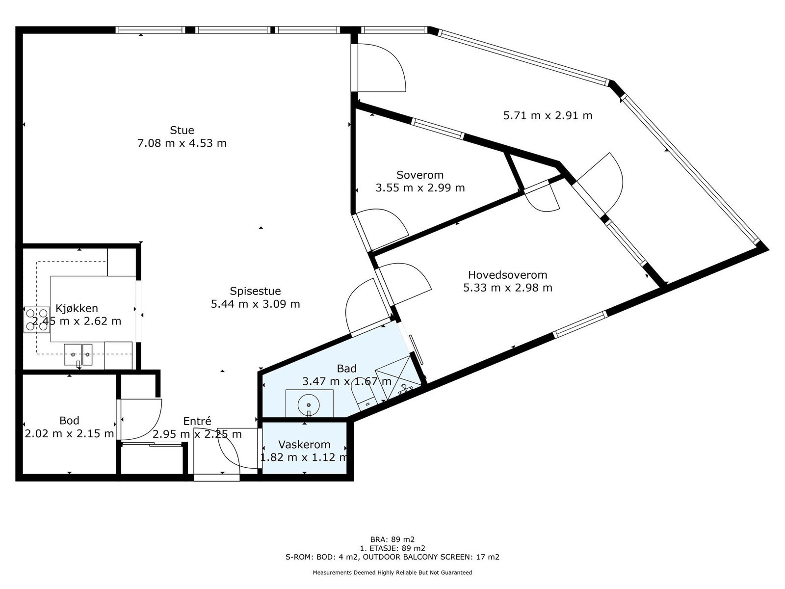
Romslig 3-roms selveierleilighet| Innglasset balkong og felles takterrasse| Heis| Fast parkeringsplass i p-kjeller
Nøkkelinfo
- Boligtype
- Leilighet
- Eieform
- Eier (Selveier)
- Soverom
- 2
- Internt bruksareal
- 89 m² (BRA-i)
- Bruksareal
- 104 m²
- Eksternt bruksareal
- 6 m² (BRA-e)
- Innglasset balkong
- 15 m² (BRA-b)
- Balkong/Terrasse
- 15 m² (TBA)
- Etasje
- 2
- Byggeår
- 2006
- Energimerking
- D - Rød
- Rom
- 3
- Tomteareal
- 537 m² (eiet)
Fasiliteter
Om boligen
Her kan du nyte godt av en svært sentral beliggenhet med god standard fra 2006, 2 romslige soverom, innglasset privat balkong med gjennomgang fra stue- til soverom, parkering i felles parkeringskjeller og felles takterrasse for beboerne i sameiet!
Kvaliteter verdt å merke seg:
- Heis i bygget.
- Fast garasjeplass medfølger leiligheten.
- Innglasset balkong med adkomst fra både stue og hovedsoverom.
- Felles takterrasse for beboerne i sameiet.
- Kvaltitetskjøkken fra Sigdal med tilstandsgrad 1.
- Egen sportsbod i leilighet og bod i fellesareal.
- 2 romslige soverom. (ca. 10.kvm og 15 kvm)
- Flotte turmuligheter i umiddelbar nærhet.
- Gangavstand til dagligvarehandel og Harstad sentrum.
Velkommen til en hyggelig visning!
Salgsoppgaven beskriver vesentlig og lovpålagt informasjon om eiendommen
Se komplett salgsoppgaveNyttige lenker
Nærområdet
EiendomsMegler 1 Harstad
Prisstatistikk
Magnus gate 2 B
på annonsen
prisantydning per kvadratmeter
Prisfordeling
Pris per m² ligger 269 kr over snittet for leiligheter i Harstad.
Grafen viser antall leiligheter solgt i Harstad siste året fordelt på pris per m² - totalt 204 leiligheter
Antall boliger
Kvadratmeterpris tilsvarer prisantydning pluss fellesgjeld per kvadratmeter (p-rom eller BRA-i). Prisene i grafen er avrundet til nærmeste 1000 kr.
Annonsene kan være mangelfulle i forhold til lovpålagt opplysningsplikt. Før bindende avtale inngås oppfordres interessenter til å innhente komplett informasjon fra meglerforetaket, selger eller utleier.

























