Bildegalleri

Velkommen til populære Askerjordet
Solgt
Asker Sentrum
Stort påbygget enderekkehus | Idyllisk terrasse med sen kveldssol og utsyn | Jansløkka | 3 min til Asker sentrum
Prisantydning7 950 000 kr
Nøkkelinfo
- Boligtype
- Rekkehus
- Eieform
- Eier (Selveier)
- Soverom
- 3
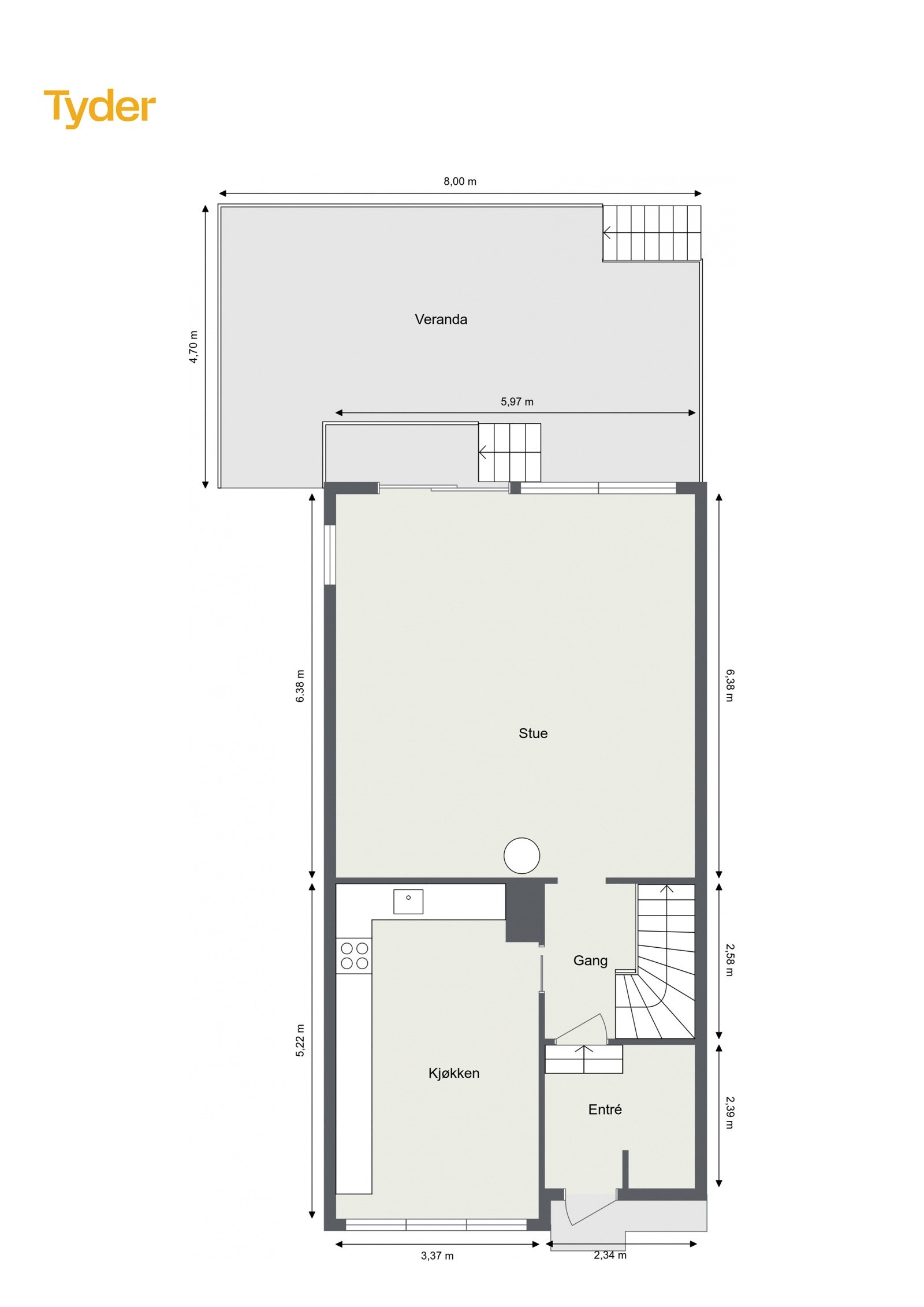
- Internt bruksareal
- 155 m² (BRA-i)
- Bruksareal
- 164 m²
- Eksternt bruksareal
- 9 m² (BRA-e)
- Balkong/Terrasse
- 39 m² (TBA)
- Byggeår
- 1959
- Energimerking
- E - Gul
- Tomteareal
- 25 451 m² (eiet)
- Boligselgerforsikring
- Ja
Fasiliteter
Balkong/Terrasse
Peis/Ildsted
Parkett
Barnevennlig
Rolig
Kabel-TV
Moderne
Sentralt
Garasje/P-plass
Bademulighet
Turterreng
Offentlig vann/kloakk
Utsikt
Bredbåndstilknytning
Om boligen
Attraktivt beliggende enderekkehus med suveren beliggenhet rett ved Asker sentrum. Meget gode solforhold med flott ettermiddags- og sen kveldssol på vestvendt terrasse og hage. Asker Hageby er svært populært og har stor felles hage med lekeplass som går gjennom hele hagebyen.
- Oppusset og godt vedlikeholdt bolig
- Parkering rett ved boligen
- Mulighet for garasjeleie etter venteliste
- Påbygd på begge sider
- Stor usjenert terrasse
- Masse lagringsplass ute og inne
- Kort vei til skoler og barnehager.
- Kort gange til Asker togstasjon
- Familievennlig planløsning med 2 tilbygg
- 3 gode soverom
- Kjellerstue og 2 bad
- Varmepumpe fra 2021 og vedfyrt peisovn
- Lekeplass i umiddelbar nærhet
- Frodig hage med prydbusker som klatrehortensia og syriner
- Svært trafikkstille
Bo usjenert og tilbaketrukket 3 minutter fra Asker sentrum!
NB: Knappen for å vise hele beskrivelsen har kun en visuell effekt.
NB: Knappen for å vise hele beskrivelsen har kun en visuell effekt.
Salgsoppgaven beskriver vesentlig og lovpålagt informasjon om eiendommen
Se komplett salgsoppgaveNyttige lenker
Nærområdet
Privatmegleren Premium
Kun det beste på dine vegne
Annonseinformasjon
| FINN-kode | 399166266 |
|---|---|
| Sist endret | 03. apr. 2025 11:04 |
| Referanse | 321250064 |
Annonsene kan være mangelfulle i forhold til lovpålagt opplysningsplikt. Før bindende avtale inngås oppfordres interessenter til å innhente komplett informasjon fra meglerforetaket, selger eller utleier.









































