Bildegalleri

Ingunn Anna Gudjonsdottir v/ DNB Eiendom har gleden av å presentere Mekanikerveien 12!
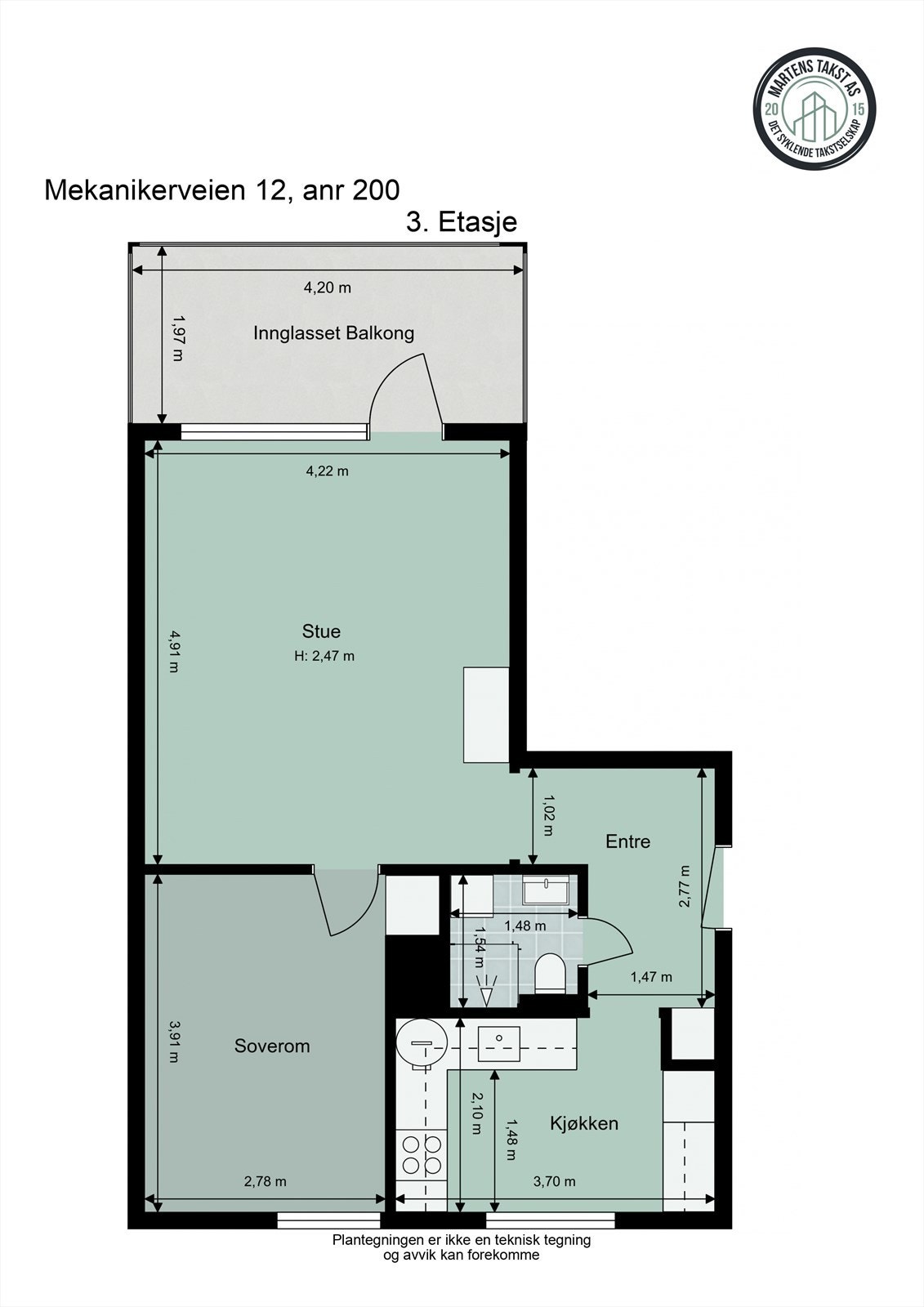
Stor og lys 2-roms med flott utsikt. Flater og kjøkken pusset opp i 2021. Innglasset, vestvendt balkong på 8 kvm.
Nøkkelinfo
- Boligtype
- Leilighet
- Eieform
- Andel
- Soverom
- 1
- Internt bruksareal
- 50 m² (BRA-i)
- Bruksareal
- 67 m²
- Eksternt bruksareal
- 9 m² (BRA-e)
- Innglasset balkong
- 8 m² (BRA-b)
- Etasje
- 3
- Byggeår
- 1960
- Energimerking
- G - Oransje
- Rom
- 2
- Tomteareal
- 25 500 m² (eiet)
Fasiliteter
Om boligen
Noe av det man kan vente seg her er nydelig utsikt mot Oslo by, moderne fargevalg og en praktisk planløsning. Leiligheten har et adskilt kjøkken fra 2021, baderom, et romslig og usjenerte soverom samt en innbydende stue med peisovn. Fra stuen er det utgang til en vestvendt og innglasset balkong på 8 kvm, med ettermiddags- og kveldssol. I tillegg er det gode lagringsmuligheter i tre boder.
Velkommen til hyggelig visning!
Salgsoppgaven beskriver vesentlig og lovpålagt informasjon om eiendommen
Se komplett salgsoppgaveNyttige lenker
Nærområdet
DNB Eiendom AS
Prisstatistikk
Mekanikerveien 12
på annonsen
prisantydning per kvadratmeter
Prisfordeling
Pris per m² ligger 40 kr under snittet for leiligheter i Østensjø.
Grafen viser antall leiligheter solgt i Østensjø siste året fordelt på pris per m² - totalt 467 leiligheter
Antall boliger
Kvadratmeterpris tilsvarer prisantydning pluss fellesgjeld per kvadratmeter (p-rom eller BRA-i). Prisene i grafen er avrundet til nærmeste 1000 kr.
Annonseinformasjon
| FINN-kode | 398984852 |
|---|---|
| Sist endret | 19. juni 2025 06:01 |
| Referanse | 310250062 |
Annonsene kan være mangelfulle i forhold til lovpålagt opplysningsplikt. Før bindende avtale inngås oppfordres interessenter til å innhente komplett informasjon fra meglerforetaket, selger eller utleier.








































