Bildegalleri

Velkommen til Valhallveien 11B, presentert av Tinholt Eiendomsmegling.
Solgt
EKEBERGSKRENTEN
Ettertraktet 4-roms o/2 plan | Solrike uteplasser m/fantastisk utsikt | To bad, 2021 | Noe modernisering | Garasjeleie
Prisantydning7 900 000 kr
Nøkkelinfo
- Boligtype
- Leilighet
- Eieform
- Andel
- Soverom
- 3
- Internt bruksareal
- 122 m² (BRA-i)
- Bruksareal
- 126 m²
- Eksternt bruksareal
- 4 m² (BRA-e)
- Balkong/Terrasse
- 21 m² (TBA)
- Byggeår
- 1979
- Energimerking
- E - Rød
- Tomteareal
- 15 193 m² (eiet)
Fasiliteter
Balkong/Terrasse
Garasje/P-plass
Offentlig vann/kloakk
Turterreng
Utsikt
Vaktmester-/vektertjeneste
Sentralt
Bredbåndstilknytning
Rolig
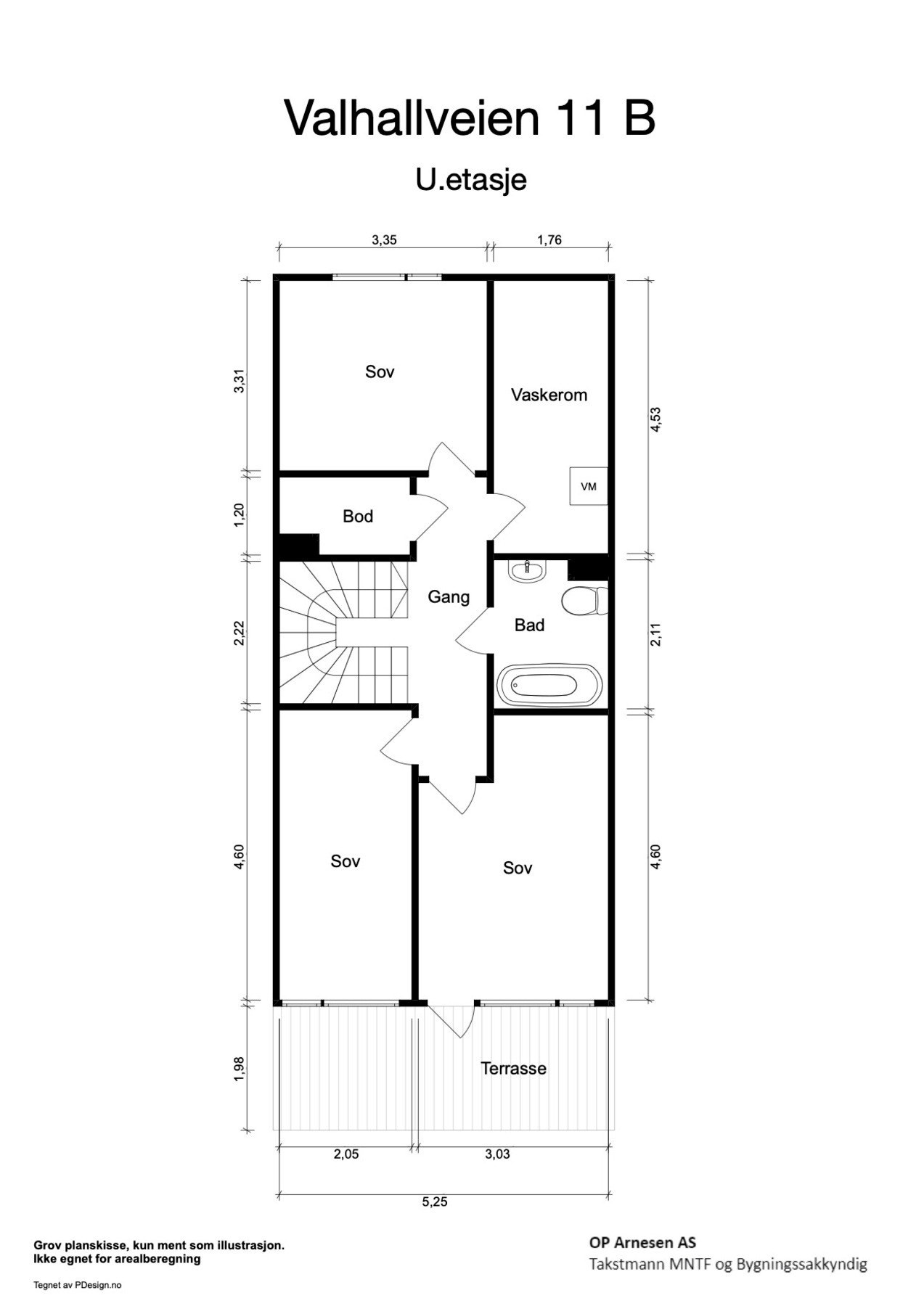
Om boligen
Velkommen til et ettertraktet 4-roms rekkehusleilighet over to plan, perfekt beliggende tilbaketrukket fra bykjernen. Denne flotte boligen byr på en solrik balkong, markterrasse og hage, og gir deg både privatliv og en spektakulær utsikt over Oslo by. Boligen er innholdsrik med store gode rom og vindusflater som gir godt med naturlig lysinnslipp. Boligen har behov for noe modernisering og kan med enkle grep optimaliseres da planløsningen har et godt utgangspunkt. De to nyoppussede baderommene fra 2021 gjør overflateoppussing enklere.
Et flott sted å bo for deg som ønsker en rolig tilværelse i nærheten av grønne friarealer, men samtidig kort vei til Oslo sentrum.
K V A L I T E T E R:
- Idyllisk balkong med fantastisk utsikt!
- Herlig markterrasse med hagedel
- To bad & ett vaskerom, renovert i 2021
- Tre soverom med gode garderobemuligheter
- Rett til leie av parkeringsplass
- Nye vinduer og ytterdører i 2012
- V.vann og bredbånd inkl
- IN: Reduser felleskostnadene til 4484,-
Et flott sted å bo for deg som ønsker en rolig tilværelse i nærheten av grønne friarealer, men samtidig kort vei til Oslo sentrum.
K V A L I T E T E R:
- Idyllisk balkong med fantastisk utsikt!
- Herlig markterrasse med hagedel
- To bad & ett vaskerom, renovert i 2021
- Tre soverom med gode garderobemuligheter
- Rett til leie av parkeringsplass
- Nye vinduer og ytterdører i 2012
- V.vann og bredbånd inkl
- IN: Reduser felleskostnadene til 4484,-
NB: Knappen for å vise hele beskrivelsen har kun en visuell effekt.
NB: Knappen for å vise hele beskrivelsen har kun en visuell effekt.
Salgsoppgaven beskriver vesentlig og lovpålagt informasjon om eiendommen
Se komplett salgsoppgaveNærområdet
TINHOLT Eiendomsmegling
Du vil kjenne forskjellen
Prisstatistikk
Valhallveien 11B
7 356 klikk
på annonsen
67 710 kr
prisantydning per kvadratmeter
Prisfordeling
Pris per m² ligger 35 290 kr under snittet for leiligheter i Gamle Oslo.
Grafen viser antall leiligheter solgt i Gamle Oslo siste året fordelt på pris per m² - totalt 2 068 leiligheter
Antall boliger
Kvadratmeterpris tilsvarer prisantydning pluss fellesgjeld per kvadratmeter (p-rom eller BRA-i). Prisene i grafen er avrundet til nærmeste 1000 kr.
Annonseinformasjon
| FINN-kode | 398905090 |
|---|---|
| Sist endret | 25. juni 2025 07:45 |
| Referanse | 201240162 |
Annonsene kan være mangelfulle i forhold til lovpålagt opplysningsplikt. Før bindende avtale inngås oppfordres interessenter til å innhente komplett informasjon fra meglerforetaket, selger eller utleier.





































