Bildegalleri

EIE eiendomsmegling ved Amrinder Singh har gleden av å presentere Botnhåggån 9.
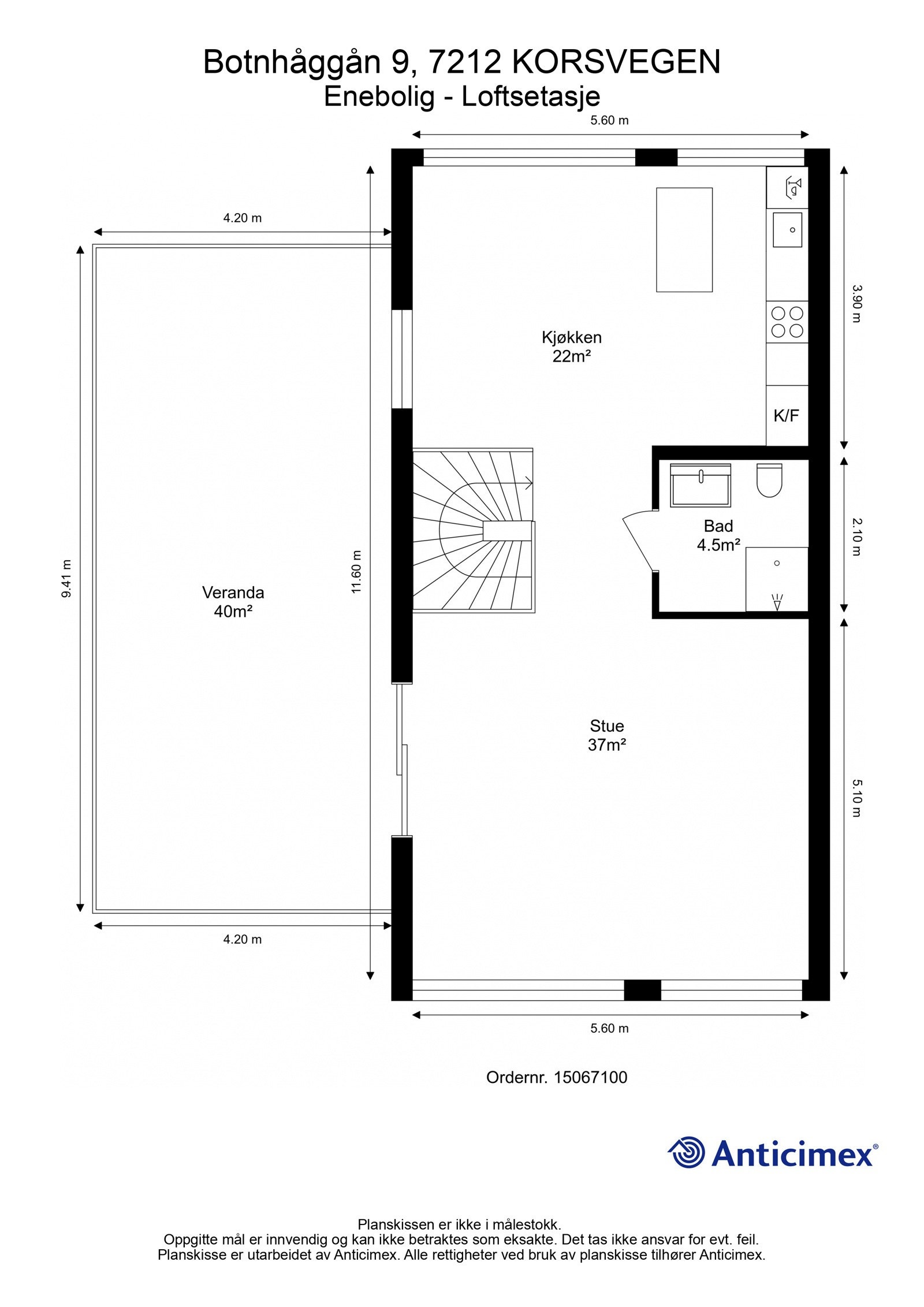
Innbydende, moderne enebolig med 3 soverom, 2 stuer og 2 bad. Carport. Veranda på 40 m². Kort vei til skole & barnehage.
Nøkkelinfo
- Boligtype
- Enebolig
- Eieform
- Eier (Selveier)
- Soverom
- 3
- Internt bruksareal
- 130 m² (BRA-i)
- Bruksareal
- 140 m²
- Eksternt bruksareal
- 10 m² (BRA-e)
- Balkong/Terrasse
- 40 m² (TBA)
- Byggeår
- 2020
- Energimerking
- B - Oransje
- Rom
- 5
- Tomteareal
- 547 m² (eiet)
Fasiliteter
Om boligen
EIE eiendomsmegling ved Amrinder Singh har gleden av å presentere Botnhåggån 9! Lekker og moderne enebolig fra 2020 beliggende i Korsvegen. Fra boligen er det kort avstand til skole, barnehager, dagligvarebutikker og andre fasiliteter.
Boligen går over 2 plan, og i 1.etg finner du 3 soverom, tv-stue, bad, entré og teknisk rom/vaskerom. Fra stua har du utgang til uteområdet.
Merk deg dette:
- Carport på hele 30 kvm
- Egen hage
- Fylt på singel rundt huset og gårdsplass i 2024
- Eiendommen har 3 soverom, 2 bad, 2 stuer og en herlig veranda
- Mulighet for ekstra soverom
- Varmepumpe og vedovn
- Rikelig med oppbevaringsplass
- Balansert ventilasjon
- Halvparten av sportsboden er isolert for ekstra komfort, etter selgers ønske
- Gode skimuligheter
- Ca. 25 minutters kjøretur fra Melhus sentrum
Velkommen til visning!
Salgsoppgaven beskriver vesentlig og lovpålagt informasjon om eiendommen
Se komplett salgsoppgaveNærområdet
EIE eiendomsmegling Heimdal
Annonseinformasjon
| FINN-kode | 398871168 |
|---|---|
| Sist endret | 12. apr. 2025 10:24 |
| Referanse | 97250038 |
Annonsene kan være mangelfulle i forhold til lovpålagt opplysningsplikt. Før bindende avtale inngås oppfordres interessenter til å innhente komplett informasjon fra meglerforetaket, selger eller utleier.








































