Bildegalleri

EIE eiendomsmegling ved Amrinder Singh har gleden av å presentere Gamle Leirvegen 103.
Solgt
Fossegrenda
Attraktiv og moderne 2-roms selveier fra 2013. Fast p-plass. Solrik terrasse på 14m². Fjernvarme. Lave bokostnader!
Prisantydning3 150 000 kr
Nøkkelinfo
- Boligtype
- Leilighet
- Eieform
- Eier (Selveier)
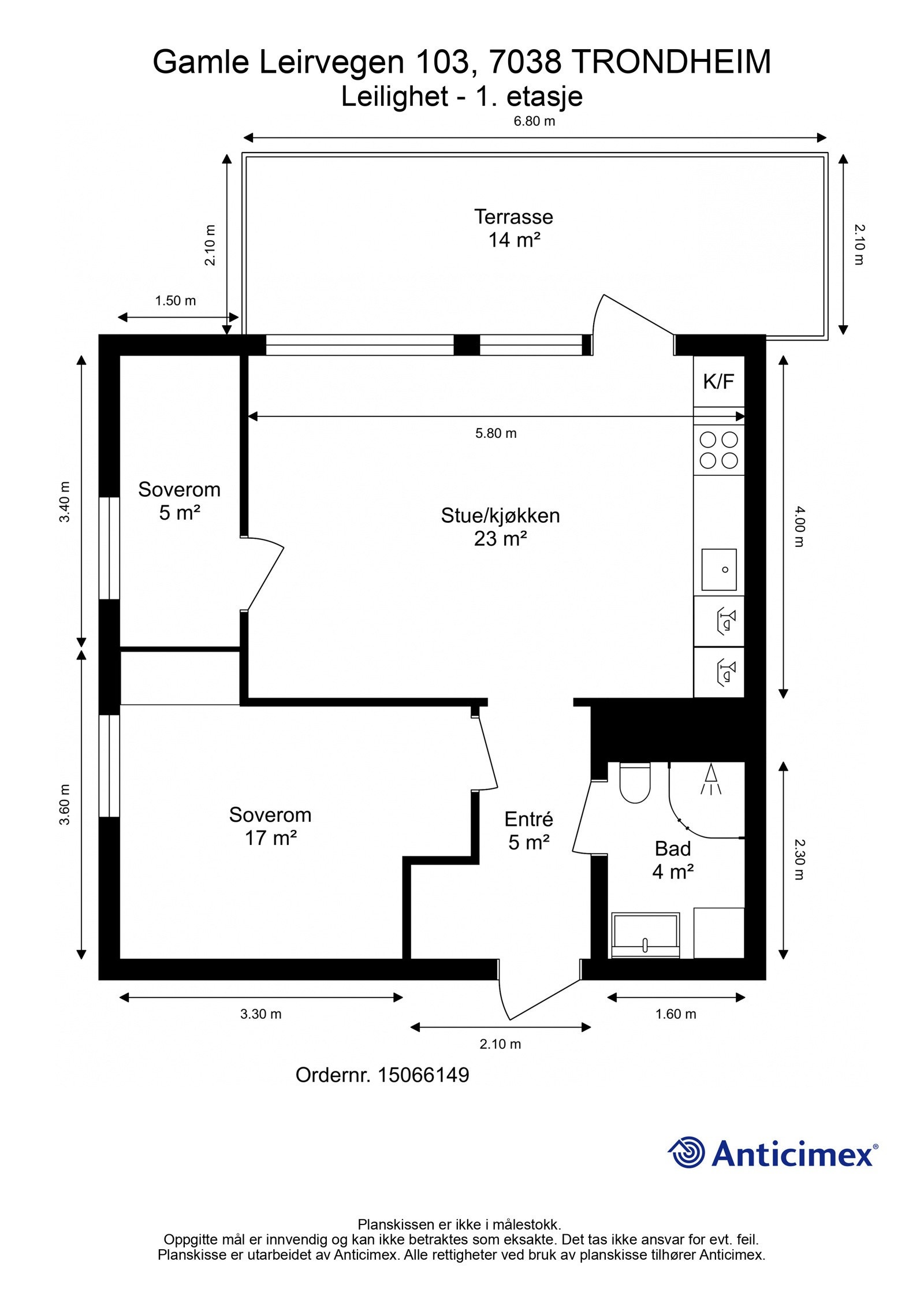
- Soverom
- 1
- Internt bruksareal
- 53 m² (BRA-i)
- Bruksareal
- 58 m²
- Eksternt bruksareal
- 5 m² (BRA-e)
- Balkong/Terrasse
- 14 m² (TBA)
- Etasje
- 1
- Byggeår
- 2013
- Energimerking
- C - Mørkegrønn
- Tomt
- Eiet
Fasiliteter
Balkong/Terrasse
Parkett
Heis
Barnevennlig
Rolig
Kabel-TV
Moderne
Sentralt
Garasje/P-plass
Turterreng
Offentlig vann/kloakk
Utsikt
Bredbåndstilknytning
Lademulighet
Om boligen
EIE eiendomsmegling ved Amrinder Singh har gleden av å presentere denne moderne 2(3)-roms leiligheten i Gamle Leirvegen 103.
Leiligheten er fra 2013 og har et stort soverom på 17 kvm, en åpen stue- og kjøkkenløsning, terrasse, bad og bodplass. Opprinnelig bod på 5 kvm er i dag innredet som et ekstra soverom, men kan lett tilpasses etter behov.
Merk deg dette:
- Sørvendt terrasse på 14 kvm
- Fjernvarme og balansert ventilasjon
- God lagringsplass, inkludert bod i kjelleren på 5 kvm
- Egen fast parkeringsplass med tilrettelegging for lading av elbil, samt gode muligheter for gjesteparkering
- Lave felleskostnader som inkluderer TV, internett og A-konto fjernvarme
- REMA 1000 Fossegrenda og bussholdeplass kun 3 minutters gange fra boligen
- Sykkelavstand til flere av Trondheims studiesteder
Velkommen til visning!
NB: Knappen for å vise hele beskrivelsen har kun en visuell effekt.
NB: Knappen for å vise hele beskrivelsen har kun en visuell effekt.
Salgsoppgaven beskriver vesentlig og lovpålagt informasjon om eiendommen
Se komplett salgsoppgaveNærområdet
EIE eiendomsmegling Heimdal
Annonseinformasjon
| FINN-kode | 398767225 |
|---|---|
| Sist endret | 08. sep. 2025 13:04 |
| Referanse | 97240208 |
Annonsene kan være mangelfulle i forhold til lovpålagt opplysningsplikt. Før bindende avtale inngås oppfordres interessenter til å innhente komplett informasjon fra meglerforetaket, selger eller utleier.





















