Bildegalleri

Marcus Egeland V/Nordvik Bislett har gleden av å presentere Freserveien 43!
Inaktiv
KVÆRNERBYEN
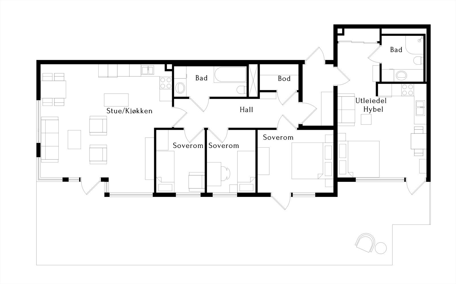
Moderne og hyggelig 5R hjørneleilighet med utleiedel og terrasse på 61 kvm| Nybygg fra 2016 | Heis | A-konto oppvarming
Prisantydning10 490 000 kr
Nøkkelinfo
- Boligtype
- Leilighet
- Eieform
- Eier (Selveier)
- Soverom
- 3
- Internt bruksareal
- 124 m² (BRA-i)
- Bruksareal
- 132 m²
- Eksternt bruksareal
- 8 m² (BRA-e)
- Balkong/Terrasse
- 61 m² (TBA)
- Etasje
- 1
- Byggeår
- 2016
- Energimerking
- D - Mørkegrønn
- Rom
- 4
- Tomteareal
- 8 952 m² (eiet)
Fasiliteter
Balkong/Terrasse
Barnevennlig
Bredbåndstilknytning
Garasje/P-plass
Heis
Kjæledyr tillatt
Kabel-TV
Parkett
Rolig
Sentralt
Lademulighet
Balansert ventilasjon
Om boligen
En lys, delikat og moderne 5-roms hjørneleilighet! Bygget er fra 2016 og holder en gjennomgående god standard. Her får du en fantstisk markterrasse på 61 kvm. Leiligheten har en hybeldel hvor det er gode muligheter for utleie. Kværnerbyen er et fantastisk sted å bo for deg som ønsker en tilbaketrukket tilværelse, men samtidig kort vei til by-livet i Oslo sentrum.
Høydepunkter:
- Skattefri leieinntekt ved utleie av hybel
- Markterrasse på 61 kvm
- A-konto oppvarming inkludert i felleskostnadene
- Hybeldel på 35 kvm med tilgang til uteplass
- Stilrent bad med opplegg for vaskemaskin
- Kun TG1
- Muligheter for garasjeleie/kjøp med og uten lader
- Bygg fra 2016 med heisadkomst
- Gode lagringsmuligheter i kjellerbod på ca. 8 kvm
- 3 romslige soverom
- Generøs takhøyde
Høydepunkter:
- Skattefri leieinntekt ved utleie av hybel
- Markterrasse på 61 kvm
- A-konto oppvarming inkludert i felleskostnadene
- Hybeldel på 35 kvm med tilgang til uteplass
- Stilrent bad med opplegg for vaskemaskin
- Kun TG1
- Muligheter for garasjeleie/kjøp med og uten lader
- Bygg fra 2016 med heisadkomst
- Gode lagringsmuligheter i kjellerbod på ca. 8 kvm
- 3 romslige soverom
- Generøs takhøyde
NB: Knappen for å vise hele beskrivelsen har kun en visuell effekt.
NB: Knappen for å vise hele beskrivelsen har kun en visuell effekt.
Salgsoppgaven beskriver vesentlig og lovpålagt informasjon om eiendommen
Se komplett salgsoppgaveNyttige lenker
Nærområdet
Nordvik Bislett
Annonseinformasjon
| FINN-kode | 398625870 |
|---|---|
| Sist endret | 14. aug. 2025 12:30 |
| Referanse | 36-0165/25 |
Annonsene kan være mangelfulle i forhold til lovpålagt opplysningsplikt. Før bindende avtale inngås oppfordres interessenter til å innhente komplett informasjon fra meglerforetaket, selger eller utleier.















































