Bildegalleri

Velkommen til Klevbakken 81! En innflytningsklar bolig rett ved skole, bussholdeplass og butikk. Fotograf Pål Godager
Ådalsbruk - Innflyttingsklar idyllisk enebolig med koselig hage. Bør sees!
Prisantydning1 670 000 kr
Nøkkelinfo
- Boligtype
- Enebolig
- Eieform
- Eier (Selveier)
- Soverom
- 2
- Internt bruksareal
- 89 m² (BRA-i)
- Bruksareal
- 89 m²
- Balkong/Terrasse
- 38 m² (TBA)
- Byggeår
- 1897
- Energimerking
- D - Gul
- Tomteareal
- 638 m² (eiet)
Fasiliteter
Balkong/Terrasse
Garasje/P-plass
Hage
Kjæledyr tillatt
Offentlig vann/kloakk
Peis/Ildsted
Sentralt
Bademulighet
Fiskemulighet
Turterreng
Om boligen
Velkommen til Klevbakken 81 - En sentrumsnær enebolig med korte gang avstander til nærbutikk, bussholdeplass og barneskole. I nærområde er det også flotte tur- og friluftsområder som blant annet Industristien.
Boligen strekker seg over 2 plan og inneholder:
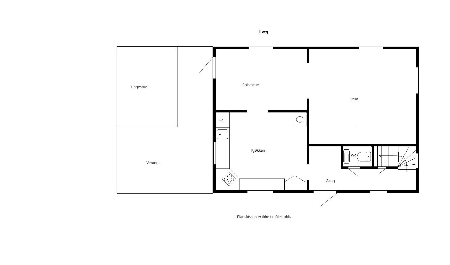
1. Etasje: Gang/entré, toalettrom, kjøkken, spisestue og stue.
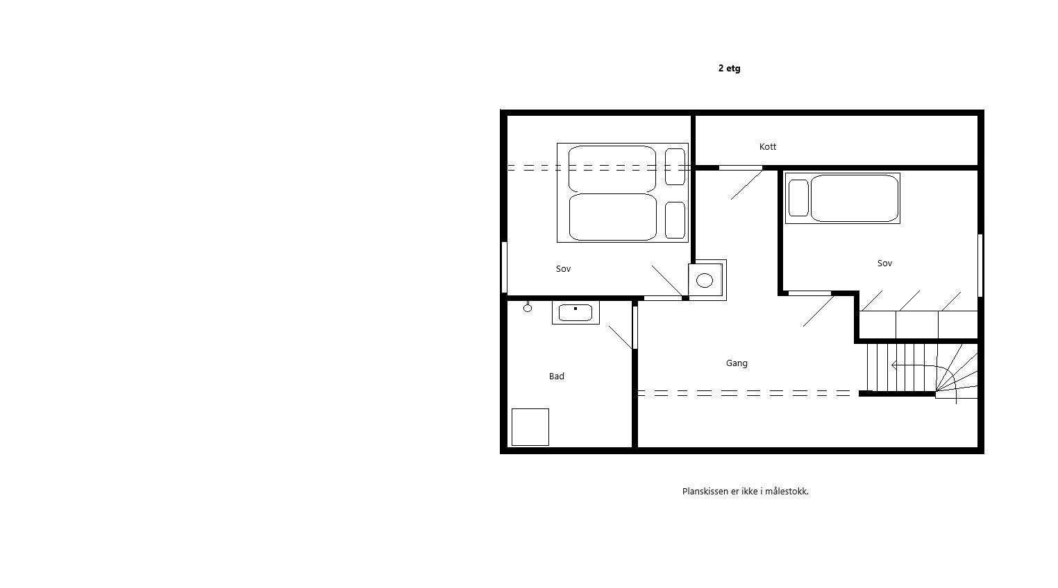
2. Etasje: Gang/trapp, bad/vaskerom, soverom, soverom 2 og kneveggskott.
I tillegg byr eiendommen på relativt flat tomt med parkeringsmuligheter, terrasse tilknyttet en koselig hagestue.
Boligen fra 1897 har en eldre standard, men god planløsning og pent modernisert med årene med nyere kjøkkeninnredning, flere vinduer, inngangsdør m.m. Boligen har både vedovn og varmepumpe.
Velkommen på visning!
Boligen strekker seg over 2 plan og inneholder:
1. Etasje: Gang/entré, toalettrom, kjøkken, spisestue og stue.
2. Etasje: Gang/trapp, bad/vaskerom, soverom, soverom 2 og kneveggskott.
I tillegg byr eiendommen på relativt flat tomt med parkeringsmuligheter, terrasse tilknyttet en koselig hagestue.
Boligen fra 1897 har en eldre standard, men god planløsning og pent modernisert med årene med nyere kjøkkeninnredning, flere vinduer, inngangsdør m.m. Boligen har både vedovn og varmepumpe.
Velkommen på visning!
NB: Knappen for å vise hele beskrivelsen har kun en visuell effekt.
NB: Knappen for å vise hele beskrivelsen har kun en visuell effekt.
Salgsoppgaven beskriver vesentlig og lovpålagt informasjon om eiendommen
Se komplett salgsoppgaveNyttige lenker
Nærområdet
EiendomsMegler 1 Hamar
Vi loser deg trygt gjennom hele boligsalget
Annonseinformasjon
| FINN-kode | 398421698 |
|---|---|
| Sist endret | 04. feb. 2026 14:56 |
| Referanse | 6019260190 |
Annonsene kan være mangelfulle i forhold til lovpålagt opplysningsplikt. Før bindende avtale inngås oppfordres interessenter til å innhente komplett informasjon fra meglerforetaket, selger eller utleier.



























