Bildegalleri

EIE Eiendomsmegling v/ Jr. Partner Håkon Hovland presenterer Øvrebøveien 6!
Solgt
Våland
Romslig leilighet i del av tomannsbolig (1.etg+ kjeller) | Rolig og barnevennelig område | Solrik terrasse og hage |
Prisantydning4 190 000 kr
Nøkkelinfo
- Boligtype
- Tomannsbolig
- Eieform
- Eier (Selveier)
- Soverom
- 2
- Internt bruksareal
- 160 m² (BRA-i)
- Bruksareal
- 160 m²
- Balkong/Terrasse
- 10 m² (TBA)
- Etasje
- 1
- Byggeår
- 1950
- Energimerking
- G - Rød
- Rom
- 3
- Tomteareal
- 416 m² (eiet)
Fasiliteter
Balkong/Terrasse
Peis/Ildsted
Parkett
Barnevennlig
Rolig
Sentralt
Garasje/P-plass
Offentlig vann/kloakk
Om boligen
EIE Eiendomsmegling v/ Jr. Partner Håkon Hovland presenterer Øvrebøveien 6!
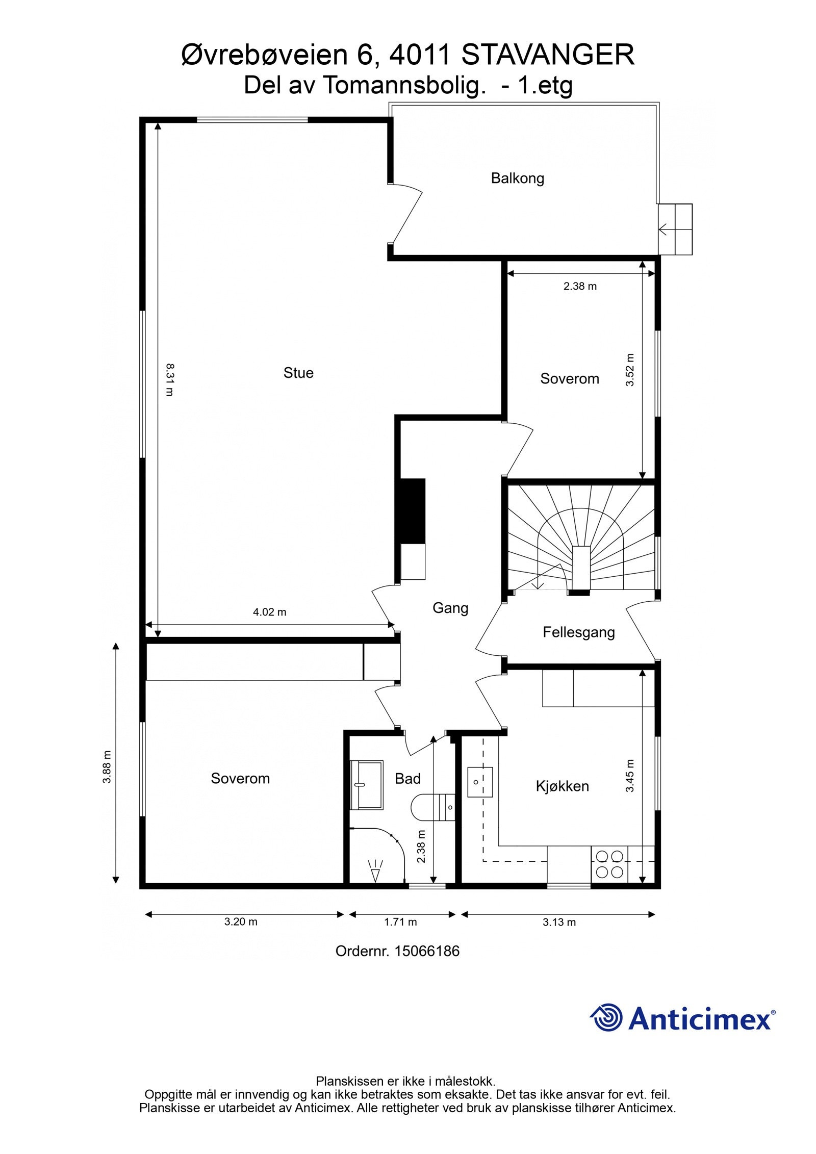
Dette er en romslig leilighet i en horisontaldelt tomannsbolig (1.etg+kjeller) med stort potensial og en attraktiv beliggenhet på Våland. Sentralt med kort vei til barnehage, skole, turområder, sentrum, kollektivtilbud og SUS.
Innhold:
- U.etg: 2 gang, 3 bod, bad*, kjøkken* og rom
- 1.etg: Gang, kjøkken, bad, stue og 2 soverom
Om boligen:
- 160 kvm BRA fordelt på 2 etasjer
- Funksjonell planløsning
- Stort potensial - skap ditt drømmehjem!
- Solrik tomt, hage og terrasse
- Store vindusflater og flott utsikt
- Peisovn i stue
- Del av u.etg innredet med utleieformål (ikke godkjent)
- Parkering i felles garasje eller på tomt
- Attraktiv og sentral beliggenhet
- Barnevennlig område og blindgate
Velkommen til visning!
NB: Knappen for å vise hele beskrivelsen har kun en visuell effekt.
NB: Knappen for å vise hele beskrivelsen har kun en visuell effekt.
Salgsoppgaven beskriver vesentlig og lovpålagt informasjon om eiendommen
Se komplett salgsoppgaveNærområdet
EIE eiendomsmegling - Rogaland Eiendomsmegling AS
Annonseinformasjon
| FINN-kode | 397853381 |
|---|---|
| Sist endret | 11. apr. 2025 14:19 |
| Referanse | 54250008 |
Annonsene kan være mangelfulle i forhold til lovpålagt opplysningsplikt. Før bindende avtale inngås oppfordres interessenter til å innhente komplett informasjon fra meglerforetaket, selger eller utleier.






























