Bildegalleri

Velkommen til Schweigaards gate 89A, presentert av Schala & Partners ved Kjerstin Falkum, tlf. 922 04 707.
Klassisk 2-roms hjørneleilighet | Stukkatur, rosett og god takhøyde | Kjøkken fra 2017 | Flott bakgård
Nøkkelinfo
- Boligtype
- Leilighet
- Eieform
- Andel
- Soverom
- 1
- Internt bruksareal
- 48 m² (BRA-i)
- Bruksareal
- 53 m²
- Eksternt bruksareal
- 5 m² (BRA-e)
- Etasje
- 3
- Byggeår
- 1891
- Energimerking
- G - Oransje
- Rom
- 2
- Tomteareal
- 599 m² (eiet)
Fasiliteter
Om boligen
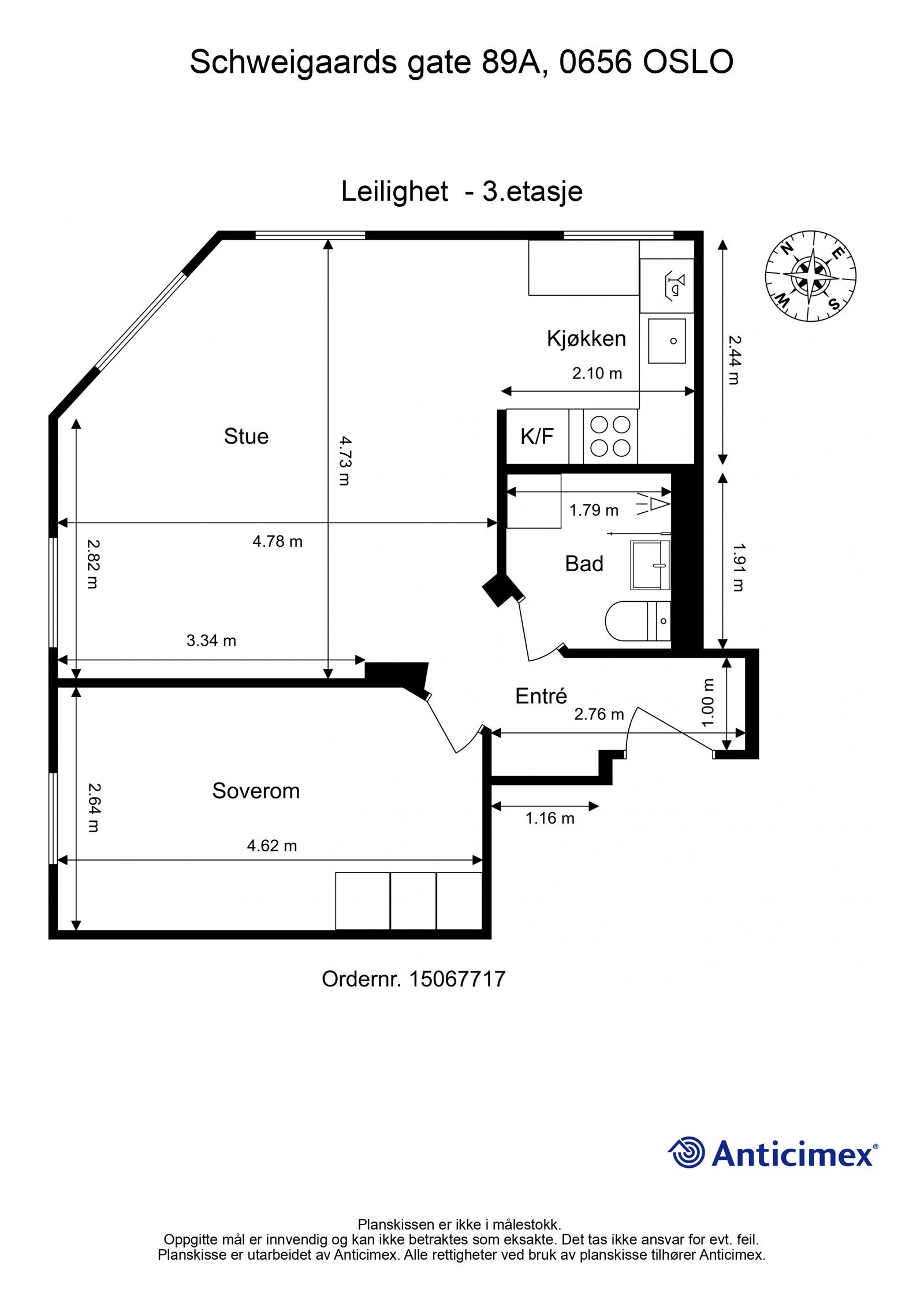
Innbydende og flott 2-roms hjørneleilighet i klassisk bygård. Leiligheten ligger fint til i 3.etasje med god takhøyde, store vindusflater og fine lysforhold. Det er flere klassiske detaljer som stukkatur og rosett, i tillegg til stilrene løsninger som tidløs kjøkkeninnredning fra 2017, parkett og god planløsning.
Leiligheten har en attraktiv og sentral beliggenhet i Gamlebyen, samtidig som området oppleves rolig og tilbaketrukket med flere parker i nærheten.
- Mulighet for ekstra alkove/"soverom" (se alternativ planløsning)
- Romslig stue med vindusflater fra flere kanter
- Klassiske detaljer
- Generøs takhøyde på opptil 2,91m
- Peisovn fra 2022
- Pent bad med oppl. for vaskemaskin
- Varmtvann inkl.
- To kjellerboder
- Flott bakgård med sittegrupper og grill
- Veldrevet borettslag
- Attraktivt og sentralt
- Ingen forkjøpsrett
Salgsoppgaven beskriver vesentlig og lovpålagt informasjon om eiendommen
Se komplett salgsoppgaveNyttige lenker
Nærområdet
Schala & Partners Carl Berner
Prisstatistikk
Schweigaards gate 89A
på annonsen
prisantydning per kvadratmeter
Prisfordeling
Pris per m² ligger 2 598 kr under snittet for leiligheter i Gamle Oslo.
Grafen viser antall leiligheter solgt i Gamle Oslo siste året fordelt på pris per m² - totalt 2 060 leiligheter
Antall boliger
Kvadratmeterpris tilsvarer prisantydning pluss fellesgjeld per kvadratmeter (p-rom eller BRA-i). Prisene i grafen er avrundet til nærmeste 1000 kr.
Annonseinformasjon
| FINN-kode | 397848904 |
|---|---|
| Sist endret | 28. mars 2025 13:34 |
| Referanse | 17250025 |
Annonsene kan være mangelfulle i forhold til lovpålagt opplysningsplikt. Før bindende avtale inngås oppfordres interessenter til å innhente komplett informasjon fra meglerforetaket, selger eller utleier.

































