Bildegalleri

En moderne og innbydende enebolig med alt på en flate.
Brunsbykollen - Moderne enebolig på et plan fra 2023 | Landlige omgivelser | Mulighet for 3 soverom |
Prisantydning5 490 000 kr
Nøkkelinfo
- Boligtype
- Enebolig
- Eieform
- Eier (Selveier)
- Soverom
- 2
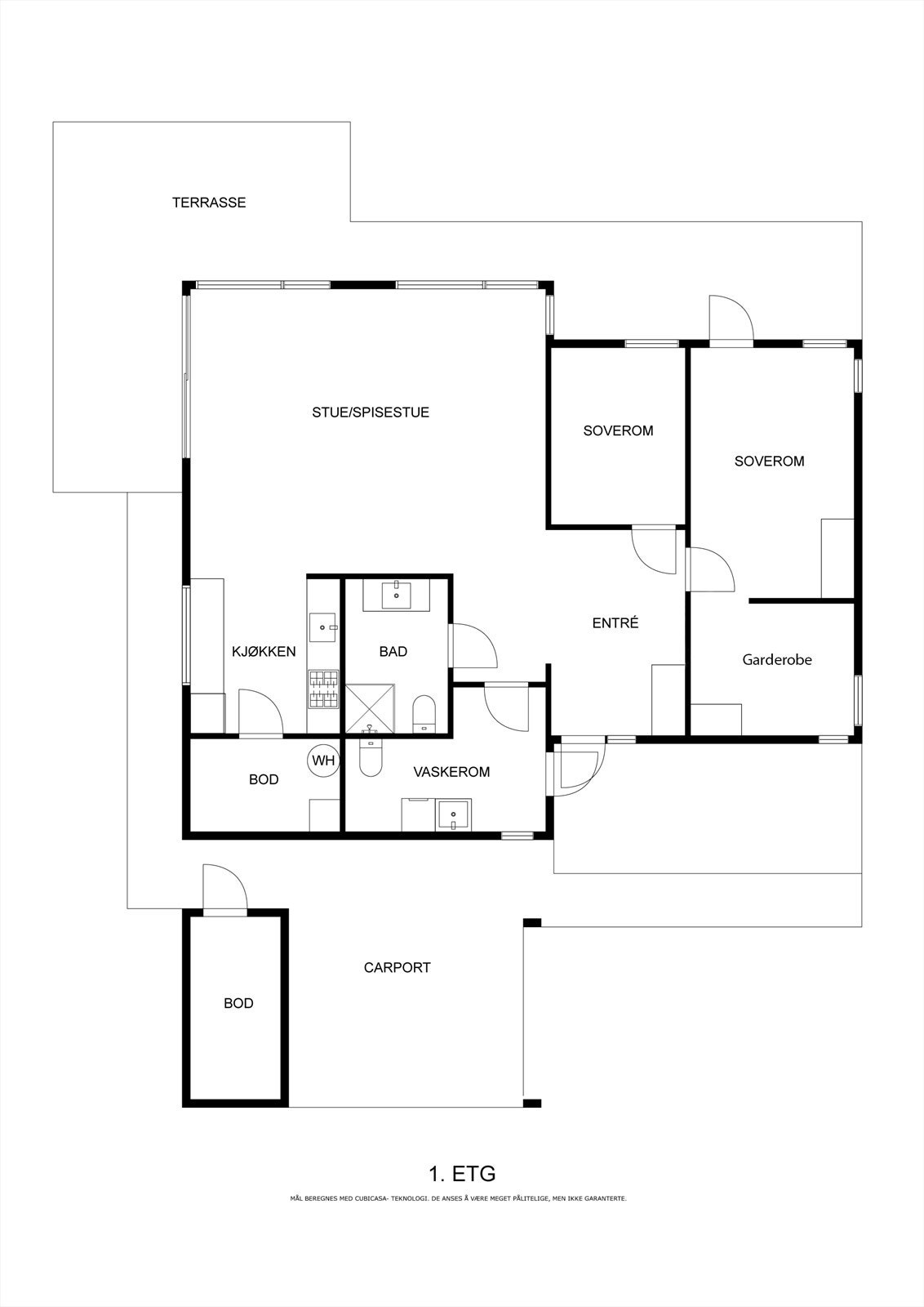
- Internt bruksareal
- 107 m² (BRA-i)
- Bruksareal
- 112 m²
- Eksternt bruksareal
- 5 m² (BRA-e)
- Balkong/Terrasse
- 49 m² (TBA)
- Byggeår
- 2023
- Energimerking
- B - Rød
- Rom
- 4
- Tomteareal
- 704 m² (eiet)
Fasiliteter
Balkong/Terrasse
Barnevennlig
Garasje/P-plass
Hage
Kjæledyr tillatt
Offentlig vann/kloakk
Peis/Ildsted
Rolig
Turterreng
Lademulighet
Balansert ventilasjon
Visning
onsdag, 25. februar
18:00 – 19:00
Ønsker du å delta på visningen ber vi om at du melder deg på slik at vi vet at du kommer. På den måten kan vi bistå alle best mulig, og gi deg tid på visningen. Visningen avholdes bare dersom det er påmeldte 2 timer innen oppsatt visningstidspunkt. Ta gjerne kontakt med megler på telefon 906 78 774 før visningen, hvis du har noen spørsmål. Velkommen!
VisningspåmeldingOm boligen
I landlige omgivelser finner man Olga Sælids vei 7, på Brunsbykollen boligfelt i Varteig. Brunsbykollen er et nyetablert boligfelt som tilbyr flotte muligheter for de som ønsker å bo i naturskjønne omgivelser.
Eiendommen tilbyr en moderne og innholdsrik enebolig på ett plan, fra 2023. Boligen fremstår som både funksjonell og stilfull, med åpen himling og stor takhøyde i stuen.
I tillegg til de allerede nevnte kvalitetene, har boligen flere attraktive egenskaper. Boligen har blant annet varme i alle gulv og peisovn i stuen. Kjøkkenet er godt utstyrt med integrerte hvitevarer og har bra med benkeplass. Soverommene er av god størrelse. Det er også muligheter for et tredje soverom.
Uteområdet byr på fine arealer. Boligen har en praktisk carport med bodplass samt lademuligheter for el-bil.
Eiendommen tilbyr en moderne og innholdsrik enebolig på ett plan, fra 2023. Boligen fremstår som både funksjonell og stilfull, med åpen himling og stor takhøyde i stuen.
I tillegg til de allerede nevnte kvalitetene, har boligen flere attraktive egenskaper. Boligen har blant annet varme i alle gulv og peisovn i stuen. Kjøkkenet er godt utstyrt med integrerte hvitevarer og har bra med benkeplass. Soverommene er av god størrelse. Det er også muligheter for et tredje soverom.
Uteområdet byr på fine arealer. Boligen har en praktisk carport med bodplass samt lademuligheter for el-bil.
NB: Knappen for å vise hele beskrivelsen har kun en visuell effekt.
NB: Knappen for å vise hele beskrivelsen har kun en visuell effekt.
Salgsoppgaven beskriver vesentlig og lovpålagt informasjon om eiendommen
Se komplett salgsoppgaveNyttige lenker
Nærområdet
EiendomsMegler 1 Sarpsborg
Annonseinformasjon
| FINN-kode | 397828201 |
|---|---|
| Sist endret | 13. feb. 2026 15:56 |
| Referanse | 5370240433 |
Annonsene kan være mangelfulle i forhold til lovpålagt opplysningsplikt. Før bindende avtale inngås oppfordres interessenter til å innhente komplett informasjon fra meglerforetaket, selger eller utleier.



































