Bildegalleri

EIE eiendomsmegling ved Amrinder Singh har gleden av å presentere Okstadvegen 241.
Sjarmerende 2-roms selveier med moderne standard, garasjeplass, solrik veranda og flotte turområder rett rundt hjørnet.
Nøkkelinfo
- Boligtype
- Leilighet
- Eieform
- Eier (Selveier)
- Soverom
- 1
- Internt bruksareal
- 46 m² (BRA-i)
- Bruksareal
- 52 m²
- Eksternt bruksareal
- 6 m² (BRA-e)
- Balkong/Terrasse
- 11 m² (TBA)
- Etasje
- 2
- Byggeår
- 2011
- Energimerking
- C - Mørkegrønn
- Rom
- 2
- Tomt
- Eiet
Fasiliteter
Om boligen
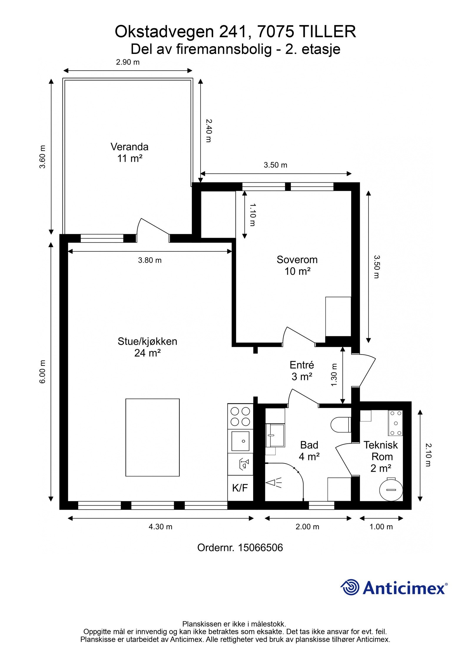
EIE eiendomsmegling v/ Amrinder Singh har gleden av å presentere Okstadvegen 241. En nydelig 2-roms selveier i et rolig område på Okstad. Leiligheten ligger i 2.etg med god standard og tilhører et sameie på 16 enheter.
Leiligheten har entré, stue, kjøkken, soverom, bad og teknisk rom/bod. I tillegg finnes to uteplasser: én med formiddagssol og litt ettermiddagssol, og én med ettermiddags- og kveldssol, samt utsikt. I kjelleren er det en romslig bod på ca. 6 m².
Verdt å merke seg:
- Lave felleskostnader som inkl. kabel-TV, internett og parkering i oppvarmet p-kjeller
- Lagt opp til elbil-lader
- Fjernvarme og balansert ventilasjonsanlegg
- Ingen fellesgjeld
- Trygt boligfelt med gangavstand til butikk, skole og barnehage
- Turmuligheter rett utenfor døren
- Ypperlig kollektivtilbud
Velkommen til visning!
Salgsoppgaven beskriver vesentlig og lovpålagt informasjon om eiendommen
Se komplett salgsoppgaveNærområdet
EIE eiendomsmegling Heimdal
Annonseinformasjon
| FINN-kode | 397786278 |
|---|---|
| Sist endret | 24. mars 2025 11:35 |
| Referanse | 97250027 |
Annonsene kan være mangelfulle i forhold til lovpålagt opplysningsplikt. Før bindende avtale inngås oppfordres interessenter til å innhente komplett informasjon fra meglerforetaket, selger eller utleier.
























