Bildegalleri

Velkommen til Haugerudveien 44 - Presentert av Nils Tore Gjone, OBOS Eiendomsmeglere, avd. Tveita
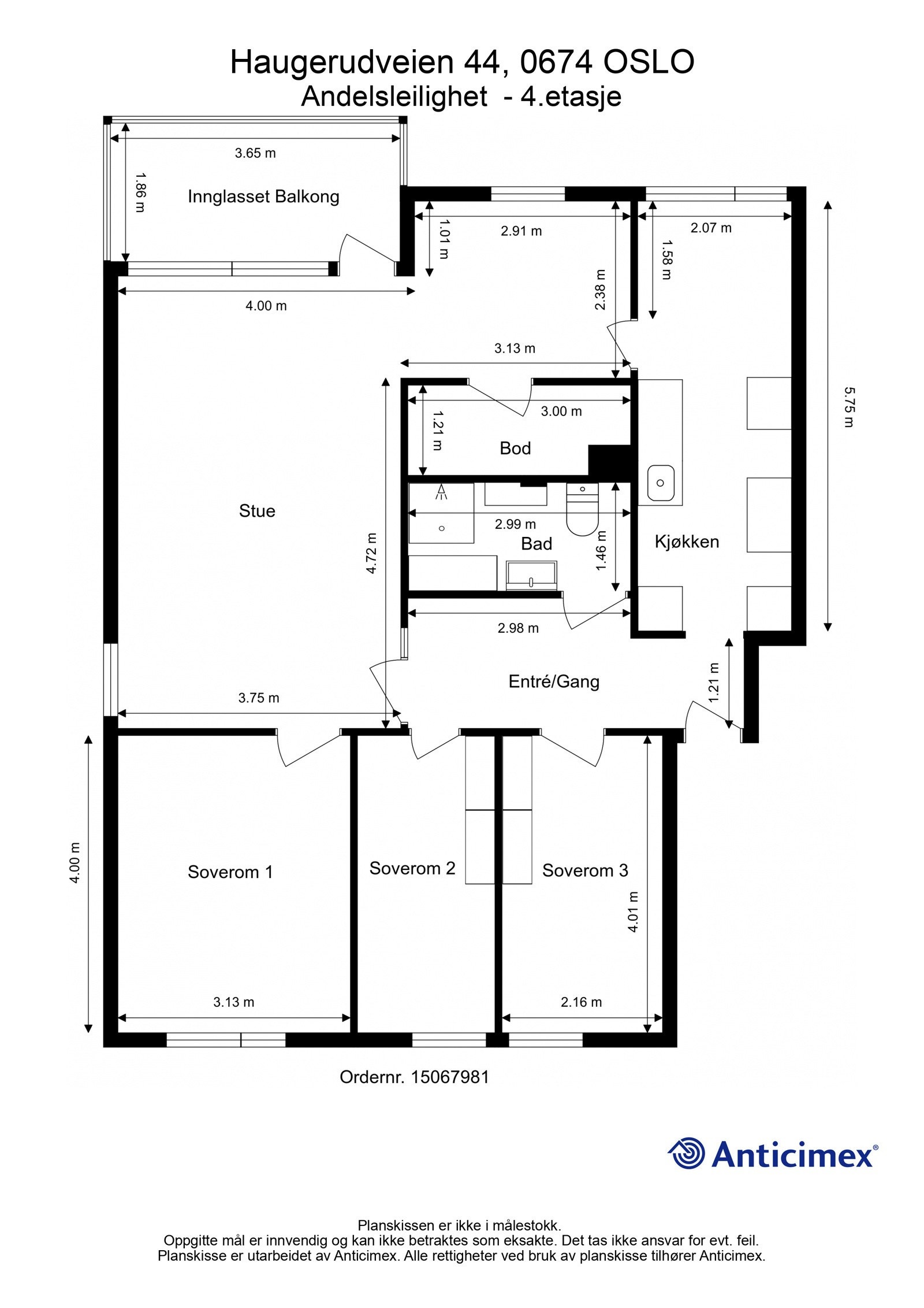
Gjennomgående 4-roms topp- og endeleilighet med nordvestvendt balkong med flott utsikt! - P-plass - Oppussingsobjekt
Nøkkelinfo
- Boligtype
- Leilighet
- Eieform
- Andel
- Soverom
- 3
- Internt bruksareal
- 93 m² (BRA-i)
- Bruksareal
- 104 m²
- Eksternt bruksareal
- 3 m² (BRA-e)
- Innglasset balkong
- 8 m² (BRA-b)
- Etasje
- 4
- Byggeår
- 1966
- Energimerking
- G - Lysegrønn
- Rom
- 4
- Tomteareal
- 97 876 m² (eiet)
Fasiliteter
Om boligen
Velkommen til Haugerudveien 44! Presentert av Nils Tore Gjone
Lys, romslig og gjennomgående ende- og toppleilighet med god planløsning. Leiligheten har en eldre innvendig standard med behov for oppussing/modernisering. Her kan du skape ditt nye drømmehjem!
Leiligheten består av: Entre, 3 soverom, bad, bod, kjøkken, stue og spisestue med utgang til innglasset balkong på ca 8 m².
Det medfølger kjellerbod, samt fast parkeringsplass.
Leiligheten er beliggende i et veletablert, populært og barnevennlig boligområde. Leiligheten har en bra intern beliggenhet i borettslaget. Flott utsikt fra nordvestvendt balkong!
Her bor du godt med nærhet til barnehage, skoler, kollektivtransport, Østmarka og andre servicetilbud.
Salgsoppgaven beskriver vesentlig og lovpålagt informasjon om eiendommen
Se komplett salgsoppgaveNyttige lenker
Nærområdet
OBOS eiendomsmeglere - Tveita
Annonseinformasjon
| FINN-kode | 397776189 |
|---|---|
| Sist endret | 29. mars 2025 11:29 |
| Referanse | 705250025 |
Annonsene kan være mangelfulle i forhold til lovpålagt opplysningsplikt. Før bindende avtale inngås oppfordres interessenter til å innhente komplett informasjon fra meglerforetaket, selger eller utleier.




























