Bildegalleri

Inngangsparti, carport, samt plass til flere biler på egen gårdsplass.
Inaktiv
Nordby/Vinterbro
Bolig med oppussingsbehov i svært barnevennlig boligområde. Vestvendt veranda og hage. Carport.
Prisantydning5 450 000 kr
Nøkkelinfo
- Boligtype
- Tomannsbolig
- Eieform
- Eier (Selveier)
- Soverom
- 3
- Internt bruksareal
- 150 m² (BRA-i)
- Bruksareal
- 154 m²
- Eksternt bruksareal
- 4 m² (BRA-e)
- Balkong/Terrasse
- 54 m² (TBA)
- Etasje
- 3
- Byggeår
- 1963
- Energimerking
- G - Rød
- Tomteareal
- 1 396 m² (festet)
- Festeavgift
- 8 651 kr
Fasiliteter
Balkong/Terrasse
Barnevennlig
Bredbåndstilknytning
Garasje/P-plass
Hage
Kjæledyr tillatt
Ingen gjenboere
Kabel-TV
Offentlig vann/kloakk
Peis/Ildsted
Rolig
Sentralt
Utsikt
Turterreng
Visning
For å delta på visning, ber vi om at du melder deg på. Da sikrer vi at du får nødvendig informasjon. Kontakt megler dersom annet tidspunkt ønskes. Husk å lese salgsoppgaven før visningen, så du stiller forberedt.
Ønsker du kun å bli holdt orientert, kan du fra eiendommens hjemmeside få varsel om solgtpris, eller kontakte megler.
VisningspåmeldingOm boligen
- Etablert, trygt og barnevennlig område. Ca 400 meter til nærmeste barnehage. 500-600 meter til Nordby barneskole og Nordbytun ungdomsskole.
- Bussholdeplass 1 minutt unna. Forbindelse til blant annet Ski og Alti kjøpesenter.
- Flotte turområder i nærområdet. Kort vei til idrettsplass. Kort vei til Tusenfryd, Breivoll, Kjærnes med mer.
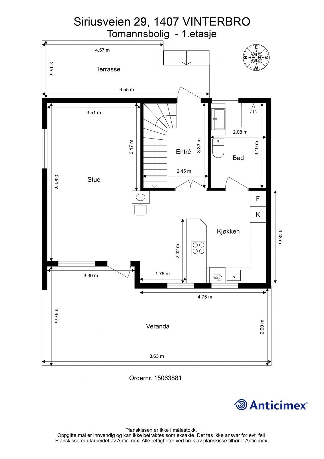
- Vestvendt veranda på 29 kvm med adkomst fra stuen. Ellers stor felleseiet tomt med meget gode solforhold. Terrasse på 12 kvm med morgensol på fremsiden.
- Det er innredet utleieleilighet i underetasjen som har vært leid ut, dog er denne ikke godkjent, og utleie og eventuell godkjenning vil være kjøpers ansvar.
- God planløsning. Alle soverom i samme etasje.
- Mye potensiale i denne boligen.
Velkommen til visning.
- Bussholdeplass 1 minutt unna. Forbindelse til blant annet Ski og Alti kjøpesenter.
- Flotte turområder i nærområdet. Kort vei til idrettsplass. Kort vei til Tusenfryd, Breivoll, Kjærnes med mer.
- Vestvendt veranda på 29 kvm med adkomst fra stuen. Ellers stor felleseiet tomt med meget gode solforhold. Terrasse på 12 kvm med morgensol på fremsiden.
- Det er innredet utleieleilighet i underetasjen som har vært leid ut, dog er denne ikke godkjent, og utleie og eventuell godkjenning vil være kjøpers ansvar.
- God planløsning. Alle soverom i samme etasje.
- Mye potensiale i denne boligen.
Velkommen til visning.
NB: Knappen for å vise hele beskrivelsen har kun en visuell effekt.
NB: Knappen for å vise hele beskrivelsen har kun en visuell effekt.
Salgsoppgaven beskriver vesentlig og lovpålagt informasjon om eiendommen
Se komplett salgsoppgaveNyttige lenker
Nærområdet
Krogsveen Ski
Verdien av en god megler.
Annonseinformasjon
| FINN-kode | 397664903 |
|---|---|
| Sist endret | 13. mars 2026 14:05 |
| Referanse | KR46.24177 |
Annonsene kan være mangelfulle i forhold til lovpålagt opplysningsplikt. Før bindende avtale inngås oppfordres interessenter til å innhente komplett informasjon fra meglerforetaket, selger eller utleier.









































