Bildegalleri

Nordvik Østensjø v/ Renee B. Løkke har gleden av å presentere Rugveien 69.
Solgt
Manglerud
Delikat, lys og gjennomgående 3-roms m/ solrik balkong| V.vann inkl. og pipeløp|Nymalte overflater| Kort vei til sentrum
Prisantydning4 800 000 kr
Nøkkelinfo
- Boligtype
- Leilighet
- Eieform
- Andel
- Soverom
- 2
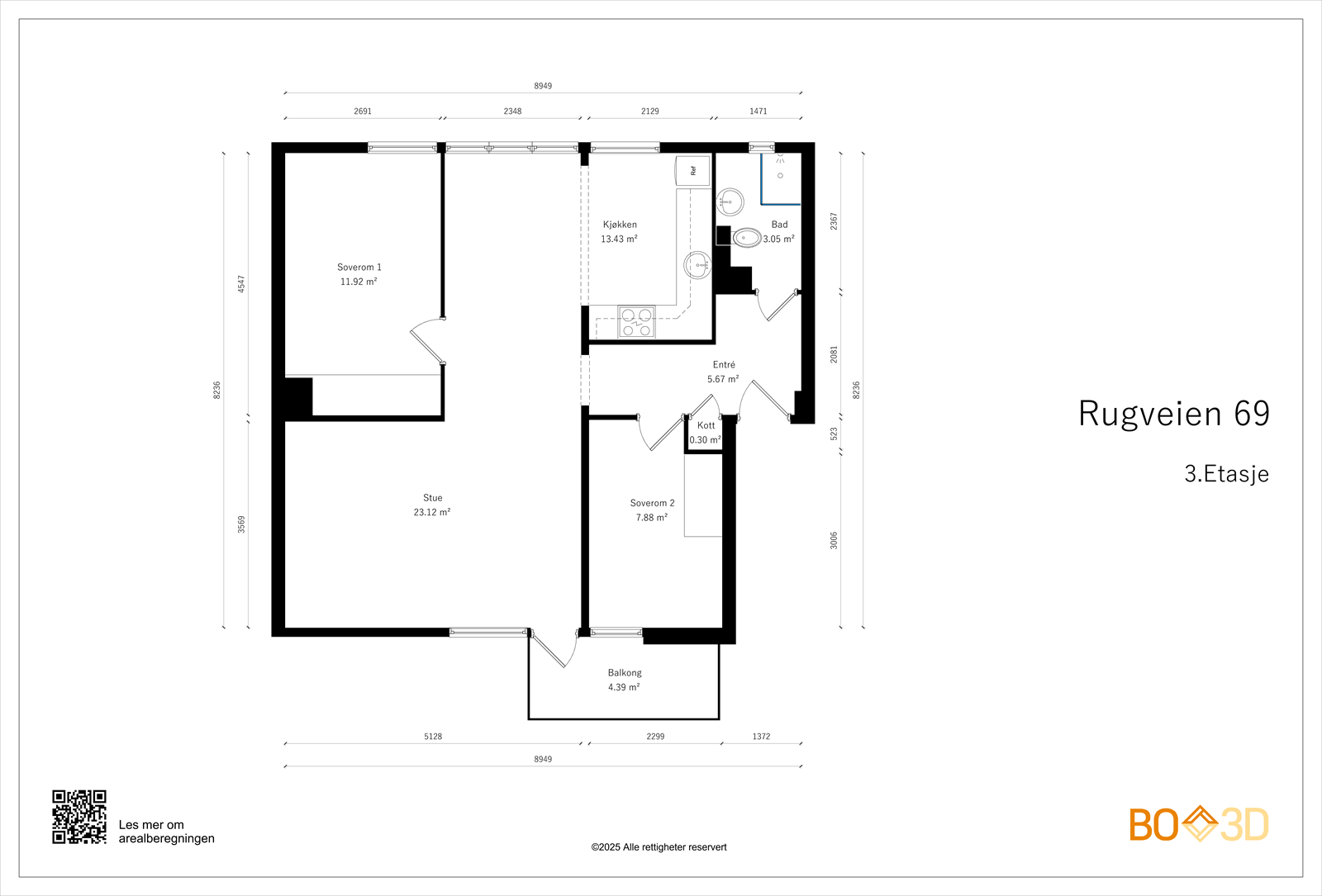
- Internt bruksareal
- 69 m² (BRA-i)
- Bruksareal
- 76 m²
- Eksternt bruksareal
- 7 m² (BRA-e)
- Balkong/Terrasse
- 4 m² (TBA)
- Etasje
- 3
- Byggeår
- 1961
- Energimerking
- D - Rød
- Rom
- 3
- Tomteareal
- 12 430 m² (eiet)
Fasiliteter
Balkong/Terrasse
Barnevennlig
Bredbåndstilknytning
Kabel-TV
Offentlig vann/kloakk
Parkett
Rolig
Sentralt
Turterreng
Om boligen
Nordvik Østensjø v/ Renee B. Løkke har gleden av å presentere Rugveien 69 | En attraktiv og solrik leilighet med sentral beliggenhet på Manglerud. Leiligheten har en god intern beliggenhet i 3. etasje og består av tidløst, åpen kjøkkenløsning tilknyttet spisestue, pent bad fra 2011 i regi av brl., to gode soverom med garderobeløsning, og en innbydende stue med utgang til nord-vestvendt balkong med gode solforhold.
Verdt å merke seg:
- Varmtvann, kabel-tv og bredbånd inkl.
- Bad i regi av brl (2011)
- IN-ordning
- Pipeløp
- Nord-vestvendt balkong
- Moderne og lune fargevalg
- Godt vedlikeholdt IKEA kjøkken
- Attraktiv og sentral beliggenhet
- 3 kjellerboder
- Veldrevet borettslag med god vedlikeholdshistorikk
- Kun 12 min m/ T-bane til Oslo sentrum
- Umiddelbar nærhet til Manglerud senter
Verdt å merke seg:
- Varmtvann, kabel-tv og bredbånd inkl.
- Bad i regi av brl (2011)
- IN-ordning
- Pipeløp
- Nord-vestvendt balkong
- Moderne og lune fargevalg
- Godt vedlikeholdt IKEA kjøkken
- Attraktiv og sentral beliggenhet
- 3 kjellerboder
- Veldrevet borettslag med god vedlikeholdshistorikk
- Kun 12 min m/ T-bane til Oslo sentrum
- Umiddelbar nærhet til Manglerud senter
NB: Knappen for å vise hele beskrivelsen har kun en visuell effekt.
NB: Knappen for å vise hele beskrivelsen har kun en visuell effekt.
Salgsoppgaven beskriver vesentlig og lovpålagt informasjon om eiendommen
Se komplett salgsoppgaveNyttige lenker
Nærområdet
Nordvik Østensjø
Annonseinformasjon
| FINN-kode | 397644975 |
|---|---|
| Sist endret | 26. aug. 2025 11:39 |
| Referanse | 18-0048/25 |
Annonsene kan være mangelfulle i forhold til lovpålagt opplysningsplikt. Før bindende avtale inngås oppfordres interessenter til å innhente komplett informasjon fra meglerforetaket, selger eller utleier.































