Bildegalleri

- Velkommen til Løvåsbakken 21! -
Solgt
Lekker 3(4)-roms med naturskjønn utsikt, gode solforhold, trappefri adkomst via heis og varmtvann inkl. i felleskostn.!
Prisantydning2 990 000 kr
Nøkkelinfo
- Boligtype
- Leilighet
- Eieform
- Andel
- Soverom
- 2
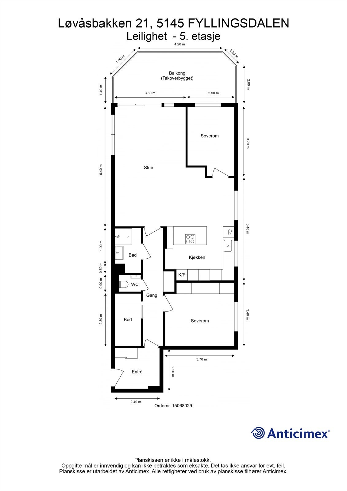
- Internt bruksareal
- 87 m² (BRA-i)
- Bruksareal
- 91 m²
- Eksternt bruksareal
- 4 m² (BRA-e)
- Balkong/Terrasse
- 16 m² (TBA)
- Etasje
- 5
- Byggeår
- 1968
- Energimerking
- E - Oransje
- Rom
- 4
- Tomteareal
- 71 401 m² (eiet)
Fasiliteter
Aircondition
Balkong/Terrasse
Barnevennlig
Bredbåndstilknytning
Fellesvaskeri
Heis
Kabel-TV
Offentlig vann/kloakk
Rolig
Sentralt
Utsikt
Turterreng
Om boligen
Velkommen til denne flotte 3(4)-roms leiligheten med en naturskjønn utsikt i flotte omgivelser i Fyllingsdalen. Her kan du flytte rett inn og bo godt i vakre Dalen med nærhet til det meste!
Høydepunkter:
Høydepunkter:
- Attraktiv beliggenhet i Fyllingsdalen med umiddelbar nærhet til flotte turområder
- 2 soverom av god størrelse
- Moderne åpen stue/kjøkkenløsning
- Svært romslig stue med plass til flere soner
- Varmtvann inkludert i felleskostnader
- Vaskerom for egen vaskemaskin i samme etasje
- Bod både inni leiligheten og en i kjeller
- Gangavstand til bybanen og sykkeltunnelen i Fyllingsdalen
- Meget kort vei til buss, butikk, treningssenter, skole og barnehage, innen 5 min gange
NB: Knappen for å vise hele beskrivelsen har kun en visuell effekt.
NB: Knappen for å vise hele beskrivelsen har kun en visuell effekt.
Salgsoppgaven beskriver vesentlig og lovpålagt informasjon om eiendommen
Se komplett salgsoppgaveNyttige lenker
Nærområdet
Krogsveen Fyllingsdalen
Verdien av en god megler.
Annonseinformasjon
| FINN-kode | 397592901 |
|---|---|
| Sist endret | 24. mars 2025 12:59 |
| Referanse | KR70.2514 |
Annonsene kan være mangelfulle i forhold til lovpålagt opplysningsplikt. Før bindende avtale inngås oppfordres interessenter til å innhente komplett informasjon fra meglerforetaket, selger eller utleier.




























