Bildegalleri

Eiendom med kai og sjølinje i Våjen i Veavågen - Regulert til bl.a bolig og fritidsbebyggelse.
Prisantydning2 990 000 kr
Nøkkelinfo
- Boligtype
- Andre
- Eieform
- Eier (Selveier)
- Soverom
- 1
- Bruksareal
- 280 m²
- Etasje
- 2
- Tomteareal
- 842 m² (eiet)
Fasiliteter
Strandlinje
Visning
VISNINGSPÅMELDING: Husk å melde deg på visningen direkte til eiendomsmegler Fred Lippens på 90559049 eller via påmeldingsløsningen i annonsen slik at jeg vet at du kommer.
VisningspåmeldingOm boligen
Velkommen til Vea Sjoarveg 43, romslig eiendom som tilbyr fantastiske muligheter!
Eiendommen har en solid støpt kai , med gode dybdeforhold og lang sjølinje. Perfekt for båtentusiaster eller de som ønsker enkel tilgang til sjøen. Bygningen er registrert som driftsbygning, noe som gir deg fleksibilitet til å bruke den til ulike formål, enten det er til næringsvirksomhet eller som et unikt fritidssted. Med god plass og strategisk beliggenhet, er dette en eiendom som virkelig kan tilpasses dine behov.
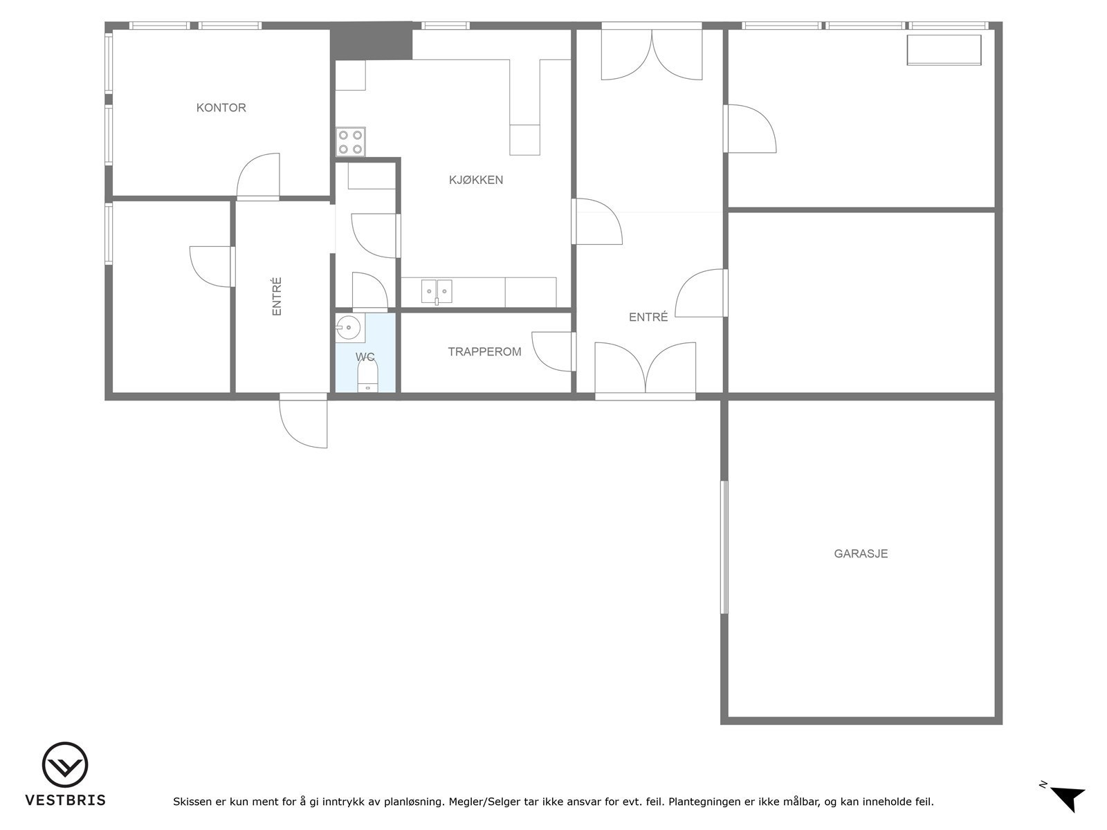
Bygget inneholder:
Underetasje: Flekkerom, to røykerom, to tørketuneller og lager.
Første etasje: Gang, garderobe, kontor, mellomgang, toalettrom, pakkerom m/ vask, lasterom, verksted/ lager og kjølerom.
Garasje
Det er også mulighet for kjøp av naboeiendommen.
Velkommen til visning.
Eiendommen har en solid støpt kai , med gode dybdeforhold og lang sjølinje. Perfekt for båtentusiaster eller de som ønsker enkel tilgang til sjøen. Bygningen er registrert som driftsbygning, noe som gir deg fleksibilitet til å bruke den til ulike formål, enten det er til næringsvirksomhet eller som et unikt fritidssted. Med god plass og strategisk beliggenhet, er dette en eiendom som virkelig kan tilpasses dine behov.
Bygget inneholder:
Underetasje: Flekkerom, to røykerom, to tørketuneller og lager.
Første etasje: Gang, garderobe, kontor, mellomgang, toalettrom, pakkerom m/ vask, lasterom, verksted/ lager og kjølerom.
Garasje
Det er også mulighet for kjøp av naboeiendommen.
Velkommen til visning.
NB: Knappen for å vise hele beskrivelsen har kun en visuell effekt.
NB: Knappen for å vise hele beskrivelsen har kun en visuell effekt.
Salgsoppgaven beskriver vesentlig og lovpålagt informasjon om eiendommen
Se komplett salgsoppgaveNyttige lenker
Nærområdet
Eiendomsmegler A AS
Det bor en A i oss alle
Annonseinformasjon
| FINN-kode | 397589417 |
|---|---|
| Sist endret | 05. des. 2025 14:02 |
| Referanse | EMA1.24330 |
Annonsene kan være mangelfulle i forhold til lovpålagt opplysningsplikt. Før bindende avtale inngås oppfordres interessenter til å innhente komplett informasjon fra meglerforetaket, selger eller utleier.























