Bildegalleri

Inaktiv
Velkommen til Madla
Arkitekttegnet funkisbolig med sjøutsikt, carport for 2 biler og utleiedel
Prisantydning12 500 000 kr
Nøkkelinfo
- Boligtype
- Enebolig
- Eieform
- Eier (Selveier)
- Soverom
- 4
- Internt bruksareal
- 187 m² (BRA-i)
- Bruksareal
- 221 m²
- Eksternt bruksareal
- 5 m² (BRA-e)
- Innglasset balkong
- 29 m² (BRA-b)
- Balkong/Terrasse
- 20 m² (TBA)
- Byggeår
- 2012
- Energimerking
- B - Rød
- Tomteareal
- 409 m² (eiet)
Fasiliteter
Barnevennlig
Balkong/Terrasse
Garasje/P-plass
Offentlig vann/kloakk
Parkett
Turterreng
Utsikt
Sentralt
Moderne
Rolig
Lademulighet
Balansert ventilasjon
Om boligen
Snorres gate 8C er en romslig familiebolig med moderne arkitektur, tegnet av den anerkjente arkitekten Jone Vistnes. Boligen ligger i et attraktivt område i et veletablert nabolag med kort vei til sjøen, skoler, barnehager og flotte turområder, samtidig som Stavanger sentrum ligger en kort kjøretur unna. Her får du flere flotte uteplasser med sol og nydelig utsikt mot sjøen.
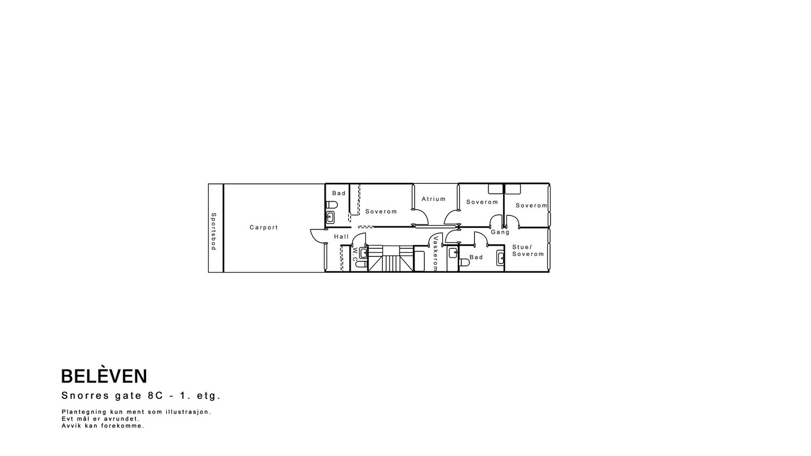
Boligen er praktisk inndelt med flere naturlige soner og har en egen hybeldel i underetasjen med utleiemuligheter. I andre etasje ligger den sosiale sonen med en luftig stue og et delikat HTH-kjøkken i åpen løsning. Herfra har du utgang til en innglasset terrasse som forlenger stuen. Videre har stuen en hems som gir fleksible møbleringsmuligheter. Første etasje inneholder entré, tre soverom - to med utgang til "atrium" - to bad, kontor, vaskerom og toalett.
Fra boligen går du tørrskodd til carporten med plass til to biler.
Boligen er praktisk inndelt med flere naturlige soner og har en egen hybeldel i underetasjen med utleiemuligheter. I andre etasje ligger den sosiale sonen med en luftig stue og et delikat HTH-kjøkken i åpen løsning. Herfra har du utgang til en innglasset terrasse som forlenger stuen. Videre har stuen en hems som gir fleksible møbleringsmuligheter. Første etasje inneholder entré, tre soverom - to med utgang til "atrium" - to bad, kontor, vaskerom og toalett.
Fra boligen går du tørrskodd til carporten med plass til to biler.
NB: Knappen for å vise hele beskrivelsen har kun en visuell effekt.
NB: Knappen for å vise hele beskrivelsen har kun en visuell effekt.
Salgsoppgaven beskriver vesentlig og lovpålagt informasjon om eiendommen
Se komplett salgsoppgaveNærområdet
Belèven Eiendomsmegling
Annonsene kan være mangelfulle i forhold til lovpålagt opplysningsplikt. Før bindende avtale inngås oppfordres interessenter til å innhente komplett informasjon fra meglerforetaket, selger eller utleier.











































