Bildegalleri

041_Velholdt enebolig i et barnevennlig boligområde..jpg
Geithus
Velholdt enebolig i barnevennlig boligområde | 3 soverom | Garasje og stor gårdsplass
Prisantydning3 790 000 kr
Nøkkelinfo
- Boligtype
- Enebolig
- Eieform
- Eier (Selveier)
- Soverom
- 3
- Internt bruksareal
- 216 m² (BRA-i)
- Bruksareal
- 222 m²
- Eksternt bruksareal
- 6 m² (BRA-e)
- Balkong/Terrasse
- 34 m² (TBA)
- Etasje
- 2
- Byggeår
- 1985
- Energimerking
- E - Gul
- Rom
- 5
- Tomteareal
- 798 m² (festet)
- Festeavgift
- 6 238 kr
Fasiliteter
Barnevennlig
Garasje/P-plass
Hage
Kabel-TV
Offentlig vann/kloakk
Peis/Ildsted
Rolig
Sentralt
Turterreng
Om boligen
Velkommen til Sivveien 2!
Boligen ligger i et etablert, meget barnevennlig område med barneskole, barnehage, lekeplass og busstopp i umiddelbar nærhet. Det finnes flotte turstier, lysløype om vinteren og flere turmuligheter langs fjorden og Drammenselva. Like nedenfor boligen finner man Bergsjø med mulighet for bading, fiske og båtliv. Felles badestrand finnes nederst på feltet. Kun 5 minutters kjøring til Vikersund og Åmot. Nær Furumo Idrettspark med svømmehall, treningssenter og turløyper. Alpinanlegg og hoppsenter ligger også i nærheten.
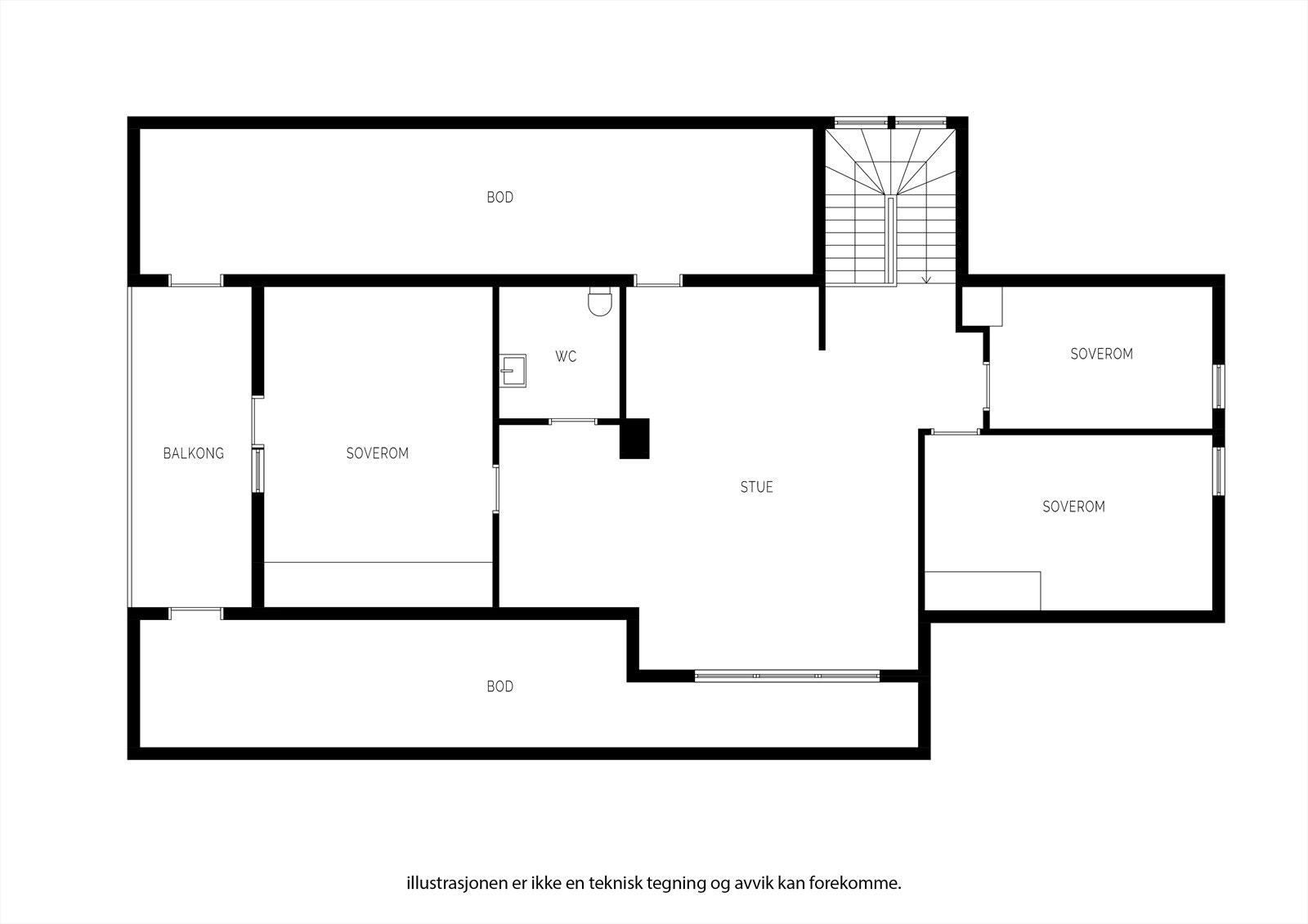
Boligen har to etasjer med entré, stue, kjøkken, bad, vaskerom, toalettrom og bod i første etasje, samt stue, toalettrom og 3 soverom, hvor et har utgang til balkong i andre etasje. Utendørs finnes romslig garasje.
Boligen ligger i et etablert, meget barnevennlig område med barneskole, barnehage, lekeplass og busstopp i umiddelbar nærhet. Det finnes flotte turstier, lysløype om vinteren og flere turmuligheter langs fjorden og Drammenselva. Like nedenfor boligen finner man Bergsjø med mulighet for bading, fiske og båtliv. Felles badestrand finnes nederst på feltet. Kun 5 minutters kjøring til Vikersund og Åmot. Nær Furumo Idrettspark med svømmehall, treningssenter og turløyper. Alpinanlegg og hoppsenter ligger også i nærheten.
Boligen har to etasjer med entré, stue, kjøkken, bad, vaskerom, toalettrom og bod i første etasje, samt stue, toalettrom og 3 soverom, hvor et har utgang til balkong i andre etasje. Utendørs finnes romslig garasje.
NB: Knappen for å vise hele beskrivelsen har kun en visuell effekt.
NB: Knappen for å vise hele beskrivelsen har kun en visuell effekt.
Salgsoppgaven beskriver vesentlig og lovpålagt informasjon om eiendommen
Se komplett salgsoppgaveNyttige lenker
Nærområdet
EiendomsMegler 1 Modum
et foretak i SpareBank 1 Sør-Norge konsernet
Annonseinformasjon
| FINN-kode | 397485972 |
|---|---|
| Sist endret | 12. feb. 2026 10:19 |
| Referanse | 2870250065 |
Annonsene kan være mangelfulle i forhold til lovpålagt opplysningsplikt. Før bindende avtale inngås oppfordres interessenter til å innhente komplett informasjon fra meglerforetaket, selger eller utleier.








































