Bildegalleri

En utrolig flott leilighet over to plan. Velkommen til visning.
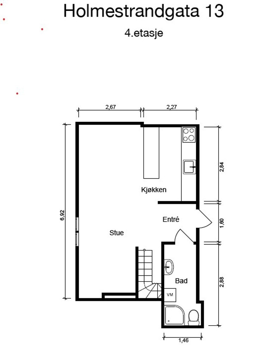
Eksklusiv og rålekker loftsleilighet o/to plan. Gulvareal 60 kvm. Nybygget 2020. Lekre løsninger. Lite stykke New York
Nøkkelinfo
- Boligtype
- Leilighet
- Eieform
- Selveier
- Soverom
- 1
- Internt bruksareal
- 54 m² (BRA-i)
- Eksternt bruksareal
- 8 m² (BRA-e)
- Etasje
- 4
- Byggeår
- 1917
- Tomteareal
- 3 803 m² (eiet)
- Boligselgerforsikring
- Ja
Fasiliteter
Om boligen
Velkommen til en særdeles lekker 2-roms loftsleilighet over to plan. Her har du mulighet til å skaffe deg en eksklusiv, annerledes og meget attraktiv leilighet. Det er umiddelbar nærhet til det meste. Leiligheten er fra 2020 og her kan man flytte rett inn.Leiligheten har meget god standard med løsninger som enstavs eikeparkett, Stilig kjøkken med kjøkkenøy Integrerte hvitevarer samt integrert vinskap. Superfin planløsning som inneholder: 4 etg: Entré, bad, stue og kjøkken. På mesaninen finner vi et stilig soverom, trappegang og garderobe.
Kort fortalt:
- 60 kvm gulvareal.
- Sentral beliggenhet
- Moderne leilighet
- Disponibel kjellerbod på 8 kvm
- God takhøyde på 5,45 meter i stuen
- Loftsleilighet etablert i 2020
- Meget fin og rolig beliggenhet med nærhet til det meste.
Salgsoppgaven beskriver vesentlig og lovpålagt informasjon om eiendommen
Se komplett salgsoppgaveNyttige lenker
Nærområdet

PrivatMegleren Horisont
Annonseinformasjon
| FINN-kode | 397248104 |
|---|---|
| Sist endret | 22. mars 2025 13:44 |
| Referanse | 155250031 |
Annonsene kan være mangelfulle i forhold til lovpålagt opplysningsplikt. Før bindende avtale inngås oppfordres interessenter til å innhente komplett informasjon fra meglerforetaket, selger eller utleier.





































